NewConstruction Avslatt Enebolig

Riving og ny enebolig med utleiedel i Grimsrudveien 271, Asker

📍 Grimsrudveien 271 , 3490 KLOKKARSTUA

Nøkkelinfo

Sakstype
Nybygg
Bygningstype
Enebolig
Bruksareal
111 m²
Boenheter
2
Kommune
Asker
Fylke
Akershus
Gnr / Bnr
308 / 16
Saksnummer
25/3402
Fase
Avslått

Om byggesaken

Ny enebolig med sekundær utleiedel oppføres på eiendommen Grimsrudveien 271 i Asker, som erstatning for en totalskadet bolig etter brann. Boligen bygges i tradisjonell stil med saltak og ark, med et fotavtrykk på ca. 12,4 x 7,2 meter og et bruksareal på ca. 111 m². Bygget har to etasjer med separate boenheter, hver med egen inngang, kjøkken, bad, stue og soverom. Bygningen tilpasses terrenget og eksisterende kulturmiljø, med stående trepanel og smårutede vinduer. Tiltaket inkluderer riving av verneverdig bebyggelse, dispensasjoner fra flere planbestemmelser, og omfattende tekniske løsninger som balansert ventilasjon, varmepumpe, og moderne sanitær- og elektroinstallasjoner. Utomhusplan og grunnarbeider er også del av prosjektet.

Arbeidsomfang

- Riving av eksisterende verneverdig bolig (arbeidsbolig fra 1980-tallet som besto av to deler). - Oppføring av nytt bolighus med hoveddel og utleiedel (hybeldel). - Oppføring av inngangsparti til utleiedel via stue i hoveddel (uten egen inngang til hovedboligen). - Tilpasning av utkjøringsløsning for begge deler via ny offentlig utkjøring.

Produkter og materialer

Trapper Innvendige trapper

🧱 Tre

Antall: 3

Profilert tretrapp med dreide søyler og balustre, malt utførelse

Innvendige trapper mellom etasjer og i utleiedel

Tømrer Innvendige og utvendige tømrerarbeider

🧱 Tre

Innvendig panel, listverk, montering av trekonstruksjoner, membran i våtrom

Tømrerarbeider for bolig og våtrom

Grunnarbeid Masseutskifting og drenering

Planering, tilbakefylling, smågraving, drenering og overvannshåndtering

Grunnarbeider for ny bolig og uteområder

Vinduer Smårutede vinduer

🧱 Tre

Antall: 34

Smårutede vinduer i tradisjonell stil, med krav til dagslys og ventilasjon, inkludert vinduer med lav brystningshøyde ved benkeplate

Vinduer til ny enebolig med utleiedel, tilpasset eksisterende kulturmiljø og tekniske krav

Dører Ytterdører og verandadører

🧱 Tre

Antall: 12

Ytterdører til hver boenhet, inkludert verandadører og brannklassifiserte dører

Dører for hovedinngang og utleiedel, samt verandadører

VVS Varmepumpe luft til luft

Antall: 1

Luft-til-luft varmepumpe for oppvarming

Oppvarmingssystem for ny bolig

VVS Sanitærinstallasjoner

Sanitærutstyr med wc, servant, dusj, bereder, opplegg for vaskemaskin, rør i rør system

Sanitærinstallasjoner for begge boenheter

Betong Grunnmur og fundament

🧱 Betong og naturstein

Betongsåler, natursteinsgrunnmur med utvendig puss, betongpilarer og bjelkelag over kjeller

Grunnmur og fundament for ny bolig

Riving Riving og miljøsanering

Riving av totalskadet bolig, miljøsanering, bortkjøring og deponering av avfall

Riving av eksisterende bolig og opprydding

Fasade Stående trepanel

🧱 Tre

Stående kledning i tre, tilpasset eksisterende bebyggelse og kulturmiljø

Fasadepanel for ny bolig

Utendørs Terrengarbeid og uteareal

Utomhusplan med terrengjustering, uteoppholdsareal, snøopplag og beplantning

Uteområder og landskapsarbeid

Ventilasjon FTX-aggregat

Antall: 2

FTX ventilasjonsanlegg HERU 70 TK for begge boenheter

Ventilasjonsanlegg for ny bolig

Maling Innvendig og utvendig maling

Maling av panel, listverk og utvendige detaljer

Overflatebehandling for ny bolig

Elektro El-anlegg med tavler

Antall: 2

El-tavle for hver boenhet, inkludert belysning, kontakter og varmekabler i bad

Elektrisk installasjon for begge boenheter

Tak Saltak med takark

🧱 Teglstein

Antall: 1

Saltak med takvinkel 34 grader, takark for dagslys på loft, betongtakstein på lekter

Taktekking og konstruksjon for ny bolig

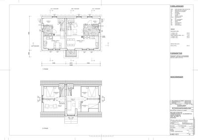
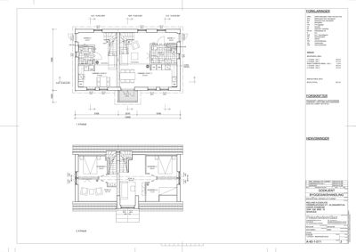
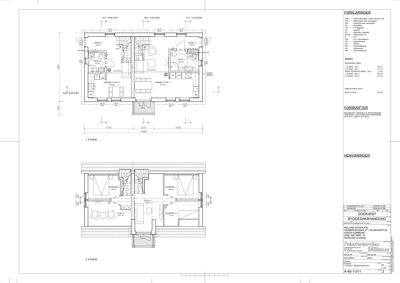
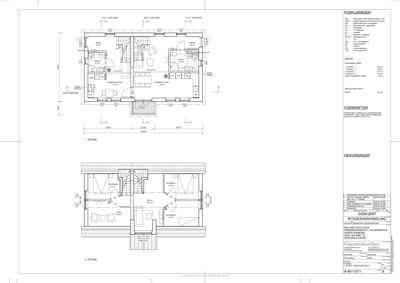
Plantegning

Enebolig 11.8 m²

Etasje 1 11.8 m²

Rom Areal Vinduer Dører
Stue 101 11.8 m² 1 2
Kjøkken 102 0.0 m² 0 1
Gang 103 0.0 m² 0 1
Bad 104 0.0 m² 0 1
Soverom 105 0.0 m² 1 1
Soverom 106 0.0 m² 1 1
Gang 107 4.6 m² 0 2
Stue 0 0.0 m² 0 1

Etasje 2 0.0 m²

Rom Areal Vinduer Dører
Soverom 201 0.0 m² 1 1
Soverom 202 0.0 m² 1 1
Gang 203 0.0 m² 0 2
Kjøkken 204 0.0 m² 1 1
Bad 205 0.0 m² 0 1
Stue 206 0.0 m² 1 1
Stue 0 0.0 m² 0 1

Hovedbygg 69.4 m²

Etasje 1 69.4 m²

Rom Areal Vinduer Dører
Gang Gang 2.5 m² 0 2
Stue/kjøkken Stue/kjøkken 19.9 m² 1 1
Sovegang SOV 14.0 m² 1 1
Bad 2 Bad 2 3.7 m² 0 1
Bad 3 Bad 3 3.3 m² 0 1
Soverom SOV 7.6 m² 1 1

Fasader

Enebolig

Ukjent
Materiale
Tre
Taktype
Saltak
Takmat.
Tegl
Vinduer
6
Dører
1
Balkonger
1
Synlige etasjer
2
Sørøst
Materiale
Tre
Taktype
Saltak
Vinduer
3
Dører
1
Balkonger
1
Synlige etasjer
2
Sørvest
Materiale
Tre
Taktype
Saltak
Takmat.
Tegl
Vinduer
6
Dører
1
Synlige etasjer
2
Øst
Materiale
Tre
Taktype
Saltak
Vinduer
3
Dører
1
Balkonger
1
Synlige etasjer
2
Sør
Materiale
Tre
Taktype
Saltak
Takmat.
Tegl
Vinduer
6
Dører
1
Balkonger
1
Synlige etasjer
2
Nordvest
Materiale
Tre
Taktype
Saltak
Takmat.
Tegl
Vinduer
3
Dører
1
Balkonger
1
Synlige etasjer
2
Nordøst
Materiale
Tre
Taktype
Saltak
Takmat.
Tegl
Vinduer
3
Dører
0
Synlige etasjer
1
Vest
Materiale
Tre
Taktype
Saltak
Vinduer
2
Dører
1
Balkonger
1
Synlige etasjer
2
Nord
Materiale
Tre
Taktype
Flatt tak
Vinduer
3
Dører
0
Synlige etasjer
1

Hendelser

10.04.2026 308/16 Grimsrudveien 271 - Reviderte tegninger
08.04.2026 308/16 Grimsrudveien 271 - Spørsmål til søknaden søknad
29.03.2026 308/16 Grimsrudveien 271 - Ber om dokumentasjon på at flere boenheter har vært godkjent
27.03.2026 308/16 Grimsrudveien 271 - Rettslig redegjørelse for todelt bolig
26.03.2026 308/716 Grimsrudveien 271 - Ber om tilbakemelding på muligheten for å kunne få tillatelse til riving før nybygget er godkjent
20.03.2026 308/16 Grimsrudveien 271 - Svar på varsel om avslag og anmodning om omprosjektering avslag
10.03.2026 308/16 Grimsrudveien 271 - Oversender uttalelser og anmoder om omprosjektering
06.03.2026 308/16 Grimsrudveien 271 - Akershus fylkeskommunes uttalelse til søknad om dispensasjon dispensasjon
05.03.2026 308/16 Grimsrudveien 271 - Statsforvalterens uttalelse til søknad om dispensasjon fra kommuneplan for riving av bolig og oppføring av nytt bolighus dispensasjon
04.02.2026 308/16 Grimsrudveien 271 - Anmodning om uttalelse til søknad om riving av verneverdig bolig og oppføring av nytt bolighus søknad
04.02.2026 308/16 Grimsrudveien 271 - Supplering av søknad søknad
23.01.2026 308/16 Grimsrudveien 271 - Varsel om avslag og anmodning om omprosjektering - Riving og oppføring av nytt bolighus avslag
15.01.2026 308/16 Grimsrudveien 271 - Supplering av søknad søknad
11.12.2025 308/16 Grimsrudveien 271 - Behov for eksisterende tegninger
21.11.2025 308/16 Grimsrudveien 271 - Ber om status i saken
17.11.2025 308/16 Grimsrudveien 271 - Fylkeskommunens svar til oversendt situasjonskart - dispensasjon fra byggegrense mot fylkesvei 2684 (Kopi) dispensasjon
06.10.2025 308/16 Grimsrudveien 271 - Søknad om tillatelse i ett trinn - Riving og oppføring av nytt bolighus søknad