NewConstruction Igangsettingstillatelse Enebolig

Nytt våningshus med boligformål på Grimstadneset 20, Bergen

📍 Grimstadneset 20

Nøkkelinfo

Sakstype
Nybygg
Bygningstype
Enebolig
Bruksareal
116 m²
Boenheter
1
Kommune
Bergen
Fylke
Vestland
Gnr / Bnr
31 / 1
Saksnummer
BYGG-2022/23684
Fase
Igangsettingstillatelse

Om byggesaken

Ny enebolig på 116 m² fordelt på to etasjer bygges på Grimstadneset 20 i Bergen. Boligen har en funksjonell planløsning med stue, kjøkken, vaskerom, bad, gang, bod og kontor i første etasje, og to soverom, bad og gang i andre etasje. Bygget utføres med trekonstruksjoner, plasstøpte betongfundamenter, membran og flisarbeider i våtrom, balansert ventilasjon og sanitærinstallasjoner. Fasaden består av dobbeltfalset kledning, taket har betongtakstein, og vinduer med 2-lags isolerglass. Det er gjennomført støyutredning som krever lydisolerende vinduer og ventiler. Tilknytning til kommunalt vann- og avløpsnett med krav til tilbakestrømningssikring er ivaretatt. Prosjektet er i igangsettingsfase med ansvarlige prosjekterende, utførende og kontrollerende.

Produkter og materialer

Ventilasjon Lyddempede veggventiler og balansert ventilasjon

Lyddempede veggventiler med lydreduksjonstall Dn,e,w ≥ 44-46 dB, alternativt balansert ventilasjonsanlegg

Ventilasjonsløsning for å redusere lydnivå og sikre luftkvalitet uten støygjennomslag

Sanitær Vann- og avløpsrør, armaturer og utstyr

Sanitærinstallasjoner for bolig med tilknytning til kommunalt vann- og avløpsnett, inkl. tilbakestrømningssikring

Sanitærinstallasjoner i våningshus og driftsbygning

Tak Betongtakstein

🧱 Betong

Taktekking med betongtakstein

Grunnarbeid Plasstøpte betongfundamenter

🧱 Betong

Fundamenter for bygget

Fundamentering med plasstøpt betong

VVS Balansert ventilasjon og klimainstallasjoner

Prosjektering og montering av balansert ventilasjonssystem

Ventilasjonsanlegg for bolig med krav til lydisolasjon

Fasade Dobbeltfalset kledning

🧱 Trelast

Ytterkledning i dobbeltfalset tre for fasade

Mur Membran og flisarbeider våtrom

🧱 Membran, fliser

Membran og flisarbeider i bad og vaskerom

Vanntett membran og flislegging i våtrom

Maling Innvendig maling

Innvendige malerarbeider

Grunnarbeid VA-anlegg og stikkledninger

Nye stikkledninger for vann og spillvann, inkl. utkobling av brønn og slamavskiller, tilbakestrømningssikring i henhold til VA-miljøblad 61 og NS1717

Tilknytning til kommunalt vann- og avløpsnett med nødvendige sikringer

Vinduer Lydisolerende vinduer

🧱 2-lags isolerglass, Rw ≥ 42 dB

Antall: 14

Vinduer med lydreduksjon for å tilfredsstille støykrav, inkludert utskifting av glass og tetting av spalteventiler

Lydisolerende vinduer for oppholdsrom og soverom for å redusere innendørs lydnivå under grenseverdier

Elektro Elektriske installasjoner

Elektriske installasjoner i bolig

Tømrer Trekonstruksjoner og montering av vinduer, dører og ventilasjon

🧱 Tre

Komplett tømrerarbeid inkl montering av vinduer, dører og ventilasjonssystem

Tømrerarbeid for bærende konstruksjoner og montering av bygningskomponenter

Gulv Gulvbelegg og overflater

Gulvbelegg i bolig

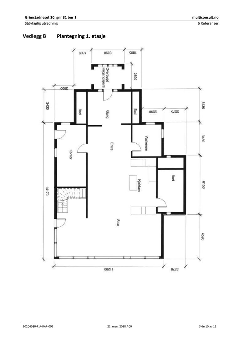
Plantegning

Enebolig 116.0 m²

Etasje 1 68.5 m²

Rom Areal Vinduer Dører
Stue 101 28.5 m² 3 1
Kjøkken 102 12.0 m² 0 1
Vaskerom 103 6.5 m² 1 1
Bad 104 5.5 m² 0 1
Gang 105 10.0 m² 0 2
Bod 106 4.0 m² 1 1
Bod 107 4.0 m² 1 1
Kontor 108 8.0 m² 1 1

Etasje 2 47.5 m²

Rom Areal Vinduer Dører
Sov 201 14.5 m² 2 1
Sov 202 14.5 m² 2 1
Bad 203 6.5 m² 0 1
Gang 204 12.0 m² 0 2

Hendelser

18.09.2025 Igangsettingstillatelse for hele tiltaket, 31/1, Grimstadneset 20
18.09.2025 Grimstadneset 20 Gjennomføringsplan 31/1
18.09.2025 Orientering om innsending- 31/1/0/0 Grimstadneset 20, nytt bygg - Boligformål
14.07.2025 Grimstadneset 20 Gjennomføringsplan 31/1
14.07.2025 Tilleggsopplysninger
11.07.2025 Behov for tilleggsopplysninger, 31/1, Grimstadneset 20
04.02.2025 Grimstadneset 20 Søknad om igangsettingstillatelse 31/1
30.01.2025 Melding om endring av ansvarlig søker - 31/1/0/0 Grimstadneset 20, nytt bygg - Boligformål
06.05.2024 Fakturagrunnlag
02.05.2024 Rammetillatelse, 31/1/0/0 Grimstadneset 20, nytt bygg - boligformål
11.12.2023 ubw ordre 20631126
24.11.2023 Avslag på søknad.
11.04.2023 Tilleggsopplysninger- 31/1/0/0 Grimstadneset 20, nytt bygg - Boligformål
08.08.2022 Supplering - 31/1/0/0 Grimstadneset 20, nytt bygg - Boligformål
14.07.2022 Behov for tilleggsopplysninger- 31/1/0/0 Grimstadneset 20, nytt bygg - Boligformål
13.07.2022 Sjekkliste 2
08.06.2022 Bekreftelse på mottatt søknad - 31/1/0/0 Grimstadneset 20, nytt bygg - Boligformål
01.06.2022 Grimstadneset 20 Søknad om rammetillatelse 31/1