NewConstruction UnderBehandling Enebolig

Oppføring av 9 eneboliger i Hafellveien 2, Råde

📍 Hafellveien 18 , 1643 RÅDE

Nøkkelinfo

Sakstype
Nybygg
Bygningstype
Enebolig
Bruksareal
2,200 m²
Boenheter
9
Kommune
Råde
Fylke
Østfold
Gnr / Bnr
100 / 20
Saksnummer
2025/9798
Fase
Under behandling

Om byggesaken

Prosjektet omfatter oppføring av 9 frittliggende eneboliger i delfelt B22 og B23 i Hafellveien 2, Råde kommune. Hver bolig har varierende bruksareal rundt 200-270 m² fordelt på 2-3 etasjer inkludert sokkeletasje, med tilhørende garasje og sportsbod. Byggene har saltak eller pulttak med takpapp og trefasader i ulike farger fra Jotun. Utomhusanlegget inkluderer asfalterte gårdsplasser, gress- og grusarealer, terrengtilpasning med støttemurer og terrengtrapper i granitt, samt lokal overvannshåndtering med infiltrasjon og fordrøyning. Det er etablert offentlig vann- og avløpsnett med stikkledninger til hver tomt. Prosjektet følger reguleringsplanens bestemmelser, med unntak av en mindre dispensasjon for gesimshøyde på én bolig. Området har god terrengtilpasning og tilfredsstillende støyforhold i henhold til gjeldende retningslinjer.

Produkter og materialer

Vinduer Fasadevindu

🧱 Tre med antrasitt grå ramme, 3-lags energiglass

Antall: 30

Vinduer i tre med antrasitt grå farge RAL 7016 / NCS S8005-B20G

Fasadevinduer i ulike størrelser for alle 9 eneboliger

Dører Ytterdør og balkongdør

🧱 Tre med antrasitt grå farge

Antall: 18

Ytterdører og balkongdører i tre, antrasitt grå RAL 7016

Ytterdører og balkongdører til alle boliger

Elektro Utendørs belysning

🧱 Kabler og armaturer for utendørs belysning

Rør og kabler i grunn for utendørs belysning iht. utomhusplan

Utendørs belysning for adkomstveier og uteområder

Garasjeport Garasjeport i tre

🧱 Tre, antrasitt grå

Antall: 9

Garasjeporter i tre med antrasitt grå farge

Garasjeporter tilhørende hver bolig

Tak Saltak og pulttak med takpapp

🧱 Takpapp, sort

Antall: 9

Saltak og pulttak med sort takpapp som takmateriale

Taktekking for alle 9 eneboliger

Trapper Innvendig trapp og utvendig terrengtrapp i granitt

🧱 Granitt for utvendige trapper, tre og betong for innvendige trapper

Antall: 9

Terrengtrapper i granitt med forskriftsmessige håndløpere, innvendige trapper i boligene

Trapper for adkomst og innvendig bruk i alle boliger

Betong Støttemurer og fundamenter

🧱 Betong, Asak Vertica® murstein 45x28x20 cm koksgrå mix

Støttemurer i betongstein, fundamentering iht. Byggforsk detaljblad

Støttemurer for terrengstøtte og fundamentering av konstruksjoner

Gulv Innvendige gulvflater

🧱 Ikke spesifisert i detalj, men boligstandard

Innvendige gulv i boligene

Terrasse Terrassearealer

🧱 Ikke detaljert spesifisert, men med terrasseareal på ca. 24-60 m² per bolig

Antall: 9

Terrassearealer tilknyttet hver bolig

Maling Fasade- og innvendig maling

🧱 Jotun fasademaling i angitte farger

Fasademaling i Jotun farger 0745 GRØNN UMBRA, 1283 LYS GRÅ UMBRA, 2279 DODENKOPF, 0152 STAVERNGUL

Maling av fasader og eventuelt innvendige overflater

VVS Overvannshåndtering

🧱 Drensrør, infiltrasjonsmasser, grøfter, fordrøyningsmagasin

Lokal overvannshåndtering med infiltrasjon, fordrøyning på ca. 86 m³, grøfter langs vei og uteplasser

Overvannssystem for håndtering av tak- og overflatevann

Fasade Liggende og stående kledning

🧱 Tre, malt med Jotun farger 0745 GRØNN UMBRA, 1283 LYS GRÅ UMBRA, 2279 DODENKOPF, 0152 STAVERNGUL

Antall: 9

Liggende og stående trepanel med spesifiserte Jotun farger

Fasadebekledning for alle boliger og garasjer

Rekkverk Glassrekkverk og trespiler

🧱 Glass og impregnert tre

Rekkverk i glass og impregnert trespiler på balkonger og terrasser

Rekkverk for balkonger og terrasser

Grunnarbeid Terrengbearbeiding og drenering

🧱 Drenslag, singel, vekstjord, fiberduk

Terrengplanering, drenering med drenslag og singel, vekstjord for grøntarealer

Grunnarbeider for terrengtilpasning, drenering og grøntanlegg

VVS Vann- og avløpsinstallasjoner

🧱 PVC og PE rør, stikkledninger SP110PVC og VL32PE

Antall: 9

Stikkledninger til hver tomt, tilkobling til offentlig VA-nett

Vann- og avløpssystem for hver bolig

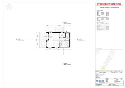
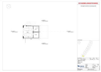
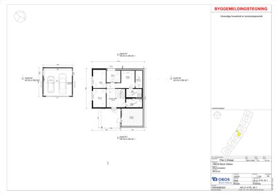
Plantegning

Enebolig 391.8 m²

Etasje 0 198.8 m²

Rom Areal Vinduer Dører
Garasje G01 33.1 m² 0 1
Sport G02 14.6 m² 0 1
Medie G03 17.3 m² 0 1
Bod G04 9.3 m² 0 1
Entré G05 4.8 m² 0 1
Gang/Trapp G06 16.4 m² 0 0
Sov.4 G07 9.0 m² 1 1
Sov.3 G08 9.7 m² 1 1
Vask G09 12.4 m² 1 1
Bad G10 11.3 m² 0 1
Garasje GARASJE 37.2 m² 0 0

Etasje -1 115.3 m²

Rom Areal Vinduer Dører
Sov.3 SOV.3 11.1 m² 1 1
Sov.2 SOV.2 11.0 m² 1 1
Sov.4 SOV.4 7.7 m² 1 1
Medie MEDIE 11.2 m² 1 1
Bod BOD 5.7 m² 1 1
Bad BAD 6.1 m² 0 1
Vask VASK 6.4 m² 0 1
Entre/Trapp ENTRE/TRAPP 19.8 m² 0 1
Sport SPORT 17.2 m² 1 1

Etasje 1 77.7 m²

Rom Areal Vinduer Dører
Veranda 101 24.3 m² 1 1
Stue/kjøkken 102 36.2 m² 1 1
Entré 103 5.8 m² 0 1
Gang/Trapp 104 9.7 m² 0 1
Bad 105 7.6 m² 0 1
Vask 106 0.3 m² 0 1

Fasader

Enebolig

Nord-Øst
Materiale
Tre
Taktype
Saltak
Takmat.
Takpapp
Vinduer
4
Dører
1
Synlige etasjer
2
Nord-Vest
Materiale
Tre
Taktype
Saltak
Vinduer
3
Dører
1
Balkonger
1
Synlige etasjer
2
Sør-Vest
Materiale
Tre
Taktype
Flatt tak
Takmat.
Takpapp
Vinduer
2
Dører
1
Balkonger
1
Synlige etasjer
1
Sør-Øst
Materiale
Tre
Taktype
Pulttak
Vinduer
4
Dører
1
Synlige etasjer
1

Hendelser

20.04.2026 Supplering av søknad - gnr 100 bnr 21 - Hafellveien 2
24.02.2026 Etterspørsel om tilleggsdokumentasjon - 9 eneboliger - gnr 100 bnr 20, 21, 33, 34, 35, 36, 37, 38, 39 - Hafellveien 2, 4, 6, 8, 10, 12, 14, 16, 18
13.02.2026 Supplering av søknad gnr 100 bnr 21 - Hafellveien 2
02.02.2026 Etterspørsel om tilleggsdokumentasjon - 9 eneboliger - gnr. 100 bnr. 20, 21, 33, 34, 35, 36, 37, 38, 39 - Hafellveien 2, 4, 6, 8, 10, 12, 14, 16, 18
18.12.2025 Søknad om rammetillatelse - 9 eneboliger - delfelt B22 og B23 - gnr 100 bnr 21 - Hafellveien 2, 4, 6, 8, 10, 12, 14, 16, 18