NewConstruction UnderBehandling Enebolig

Ny enebolig og garasje i Hafellveien 7, Råde

📍 Hafellveien 7 , 1643 RÅDE

Nøkkelinfo

Sakstype
Nybygg
Bygningstype
Enebolig
Bruksareal
260 m²
Boenheter
1
Kommune
Råde
Fylke
Østfold
Gnr / Bnr
100 / 29
Saksnummer
2024/6406
Fase
Under behandling

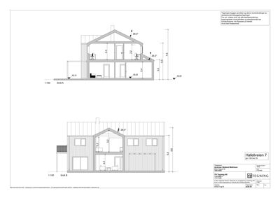
Om byggesaken

Ny enebolig på totalt 259,4 m² BRA fordelt på to etasjer med moderne arkitektur og saltak, oppført i tre med stående brunbeiset kledning. Boligen inneholder 8 rom, 2 bad, 2 WC, kjøkken, vaskerom, bod, TV-stue, stue og kontor, samt en balkong på 5,5 m². Garasje på 41,8 m² er frittliggende med saltak uten takopplett, i tråd med reguleringsplanens bestemmelser. Bygget har pipe med stålpipe, og er fundamentert på støpt plate. Utearealer opparbeides med markterrasse og pergola, og det er tilknytning til offentlig vann og avløp. Tiltaket er tilpasset terrenget med hensyn til bevaringsområde for landskap og vegetasjon, og har godkjent plassering og utnyttelsesgrad på 21,85%.

Produkter og materialer

Grunnarbeid Vei, utearealer og landskapsutforming

Opparbeidelse av vei, utearealer og landskap

Grunnarbeider for adkomst, uteområder og terrengtilpasning

Dører Ytterdører og balkongdører

🧱 Tre/aluminium

Antall: 14

Ytterdører og balkongdører i bolig og garasje

Dører for inngang, balkong og garasje

VVS Vannforsynings- og avløpsanlegg

Tilknytning til offentlig vann og avløp

Vann- og avløpsanlegg tilkoblet kommunalt nett

Pipe Stålpipe

🧱 Stål

Antall: 1

Oppføring av ildsted med stålpipe

Pipe for ildsted i bolig

VVS Sanitærinstallasjoner

Sanitærinstallasjoner i bolig

VVS-installasjoner for vann og avløp

Gulv Innvendige gulv

Innvendige gulv i bolig

Gulvbelegg og overflater i bolig

Fasade Stående trepanel kledning

🧱 Brunbeiset tre

Stående brunbeiset kledning på bolig og garasje

Fasade med stående brunbeiset trepanel som gir et moderne preg

Trapper Innvendig trapp

🧱 Tre

Antall: 1

Innvendig trapp mellom 1. og 2. etasje

Trapp i bolig for etasjeadkomst

Isolasjon Bygningsisolasjon

Isolasjon iht. TEK17 krav for bolig

Isolasjon i vegger, tak og gulv

Maling Innvendig og utvendig maling

Maling av fasade og innvendige flater

Overflatebehandling av tre og innvendige flater

Betong Støpt plate

🧱 Betong

Støpt plate som fundament for bolig og garasje

Fundamentering med støpt betongplate

Tak Saltak med taktekking

🧱 Sorte/mørke takplater

Saltak med sorte/mørke takplater, uten takopplett på garasje

Saltak på bolig og garasje med mørk taktekking

Terrasse Markterrasse og pergola

🧱 Tre

Markterrasse og pergola oppføres senere

Uteoppholdsareal med terrasse og pergola

Garasjeport Port til frittliggende garasje

🧱 Tre/metall

Antall: 1

Garasjeport i garasje på 41,8 m²

Port til frittliggende garasje

Ventilasjon Balansert ventilasjon

Prosjektering og utførelse av balansert ventilasjon

Ventilasjonsanlegg for bolig

Vinduer Fasadevindu

🧱 Tre/aluminium, 3-lags energiglass

Antall: 26

Vinduer i bolig og garasje, inkludert balkongdører

Vinduer og balkongdører i bolig og garasje med energiglass

Tømrer Trekonstruksjoner

🧱 Tre

Montering av trekonstruksjoner i bolig og garasje

Tømrerarbeid for bærende konstruksjoner og fasade

Plantegning

Enebolig 259.4 m²

Etasje 2 111.5 m²

Rom Areal Vinduer Dører
Gang 201 17.3 m² 0 0
Kontor 202 5.9 m² 1 1
Sov 203 10.8 m² 1 1
Sov 204 12.6 m² 1 1
Sov 205 9.2 m² 1 1
Stue 206 19.2 m² 3 1
Sov 207 14.3 m² 1 1
Bod 208 7.7 m² 0 1
Bad 209 8.4 m² 0 1
Balkong 210 5.5 m² 0 1

Etasje 1 147.9 m²

Rom Areal Vinduer Dører
Hall/trapp 101 22.0 m² 0 2
Bod 102 13.0 m² 1 1
Bad 103 4.5 m² 0 1
TV-stue 104 13.8 m² 1 1
Stue 105 42.5 m² 3 1
Kjøkken 106 12.5 m² 1 1
Vaskerom 107 9.0 m² 1 1
Teknisk utstyr Tekn.utstyr 0.0 m² 0 0
Overbygget areal Overbygget areal 8.0 m² 1 1
Overbygget areal Overbygget areal 5.4 m² 0 0

Fasader

Enebolig

Vest
Materiale
Tre
Taktype
Saltak
Høyde
4.9 m
Mønehøyde
8.2 m
Vinduer
5
Dører
1
Balkonger
1
Synlige etasjer
2
Nord
Materiale
Tre
Taktype
Saltak
Høyde
4.9 m
Mønehøyde
8.2 m
Vinduer
2
Dører
2
Balkonger
1
Synlige etasjer
2
Øst
Materiale
Tre
Taktype
Saltak
Vinduer
5
Dører
2
Balkonger
1
Synlige etasjer
2
Sør
Materiale
Tre
Taktype
Saltak
Vinduer
4
Dører
1
Synlige etasjer
2

Hendelser

16.04.2026 Vedrørende søknad om ferdigattest - gnr 100 bnr 29 - Hafellveien 7
17.03.2026 Vedrørende - Søknad om ferdigattest - Bolig - gnr 100 bnr 29 - Hafellveien 7
04.03.2026 Søknad om ferdigattest - gnr 100 bnr 29 - Hafellveien 7
14.05.2025 Endring av gebyrregulativ med tilbakevirkende kraft - tilbakebetaling av behandlingsgebyr for byggesak
25.02.2025 Midlertidig brukstillatelse - enebolig - gnr. 100 bnr. 29 - Hafellveien 7
21.02.2025 Søknad om midlertidig brukstillatelse - gnr 100 bnr 29 - Hafellveien 7
29.08.2024 Supplering av ansvarserklæringer og oppdatert gjennomføringsplan - nybygg bolig og garasje - gnr. 100 bnr. 29 - Hafellveien 7
23.08.2024 Supplering av søknad - gnr 100 bnr 29 - Hafellveien 7
20.06.2024 Supplering av søknad - gnr 100 bnr 29 - Hafellveien 7
19.06.2024 Nybygg bolig - Hafellveien 7 - gnr. 100 bnr. 29
18.06.2024 Som et ledd i kommunens tilsynsplikt - innsending av dokumentasjon på utdannelse og praksis
18.06.2024 VS: Som et ledd i kommunens tilsynsplikt - innsending av dokumentasjon på utdannelse og praksis
18.06.2024 SV: Som et ledd i kommunens tilsynsplikt - innsending av dokumentasjon på utdannelse og praksis
18.06.2024 SV: Som et ledd i kommunens tilsynsplikt - innsending av dokumentasjon på utdannelse og praksis Subject:0676201
13.06.2024 Supplering av søknad - gnr 100 bnr 29 - Hafellveien 7
13.06.2024 24/6406 - Hafellveien 7
12.06.2024 Vedr. innsendt søknad om byggetillatelse - mangler ved søknad
12.06.2024 Som et ledd i kommunens tilsynsplikt - innsending av dokumentasjon på utdannelse og praksis
12.06.2024 SV: Som et ledd i kommunens tilsynsplikt - innsending av dokumentasjon på utdannelse og praksis
24.05.2024 Søknad om tillatelse i ett trinn - gnr 100 bnr 29 - Hafellveien 7