NewConstruction Rammetillatelse Enebolig

Gjenoppføring av enebolig i Haugetangveien 9A, Fredrikstad

📍 Haugetangveien 8 , 1621 GRESSVIK

Nøkkelinfo

Sakstype
Nybygg
Bygningstype
Enebolig
Bruksareal
202 m²
Boenheter
1
Kommune
Fredrikstad
Fylke
Østfold
Gnr / Bnr
49 / 151
Saksnummer
2026/4038
Fase
Rammetillatelse

Om byggesaken

Ny enebolig på 202 m² fordelt på flere plan bygges som gjenoppføring etter brannskade. Boligen har saltak med teglstein, trepanel på fasader, og pipe med stålbeslag. Hovedetasjen inneholder stue/kjøkken, entré, bad/vaskerom og soverom, mens loft og underetasje har flere soverom og bad. Bygget tilpasses eksisterende terreng med ny grunnmur og isolasjon. Det er én trapp i bygget, og fasadene har flere vinduer med kittfals og dører i tre. Bygget er prosjektert med hensyn til kulturmiljø og med dispensasjoner for takhøyde og dagslys på loftet for å bevare opprinnelig uttrykk. Utearealet på tomten er 196 m², og eksisterende adkomst og parkering videreføres med kommunens samtykke til bruk av garasje på kommunal grunn.

Produkter og materialer

Maling Utvendig og innvendig maling

Maling av trepanel og innvendige overflater, detaljer ikke spesifisert

Maling for fasade og innvendige flater

Isolasjon Tak- og gulvisolasjon

🧱 Isolasjon 250 mm i tak og gulv

Isolasjon i tak og gulv mot grunn og det fri

Isolasjon for energieffektiv bolig

Vinduer Vinduer med kittfals

🧱 Tre, kittfals

Antall: 14

Vinduer tilpasset opprinnelig utseende, inkludert 3-fagsvinduer i fasade nordvest

Vinduer med kittfals for å bevare husets opprinnelige uttrykk

Grunnarbeid Grunnmur og drenering

🧱 Betong, isolasjon 250 mm under gulv

Ny grunnmur tilpasses terreng, drenering med nødvendig fall prosjekteres

Grunnmur og drenering tilpasset eksisterende fjellgrunn

Gulv Innvendige gulv

Gulv på oppfylt grunn med isolasjon, detaljer prosjekteres

Innvendige gulv med isolasjon og oppfylling

Ventilasjon Mekanisk ventilasjon med varmegjenvinning

Ventilasjon med varmegjenvinning iht. energiberegning og TEK17

Ventilasjonsanlegg for bolig

VVS Vann- og avløpsinstallasjoner

Tilknytning til offentlig vann og avløp, eksisterende trasé videreføres

Vann- og avløpssystem til bolig

Elektro Elektriske installasjoner

Elektriske installasjoner iht. TEK17 og gjeldende forskrifter

Elektriske anlegg i bolig

Terrasse Uteoppholdsareal

Antall: 196

Uteoppholdsareal på 196 m², privat, opparbeidet iht. kommuneplanens krav

Uteareal rundt bolig

Garasjeport Garasjeport til eksisterende garasje

Antall: 1

Bruk av eksisterende garasje på kommunal grunn med kommunens samtykke

Garasjeport til eksisterende garasje

Fasade Trepanel

🧱 Høvlet liggende panel, weatherboard eller enkeltfalset vestlandspanel

Gjærede hjørner, samme detaljering som før brann

Fasadepanel for ny enebolig i tre, tilpasset kulturmiljø

Dører Ytterdører i tre

🧱 Tre

Antall: 5

Dører tilpasset opprinnelig stil

Ytterdører i tre for bolig og bod

Trapper Innvendig trapp

Antall: 1

Innvendig trapp til loft og underetasje, tilpasses rom og forskrifter

Innvendig trapp i bolig

Pipe Stålpipe med utvendig kledning

🧱 Stål med stålbeslag

Antall: 1

Pipe kledd inn utvendig med stålbeslag, minimum 800 mm over tak

Pipe for bolig med stålbeslag

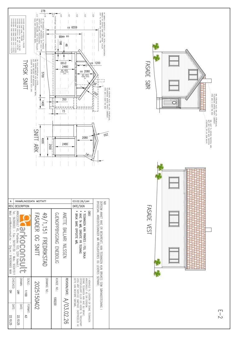
Tak Saltak med teglstein

🧱 Teglstein, enkeltkrum teglstein som før brann

Mønehøyde ca. 24,85 m, pipe med stålbeslag kledd utvendig

Taktekking med teglstein og pipe med stålbeslag

Plantegning

Enebolig 202.1 m²

Etasje 1 37.2 m²

Rom Areal Vinduer Dører
Stue/Kjøkken STUE/KJØKKEN 37.2 m² 4 1
Stue/Kjøkken 101 37.2 m² 2 1
Entré 102 8.0 m² 0 1
Bad/Vask 103 6.2 m² 0 1
Sov-1 104 9.4 m² 1 1

Etasje 0 63.3 m²

Rom Areal Vinduer Dører
Sov rom 1 SOV-1 9.4 m² 0 1
Bad/Vask BAD/VASK 6.2 m² 0 1
Entré/Trapp ENTRE/TRAPP 8.0 m² 0 1

Etasje -1 38.3 m²

Rom Areal Vinduer Dører
Sov rom 2 SOV-2 8.0 m² 1 1
Sov rom 3 SOV-3 8.5 m² 0 1

Etasje 2 63.3 m²

Rom Areal Vinduer Dører
Sov rom 1 SOV-1 9.4 m² 1 1
Bad/Vask BAD/VASK 6.2 m² 0 1
Sov rom 2 SOV-2 8.0 m² 1 1
Trapp/Gang TRAP/GANG 18.1 m² 0 2
Sov rom 3 SOV-3 8.5 m² 1 1
Gang 201 18.1 m² 0 1
Sov-2 202 8.0 m² 1 1
Sov-3 203 8.5 m² 1 1

Fasader

Enebolig

Sør
Materiale
Tre
Taktype
Saltak
Høyde
6.5 m
Mønehøyde
8.2 m
Vinduer
2
Dører
1
Synlige etasjer
2
Vest
Materiale
Tre
Taktype
Saltak
Høyde
6.5 m
Mønehøyde
8.2 m
Vinduer
3
Dører
0
Synlige etasjer
2
Nord
Materiale
Tre
Taktype
Saltak
Takmat.
Tegl
Vinduer
1
Dører
1
Synlige etasjer
1
Øst
Materiale
Tre
Taktype
Saltak
Takmat.
Tegl
Vinduer
5
Dører
1
Synlige etasjer
2

Hendelser

20.04.2026 Rammetillatelse - Nybygg - boligformål - Gjenoppføring etter brann - Haugetangveien 9A - Eiendom 49/1/151
13.04.2026 Supplering av søknad - eiendom 49/1 - Haugetangveien 9A
13.04.2026 Uttalelse - Haugetangveien 9A - Eiendom 49/1/151
10.04.2026 Anmodning om svar - Haugetangveien 9A - Eiendom 49/1/151
12.02.2026 Anmodning om uttalelse - Haugetangveien 9A - Eiendom 49/1/151
05.02.2026 Rammesøknad - Haugetangveien 9A - Eiendom 49/1/151 - Nybygg - boligformål - gjenoppføring av brannskadet bolig
05.02.2026 Bekreftelse på mottatt søknad - Nybygg - boligformål - Haugetangveien 9A - Eiendom 49/1/151