NewConstruction UnderBehandling Enebolig

Opparbeidelse av infrastruktur og miljøopprydding i Havnegata 55, Drammen

๐Ÿ“ Havnegata 55 , 9800 VADSØ

Nรธkkelinfo

Sakstype
Nybygg
Bygningstype
Enebolig
Bruksareal
17,500 mยฒ
Boenheter
165
Kommune
Drammen
Fylke
Buskerud
Gnr / Bnr
112 / 233
Saksnummer
25/38536
Fase
Under behandling

Om byggesaken

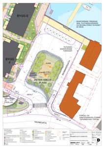
Prosjektet omfatter opparbeidelse av infrastruktur og miljøopprydding på et tidligere skipsverftområde i Havnegata 55, Drammen, med et areal på ca. 17 500 m². Det inkluderer sanering og fjerning av forurensede masser i henhold til godkjent tiltaksplan, opparbeidelse av offentlige arealer som Peter Høegs plass, fortau, gang- og sykkelveier, kjøreveg, støttemur og midlertidig gang- og sykkelvei. Det planlegges også bygging av 6 boligblokker med til sammen ca. 165 leiligheter, inkludert parkeringskjeller under deler av området. Miljøtiltak omfatter håndtering av forurenset grunn og sedimenter, med krav til rensing av anleggsvann og tiltak mot spredning av fremmede arter. Fjordpromenaden skal opparbeides med tilstrekkelig konstruksjonssikkerhet for nød- og nyttekjøretøy. Prosjektet inkluderer også rehabilitering og sikring av eksisterende bryggekonstruksjoner. Det er stilt krav til overvåking, kontroll og rapportering gjennom hele byggeprosessen.

Arbeidsomfang

- Etablering av offentlig samferdselsanlegg og teknisk infrastruktur (offentlige arealer) - Opparbeidelse av midlertidig gang- og sykkelvei frem til kryss med fylkesveg 319 Havnegata - Bygging av forstøtningsmur mellom Havnegata og byggetrinn 1 (BB1) inkludert terrengarbeider - Opparbeidelse av Peter Høegs plass (park o_PA1) med tilhørende parkeringsplasser (o_P) - Etablering av fortau, gang- og sykkelveger (o_FO1-2, o_FO3, o_AVG4-6) - Opparbeidelse av kjøreveg og kombinerte arealer (o_KV1, o_SK1) - Utvidelse av fylkesvei langs nordsiden mellom Skippergata og Skomakergata - Etablering av hovedallmenning/torg (f_TO) og fjordpromenade (o_GS2-o_GS4)

Produkter og materialer

VVS Renseanlegg for anleggsvann

Containerbasert sedimenteringsanlegg med oljeutskiller for rensing av anleggsvann før utslipp

Renseanlegg for anleggsvann med krav til drift, vedlikehold og prøvetaking

Grunnarbeid Massehåndtering og sanering

Fjerning av ca. 1600 tonn forurensede masser, masseutskifting, levering til godkjent mottak, mellomlagring innenfor eiendom med sikring mot spredning

Gravearbeider, masseutskifting, sanering av forurenset grunn i tilstandsklasse 4 og 5, håndtering av fremmede arter

Rekkverk Kjøresterkt rekkverk klasse H2

๐Ÿงฑ Stål

Rekkverk med brøytetetting langs støttemur og fortau

Sikring av fortau og veg med rekkverk for trafikksikkerhet

Elektro Trafo

Ny trafo plassert ved nedkjøring til parkeringskjeller, eksisterende pumpehus bevares

Etablering og flytting av trafo i tilknytning til utbyggingen

Fasade Støttemur

๐Ÿงฑ Betong, Leca

Støttemur mellom Havnegata og felt BB1, prosjektert med rørvegg og forankring til fjell

Oppføring av støttemur med tilhørende fundamentering og rekkverk

VVS Vann- og avløpsledninger

Sanering og plugging av eksisterende vann- og avløpsledninger, ny tilknytning til kommunalt nett

Sanering og plugging av eksisterende ledninger, etablering av nye vann- og avløpsledninger i området

Terrasse Peter Høegs plass

๐Ÿงฑ Grus, asfalt, storgatestein, betong, tredekke

Opparbeidelse av park med lekeplass, sitteplasser, beplantning, regnbed, vannrenner og belysning

Opparbeidelse av park- og utearealer med universell utforming og grønnstruktur

Gulv Asfalt og grusdekker

๐Ÿงฑ Asfalt, grus, storgatestein

Asfaltdekke i sykkelfelt og kjørearealer, grusdekke i gangarealer og uteområder, storgatestein i overkjørbare områder

Opparbeidelse av kjøreveier, gang- og sykkelveier og utearealer med ulike dekker

Fasade Fjordpromenade

๐Ÿงฑ Betong, tre, naturstein

Opparbeidelse av fjordpromenade med universell utforming, amfi, ramper, sittekanter, beplantning og belysning

Opparbeidelse av offentlig tilgjengelig fjordpromenade med tilhørende utearealer

Fasade Brygge og molo

๐Ÿงฑ Betong, tre

Rehabilitering av eksisterende bryggekonstruksjoner, utskifting av råtne tredekker og bjelker, kontroll og eventuelt utskifting av peler

Rehabilitering og sikring av brygge- og moloanlegg for fjordpromenade

Annet Tiltak mot fremmede arter

Fjerning av øverste jordlag ned til 40 cm, levering til godkjent mottak, vask av utstyr for å hindre spredning

Tiltak for å hindre spredning av svartelistede fremmede plantearter i anleggsfasen

Maling Overflatebehandling brygge

Overflatebehandling av tre- og betongkonstruksjoner på brygge for beskyttelse

Vedlikehold og rehabilitering av bryggekonstruksjoner

Isolasjon Radonsperre

Radonsperre i henhold til TEK17 under bygninger

Tiltak for å sikre mot radon i boligene

Hendelser

15.04.2026 Havnegata 95, ytterligere dokumentasjon
01.04.2026 Havnegata 55, rammetillatelse til opparbeidelse av infrastruktur for delområde 1, med dispensasjon fra detaljregulering rammetillatelse
31.03.2026 Havnegata 55, søknad om dispensasjon fra rekkefølgekrav rammetillatelse
27.03.2026 Havnegata 55, oppdatert utomhusplan
27.03.2026 Havnegata 55, tegninger vei
24.11.2025 Havnegata 55 Søknad om rammetillatelse 112/233 rammetillatelse
13.11.2025 Havnegata 55, tillatelse til miljøopprydding
13.11.2025 Havnegata 55, informasjon om tiltakets størrelse
05.11.2025 Havnegata 55, supplerende dokumentasjon
28.10.2025 Havnegata 55 Søknad om tillatelse i ett trinn 112/233 rammetillatelse