NewConstruction Avslatt Enebolig

Ny enebolig etter brann i Heimsommarøyveien 26, Øksnes

📍 Heimsommarøyveien 26 , 8430 MYRE

Nøkkelinfo

Sakstype
Nybygg
Bygningstype
Enebolig
Bruksareal
246 m²
Boenheter
1
Kommune
Øksnes
Fylke
Nordland - Nordlánnda
Gnr / Bnr
64 / 142
Saksnummer
2024/1206
Fase
Avslått

Om byggesaken

Ny enebolig på ca. 246 m² BYA oppføres etter totalbrann som ødela store deler av den tidligere boligen. Kjeller og mur benyttes som grunnlag, mens 1. og 2. etasje bygges opp på nytt med lettvegger, nye vinduer, dører og tekniske installasjoner. Bygget har saltak og trekledning, og inneholder flere soverom, bad, vaskerom, teknisk rom og bod. Det er også bruksendring av garasje til boligdel. Tiltaket følger krav i TEK17 med obligatorisk uavhengig kontroll av fuktsikring og lufttetthet. Det er gitt dispensasjon fra reguleringsplan for oppføring i landbruksområde. Ferdigattest er utstedt for tiltaket.

Produkter og materialer

VVS Vann og avløp

Oppgradering av vann- og avløpsinstallasjoner fra eksisterende tilkoblinger

Nye vann- og avløpssystemer i bolig og garasje

Elektro Elektrisk anlegg

Nytt sikringsskap, lysarmaturer, brytere og stikkontakter med trekkerør og ledninger

Fullstendig elektrisk installasjon i bolig

Gulv Stubbgulv og gulvkledning

🧱 Tre

Nye gulvkledninger med lister over betongpuss i kjeller og øvrige etasjer

Nye gulvflater i hele boligen

Vinduer Fasadevindu

🧱 Tre med 3-lags energiglass

Antall: 14

Nye vinduer i 1. og 2. etasje, samt loft, med energiglass for isolasjon og tetthet

Fasade Trekledning

🧱 Tre

Ny trekledning på yttervegger i 1. og 2. etasje

Fasade med trekledning tilpasset eksisterende boligmiljø

Bad Bad og våtrom

Antall: 2

Bad i kjeller og 1. etasje oppgraderes i henhold til TEK17

Nye bad med nødvendige installasjoner og overflater

Trapper Innvendig trapp

🧱 Tre

Antall: 1

Trapp til loft rengjøres, flikkes og overflatebehandles

Innvendig trapp mellom etasjer, delvis gjenbruk og overflatebehandling

Ventilasjon Ventilasjonssystem

Ventilasjon i henhold til TEK17 krav for bolig

Nytt ventilasjonsanlegg for godt inneklima

Annet Sanering og luktfjerning

Sanering med ozon og våtfogging etter brannskade

Luktfjerning og rengjøring av brannskadet materiale før oppbygging

Isolasjon Vegger og tak

🧱 Mineralull eller tilsvarende

Isolasjon i yttervegger, bærevegger og tak i henhold til TEK17

Isolasjon for varme- og lydisolering i hele bygget

Tak Saltak med undertak

🧱 Tre, asfaltplater, isolasjon

Antall: 1

Utskifting av takplater og isolasjon på loft, inkl. undertak

Nytt saltak med isolasjon og undertak som oppfyller TEK17 krav

Dører Ytterdør og heve-skyvedør

🧱 Tre eller tilsvarende

Antall: 4

Nye ytterdører og heve-skyvedør i 1. etasje, samt innerdører i hele huset

Mur Grunnmur og kjeller

🧱 Betong og murstein

Eksisterende mur og kjeller benyttes som grunnlag for nybygg

Bevaring og bruk av eksisterende mur og kjeller i ny bolig

Tømrer Riving og oppbygging

🧱 Treverk

Riving av brannskadet bygningsdel og oppbygging av nye vegger, tak og himlinger

Omfattende tømrerarbeid for gjenoppbygging etter brann

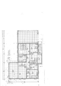
Plantegning

Enebolig 105.4 m²

Etasje 0 105.4 m²

Rom Areal Vinduer Dører
Sov 1 001 7.5 m² 1 1
Sov 2 002 7.5 m² 1 1
Fellesrom 003 11.5 m² 0 2
Bad 004 6.7 m² 0 1
Hall 005 16.7 m² 0 3
Sov 4 006 15.8 m² 1 1
Vaskerom 007 9.4 m² 1 1
Teknisk 008 3.7 m² 0 1
Bod 009 12.7 m² 0 1

Heimsommarøyveien 26 300.0 m²

Etasje 1 100.0 m²

Rom Areal Vinduer Dører
Stue H01 26.0 m² 1 1
Kjøkken H02 26.0 m² 1 1
Bad H03 26.0 m² 0 1
Gang H04 26.0 m² 0 1
Vaskerom H05 26.0 m² 0 1
Soverom H06 26.0 m² 1 1
Soverom H0101 26.0 m² 1 1
Soverom H0102 26.0 m² 1 1
Soverom H0103 26.0 m² 1 1
Soverom H0104 26.0 m² 1 1
Soverom H0105 26.0 m² 1 1
Soverom H0106 26.0 m² 1 1

Etasje 0 100.0 m²

Rom Areal Vinduer Dører
Stue U01 26.0 m² 1 1
Kjøkken U02 26.0 m² 1 1
Bad U03 26.0 m² 0 1
Gang U04 26.0 m² 0 1
Vaskerom U05 26.0 m² 0 1
Soverom U06 26.0 m² 1 1

Etasje -1 100.0 m²

Rom Areal Vinduer Dører
Kjeller K01 26.0 m² 0 1

Fasader

Enebolig

Nord-Vest
Materiale
Tre
Taktype
Saltak
Vinduer
4
Dører
1
Synlige etasjer
2
Sør-Øst
Materiale
Tre
Taktype
Saltak
Vinduer
6
Dører
1
Synlige etasjer
2
Nord-Øst
Materiale
Tre
Taktype
Saltak
Vinduer
3
Dører
0
Synlige etasjer
2
Sør-Vest
Materiale
Tre
Taktype
Saltak
Vinduer
2
Dører
1
Synlige etasjer
2

Hendelser

21.04.2026 SV: Klage over vedtak om avslag på søknad om dekning av sakskostnader – sak 241206 – Heimsommarøyveien 26, gnr. 64, bnr. 142 i Øksnes kommune
08.04.2026 Etterlyser svar - Klage over vedtak om avslag på søknad om dekning av sakskostnader – sak 241206 – Heimsommarøyveien 26, gnr. 64, bnr. 142 i Øksnes kommune klage
25.02.2026 Klage over vedtak om avslag på søknad om dekning av sakskostnader – Heimsommarøyveien 26 klage
27.01.2026 Samsvarserklæring - Myre Byggservice AS
21.01.2026 Rapport fra dokumenttilsyn med sluttdokumentasjon - Gnr. 64 Bnr. 142 - Vedrørende søknad om ferdigattest. Heimsommarøyveien 26 - Oppbygging etter brann. Ny enebolig. ferdigattest
13.01.2026 Svar på Varsel om dokumenttilsyn - Gnr. 64 Bnr. 142 - Vedrørende søknad om ferdigattest. Heimsommarøyveien 26 - Oppbygging etter brann. Ny enebolig. ferdigattest
08.01.2026 Varsel om dokumenttilsyn - Gnr. 64 Bnr. 142 - Vedrørende søknad om ferdigattest. Heimsommarøyveien 26 - Oppbygging etter brann. Ny enebolig. ferdigattest
29.12.2025 Vedtak om overtredelsesgebyr - g/bnr. 64/142 vedtak
19.12.2025 Svar på søknad om endring av gitt tillatelse - Gbnr 64/142 - Heimsommarøyveien 26 - Oppbygging etter brann. Ny enebolig. søknad
19.12.2025 Vedtak - Søknad om ferdigattest - Gbnr 64/142 - Heimsommarøyveien 26 - Oppbygging etter brann. Ny enebolig. ferdigattest
04.12.2025 Søknad om ferdigattest gbnr 64/142 ferdigattest
03.12.2025 Klage over vedtak om avslag på søknad om dekning av sakskostnader – sak 241206 – Heimsommarøyveien 26, gnr. 64, bnr. 142 i Øksnes kommune klage
01.12.2025 Svar angående krav om dekning av sakskostnader i sak 24-1206
05.11.2025 Krav om dekning av sakskostnader, sak 24-1206
13.10.2025 Heimsommarøyveien 26 Byggesak - endringer
02.10.2025 SV: Krav om dekning av sakskostnader, sak 24-1206
01.09.2025 SV: Krav om dekning av sakskostnader, sak 24-1206
29.07.2025 Forhåndsvarsel om overtredelsesgebyr - Gbnr 64/142 - Heimsommarøyveien 26 - Ny enebolig REF: 24/1206 - 32
10.07.2025 Gbnr 64/142 - vedrørende vedtak om overtredelsesgebyr vedtak
25.06.2025 Forhåndsvarsel om overtredelsesgebyr - Gbnr 64/142 - Heimsommarøyveien 26 - Ny enebolig
25.06.2025 Vedtak om overtredelsesgebyr - g/bnr. 64/142 vedtak
11.04.2025 Sv: KLP 570763 Heimsommarøyveien 26- ditt svar om hovedombygging etter brannskade
11.04.2025 Foreløpig svar - Krav om dekning av sakskostnader
10.04.2025 Gbnr 64/142 - Ansvarsrett og gjennomføringsplan
10.04.2025 Svar angående søknad om tillatelse til tiltak i ett-trinn - Gbnr 64/142 - Heimsommarøyveien 26 - Oppbygging etter brann - Enebolig. Ny søknad. byggetillatelse
08.04.2025 Dispensasjonsvedtak - Søknad om dispensasjon fra gjeldende reguleringsplanen med bestemmelser - Gbnr 64/142 - Heimsommarøyveien 26 - Oppbygging etter brann. dispensasjon
08.04.2025 SV: Krav om dekning av sakskostnader, sak 24-1206
02.04.2025 SV: Krav om dekning av sakskostnader
20.03.2025 Pålegg om stans og opphør med øyeblikkelig virkning av tiltak på eiendommen - Gnr. 64 Bnr. 142 - Oppbygging etter brann - Ny enebolig.
17.03.2025 Oppbygging etter brann Heimsommarøyveien 26 - ny søknad søknad
25.02.2025 Forhåndsvarsel om overtredelsesgebyr - Gbnr 64/142 - Heimsommarøyveien 26 - Oppbygging etter brann.
17.02.2025 Redegjørelse til kommunens brev - Heimsommarøyveien 26, sak 24/1206
12.02.2025 Anmodning om redegjørelse - Gbnr 64/142 - Heimsommarøyveien 26 - Oppbygging etter brann.
21.01.2025 Gbnr 64/124 - Erklæring om ansvarsrett
10.01.2025 Svar angående søknad om tillatelse til tiltak i ett-trinn - Gbnr 64/142 - Heimsommarøyveien 26 - Oppbygging etter brann - Enebolig. byggetillatelse
02.01.2025 Søknad 24/1206 Heimsomarøyveien 26 64/142 søknad
30.12.2024 Gbnr 64/142 - Søknad Heimsomarøyveien 26 søknad
05.12.2024 Krav om dekning av sakskostnader, sak 24-1206
02.12.2024 Vedtak; Delvis klage over avslag i sak 115/24 klage
21.11.2024 Delvis klage over vedtak om avslag - Heimsommarøyveien 26 klage
31.10.2024 Avslag på søknad om tillatelse til tiltak uten ansvar - Gbnr 64/142 - Heimsommarøyveien 26 - Oppbygging etter brann. byggetillatelse
08.10.2024 Søknad om tillatelse til tiltak Gbnr. 64/142 byggetillatelse
08.10.2024 Tilleggsopplysninger
13.09.2024 VS: KLP 570763 Heimsommarøyveien 26- ditt svar om hovedombygging etter brannskade
13.09.2024 SV: KLP 570763 Heimsommarøyveien 26- ditt svar om hovedombygging etter brannskade
12.09.2024 Vurdering av søknadsplikt for gjenoppbygging av brannskadet bolig, Heimsommarøyveien 26 søknad
12.09.2024 SV: KLP 570763 Heimsommarøyveien 26- ditt svar om hovedombygging etter brannskade
26.08.2024 Oppbygging etter brann Heimsommarøyveien 26. 64/142