NewConstruction Soeknad Enebolig

Ny enebolig med terrasse i Hjellveien 16, Henningsvær

📍 Hjellveien 16 , 8312 HENNINGSVÆR

Nøkkelinfo

Sakstype
Nybygg
Bygningstype
Enebolig
Bruksareal
165 m²
Boenheter
1
Kommune
Vågan
Fylke
Nordland - Nordlánnda
Gnr / Bnr
5 / 446
Saksnummer
26/826
Fase
Søknad

Om byggesaken

Ny enebolig på 149,9 m² BRA med sokkel på 14,7 m², totalt ca. 164,6 m², oppføres på tomt i Hjellveien 16, Henningsvær. Boligen har to etasjer med saltak og tre sammensatte takvolumer parallelt med terrengkurvene. Fasaden utføres i grå trekledning med stående bord, inspirert av lokale fiskehjeller, og taktekking i mørke matte farger. Planløsningen inkluderer flere soverom, bad, vaskerom, bod, garderober, entré, og store oppholdsrom med utgang til terrasse på 42,4 m². Det er én trapp i boligen, og det planlegges avkjørsel fra kommunal vei. Bygget plasseres med god avstand til nabogrense og tilpasses terrengets høydeforskjeller for å minimere terrenginngrep.

Produkter og materialer

Pipe Pipe for ildsted

Antall: 1

Pipe tilknyttet ildsted i bolig

Elektro Elektriske installasjoner

Elektriske installasjoner i bolig

Mur Grunnmur og sokkel

Grunnmur og sokkel på 14,7 m²

Trapper Innvendig trapp

Antall: 1

Innvendig trapp mellom etasjer

Isolasjon Bygningsisolasjon

Isolasjon i vegger, tak og gulv i henhold til TEK17

Maling Utvendig og innvendig maling

Maling av utvendig trekledning og innvendige overflater

VVS Teknisk rom og sanitærinstallasjoner

Teknisk rom og vaskerom i sokkeletasje, bad i hovedetasje

VVS-installasjoner for bad, vaskerom og teknisk rom

Tak Saltak med tre sammensatte volumer

🧱 Taktekking med mørke, matte farger som ikke reflekterer sollys

Saltak med møner parallelt med terrengkurvene, taktekking i mørke matte farger i henhold til reguleringsplan

Saltak med tre sammensatte volumer, taktekking i mørke matte farger

Vinduer Fasadevindu

Antall: 10

Fasadevinduer fordelt på alle fasader, totalt 10 stk

Tømrer Bygningskonstruksjon

Tømrerarbeid for oppføring av boligens bærende konstruksjoner

Dører Ytterdører og terrassedører

Antall: 10

Ytterdører og terrassedører til oppholdsrom og terrasser, totalt 10 stk

Grunnarbeid Tomtearbeid og terrengtilpasning

Terrengbearbeidelse for å tilpasse høydeforskjeller på ca. 2 meter, minimal sprenging

Grunnarbeid for tilpasning av terreng og etablering av avkjørsel

Terrasse Uteplass terrasse

Antall: 2

To terrasser på til sammen ca. 45,5 m², inkludert rekkverk av netting

Fasade Trekledning med stående bord

🧱 Tre, grå nyanse inspirert av fiskehjeller

Grå trekledning med stående bord, farge på den lyse siden av skalaen, tilpasset reguleringsplanens krav om ingen tunge, mørke farger

Fasade i grå trekledning med stående bord, inspirert av lokale fiskehjeller

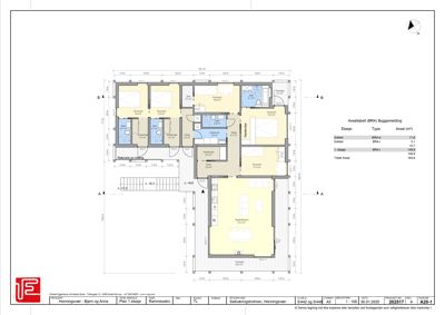
Plantegning

Enebolig 149.9 m²

Etasje 1 149.9 m²

Rom Areal Vinduer Dører
Oppholdsrom 101 41.2 m² 2 1
Kjøkken 102 0.0 m² 0 0
Terrasse 103 42.4 m² 0 1
Soverom 104 14.2 m² 1 1
Garderobe 105 0.0 m² 0 0
Soverom 106 11.3 m² 1 1
Gang 107 6.7 m² 0 0
Gang 108 3.5 m² 0 0
Soverom 109 8.4 m² 1 1
Bad 110 5.1 m² 0 1
Terrasse 111 3.1 m² 0 1
Soverom 112 8.4 m² 1 1
Bad 113 2.7 m² 0 1
Garderobe 114 3.7 m² 0 0
Bad 115 2.6 m² 0 1
Vaskerom 116 4.8 m² 0 1
Garderobe 117 3.5 m² 0 0
Bod 118 2.1 m² 0 1
Entre 119 3.8 m² 0 1

Fasader

Enebolig

Nord-øst
Materiale
Tre
Taktype
Saltak
Høyde
6.3 m
Vinduer
3
Dører
1
Synlige etasjer
2
Nord-vest
Materiale
Tre
Taktype
Saltak
Vinduer
2
Dører
0
Synlige etasjer
2
Syd-vest
Materiale
Tre
Taktype
Saltak
Vinduer
3
Dører
3
Balkonger
1
Synlige etasjer
2
Syd-øst
Materiale
Tre
Taktype
Saltak
Vinduer
4
Dører
0
Synlige etasjer
2

Hendelser

20.04.2026 Søknad om rammetillatelse gbn 5/442 og 5/446 - følgebrev
23.03.2026 Foreløpig svar på søknad - Oppføring av ny bolig - gbn 5/442 Hjellveien 16
19.03.2026 Søknad om rammetillatelse 5/446