NewConstruction UnderBehandling Enebolig

Ny enebolig med utleiedel i Hjellveien 20, Henningsvær

📍 Hjellveien 20 , 8312 HENNINGSVÆR

Nøkkelinfo

Sakstype
Nybygg
Bygningstype
Enebolig
Bruksareal
302 m²
Boenheter
1
Kommune
Vågan
Fylke
Nordland - Nordlánnda
Gnr / Bnr
5 / 448
Saksnummer
25/3315
Fase
Under behandling

Om byggesaken

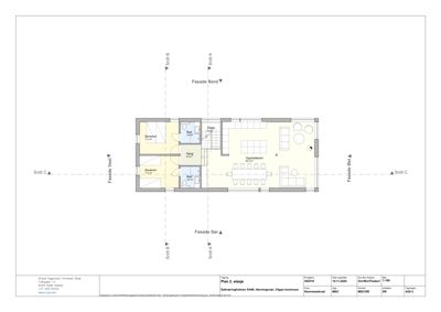
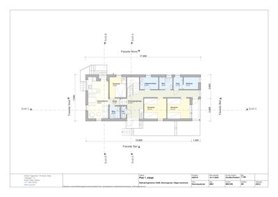
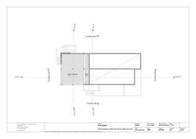
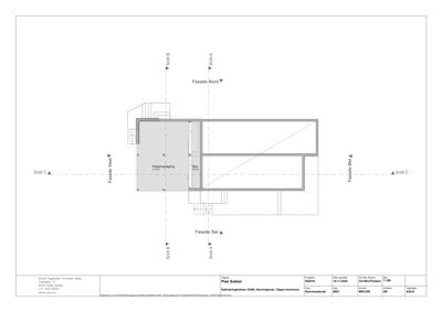
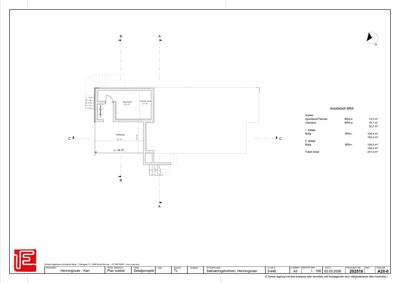
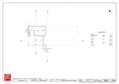
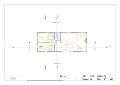
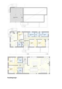
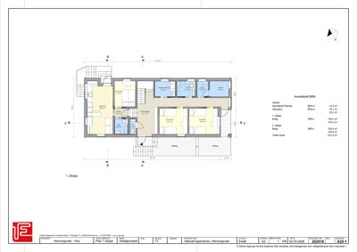
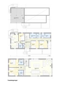
Ny enebolig på 301,6 m² BRA fordelt på to etasjer med en utleiedel i deler av 1. etasje, plassert på en tomt på 294 m² i Hjellveien 20, Henningsvær. Bygget har et langt og smalt bygningsvolum med saltak i øst-vest retning, tradisjonelt bindingsverk og stående trekledning. Under utleiedelen er det en åpen sokkel med parkering, sportsbod og lagringsplass som tar opp høydeforskjellen på tomten. Sokkel og garasje har til sammen ca. 70 m² areal. Boligen inneholder flere soverom, bad, oppholdsrom, badstue og vaskerom. Fasader er i tre med saltak, og bygget har flere vinduer og dører fordelt på alle fasader. Det er etablert adkomst og planlagt avkjøring i samarbeid med nabo. Bygget er tilpasset terrenget med begrensede terrenginngrep og fundamentering direkte på fjell. Det er søkt og innvilget rammetillatelse, og igangsettingstillatelse er under behandling med komplett ansvarsrettsdokumentasjon.

Produkter og materialer

VVS Sanitærinstallasjoner og vannbåren varme

Montering av rør for vannforsyning, avløp, sanitærinstallasjoner og vannbåren varme i gulv

VVS-installasjoner for bolig og utleiedel

Ventilasjon Ventilasjonsanlegg for boenheten

Ventilasjonsanlegg inkl. kanalføringer, begrenset til boenhetenes branncelle

Ventilasjonsanlegg for bolig og utleiedel

Grunnarbeid Fundamentering på fjell

Fundamentering direkte på fjell, sprenging tilstrebes å unngå

Grunnarbeid med fjerning av eksisterende masser og fundamentering direkte på fjell

Tømrer Bindingsverk og trekledning

🧱 Tradisjonelt bindingsverk, stående trekledning

Bygning i tradisjonelt bindingsverk med stående trekledning, varmebehandlet og lakkert treverk i rød farge

Tømrerarbeid for bolig, inkludert utleiedel og fasade

Elektro Elektriske installasjoner

Elektriske installasjoner i bolig og utleiedel

Elektroarbeid for bolig

Trapper Innvendige og utvendige trapper

Antall: 3

Tre trapper i bolig, sokkel og garasje, samt trapper i terreng ved inngangspartier

Trapper for adkomst og etasjeoverganger

Maling Utvendig maling/kledning

🧱 Varmebehandlet og lakkert treverk

Varmebehandlet og lakkert trekledning i rød farge, økologisk med naturvennlige oljer og pigmenter

Overflatebehandling av fasade

Bad Bad og våtrom

Antall: 5

Bad og dusjrom i bolig og utleiedel, totalt 5 bad/dusj

Bad og våtrom med sanitærutstyr og fliser

Vinduer Fasadevindu

🧱 Tre/aluminium

Antall: 41

Vinduer fordelt på alle fasader, totalt 41 vinduer

Fasadevindu i bolig og utleiedel

Tak Saltak

Antall: 1

Saltak i øst-vest retning, mønehøyde ca. 8.13 m, gesimshøyde ca. 7 m

Taktekking og konstruksjon for saltak

Terrasse Terrasse i 1. etasje

Antall: 1

Terrasse i 1. etasje med tilpasning til terreng

Utendørs terrasseareal

Dører Ytterdører og dører til sportsbod

Antall: 15

Ytterdører til bolig, utleiedel og sportsbod, totalt 15 dører

Dører for inngangspartier og sportsbod

Betong Sokkel og plate på mark

🧱 Betong

Sokkel med parkering, sportsbod og lagringsplass under bolig

Betongkonstruksjoner for sokkel og plate på mark

Garasjeport Garasjeport i sokkel

Antall: 1

Garasjeport i sokkel under bolig

Garasjeport for parkering i sokkel

Gulv Innvendige gulvflater

Innvendige gulv i bolig og utleiedel, spesifikasjoner ikke detaljert

Gulvbelegg og overflater

Fasader

Enebolig

Vest
Materiale
Tre
Taktype
Saltak
Høyde
7.0 m
Mønehøyde
8.1 m
Vinduer
4
Dører
0
Synlige etasjer
2
Nord
Materiale
Tre
Taktype
Saltak
Høyde
8.6 m
Vinduer
7
Dører
1
Synlige etasjer
2
Sør
Materiale
Tre
Taktype
Saltak
Høyde
7.0 m
Vinduer
4
Dører
2
Synlige etasjer
2
Øst
Materiale
Tre
Taktype
Saltak
Høyde
6.7 m
Vinduer
4
Dører
1
Synlige etasjer
2
Sør-vest
Materiale
Tre
Taktype
Saltak
Vinduer
5
Dører
1
Synlige etasjer
2
Sør-øst
Materiale
Tre
Taktype
Saltak
Vinduer
5
Dører
1
Synlige etasjer
2
Nord-øst
Materiale
Tre
Taktype
Saltak
Vinduer
6
Dører
0
Synlige etasjer
2
Nord-vest
Materiale
Tre
Taktype
Saltak
Vinduer
5
Dører
1
Synlige etasjer
2

Hendelser

16.04.2026 Angående farge på hus
16.04.2026 Endring av farge
15.04.2026 Dokumentbestilling - Vedlegg til helhetlig ROS-analyse
15.04.2026 Besvarelse: Dokumentbestilling - Vedlegg til helhetlig ROS-analyse
14.04.2026 Ettersendelse av dokumenter, søknad om IG Gbn 5/448
31.03.2026 Søknad om IG Gbn 5/448 - ettersendelse av dokumenter
30.03.2026 Ettersendelse av dokumenter, søknad om IG Gbn 5/448
25.03.2026 Søknad om igangsettingstillatelse 5/448
04.03.2026 Melding om vedtak - Gbn 5/448 - Bolig med utleiedel - Hjellveien, Henningsvær
02.03.2026 Svar på forvaltningsrevisjonens dokumentbestilling Nord-Odal, Beredskap
17.02.2026 Tilbakemelding- Forvaltningsrevisjon Nord-Odal, Beredskap - Revisjonskriterier
17.02.2026 Svar på forvaltningsrevisjon Nord-Odal, Beredskap - Revisjonskriterier
10.02.2026 Gbn 5/448 - Bolig med utleiedel - Hjellveien, Henningsvær
10.02.2026 FR 304- Nord-Odal - Dokumentbestilling
10.02.2026 Beredskap - Revisjonskriterier
26.01.2026 Revisjonskriterier til forvaltningsrevisjon av «Beredskap» i Nord-Odal kommune
22.12.2025 Søknad om rammetillatelse 5/448
28.11.2025 Referat fra oppstartsmøte
28.11.2025 Referat fra oppstartsmøte
28.11.2025 Tilbakemelding - Referat fra oppstartsmøte
13.11.2025 Tilbakemelding - Oppstart av forvaltningsrevisjon i Nord-Odal kommune
13.11.2025 Oppstart av forvaltningsrevisjon i Nord-Odal kommune