NewConstruction Rammetillatelse Enebolig

Ny enebolig med garasje i Hofstadåsen 19A, Asker

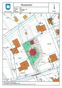
📍 Hofstadåsen 19A , 1384 ASKER

Nøkkelinfo

Sakstype
Nybygg
Bygningstype
Enebolig
Bruksareal
267 m²
Boenheter
2
Kommune
Asker
Fylke
Akershus
Gnr / Bnr
26 / 4
Saksnummer
26/272
Fase
Rammetillatelse

Om byggesaken

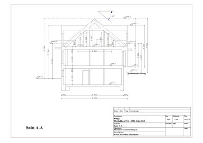
Ny enebolig med sekundær boenhet og dobbel garasje oppføres på Hofstadåsen 19A i Asker. Boligen har underetasje, første etasje og loftsetasje med totalt bruksareal på ca. 266,5 m². Bygget har saltak med takvinkel 40 grader, og fasader i stående trepanel tilpasset nærområdets estetikk. Underetasjen inneholder blant annet stue, soverom, bad, bod og tekniske rom, mens hovedetasjen har stor stue/kjøkken, soverom og bad. Loftetasje har flere soverom, bad og stue. Dobbelgarasjen er på ca. 31 m². Tomten er på 702 m² med ca. 385 m² uteoppholdsareal, hvorav 64 % blir grøntareal. Overvann håndteres lokalt med infiltrasjon og fordrøyning. Det er tatt hensyn til rødlistet art (piggsvin) på eiendommen. Bygget oppfyller krav til universell utforming og er i tråd med gjeldende reguleringsplan og kommuneplan.

Produkter og materialer

Trapper Innvendig trapp i L-form

🧱 Tre/stål

Antall: 1

Innvendig trapp mellom underetasje, første etasje og loft

VVS Vaskesøyle og tekniske rom

Vaskesøyle i underetasje, tekniske rom for vann og avløp

VVS-installasjoner for boligens tekniske behov

Overvann Lokal overvannshåndtering

🧱 Kult, subbus, grøfter

Overvann infiltreres, fordrøyes og ledes i åpne grøfter på tomten

Miljømessig forsvarlig overvannshåndtering med infiltrasjon og flomveier

Utendørs Opparbeidelse av uteareal og grøntareal

Ca. 385 m² uteoppholdsareal, 64 % grøntareal, drenerende masser på gårdsplass

Opparbeidelse av uteareal med grøntareal, gårdsplass og overvannshåndtering

Gulv Parkett og fliser

🧱 Eikeparkett og fliser

Innvendige gulv med eikeparkett og fliser på bad

Garasjeport Dobbel garasjeport

Antall: 1

Dobbel garasjeport til garasje på 31,3 m²

Fasade Stående trepanel

🧱 Tre

Stående trepanel med enkel detaljering

Fasadebekledning i stående trepanel tilpasset områdets karakter

Elektro Generell elektroinstallasjon

Elektroinstallasjoner i bolig og garasje

Vinduer Fasadevindu

🧱 Tre med 3-lags energiglass

Antall: 14

Fasadevindu i tre med energiglass til boligens alle etasjer

Tak Saltak med takstein

🧱 Takstein

Antall: 1

Takvinkel 40 grader, tverrfløy

Saltak med takstein tilpasset nærområdet

Grunnarbeid Drenering og sprengstein

🧱 Sprengstein, fiberduk, finpukk

Under etasje fundamenteres på sprengsteinspute med drenerende masser og fiberduk

Grunnarbeid med drenering og sprengstein for underetasje og fundamentering

Bad Bad med dusj og toalett

Antall: 3

Bad i alle etasjer, inkludert dusj og toalett

Bad med sanitærutstyr i underetasje, første etasje og loft

Dører Ytterdører og innerdører

🧱 Tre

Antall: 15

Ytterdører og innerdører til bolig og garasje

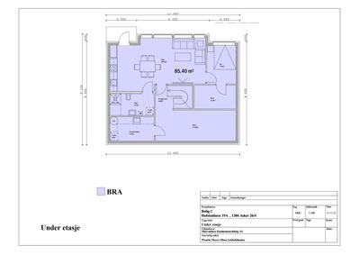
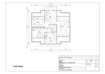
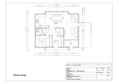
Plantegning

Bolig 2 266.9 m²

Etasje 1 87.3 m²

Rom Areal Vinduer Dører
Stue/kjøkken 101 47.8 m² 3 1
Sov 102 10.7 m² 1 1
Bad 103 3.9 m² 0 1
Trapperom/Hall 104 16.2 m² 0 2
Sportbod 105 4.7 m² 0 1

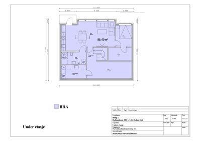
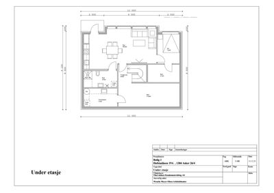
Etasje 0 85.4 m²

Rom Areal Vinduer Dører
Stue 001 30.6 m² 3 1
Sov 002 7.6 m² 1 1
Bad 003 6.5 m² 0 1
Trapperom 004 6.0 m² 0 2
Bod 005 6.7 m² 0 1
Bod 006 17.0 m² 0 1
Vask/teknisk 007 7.3 m² 0 1
Kjøkken 008 0.0 m² 0 0

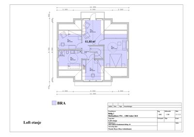
Etasje 2 94.2 m²

Rom Areal Vinduer Dører
Stue 201 12.6 m² 2 1
Sov 202 10.0 m² 1 1
Sov 203 19.6 m² 1 1
Sov 204 10.2 m² 1 1
Bad 205 10.3 m² 0 1
Trapperom 206 6.7 m² 0 2

Garasje 31.3 m²

Etasje 1 31.3 m²

Rom Areal Vinduer Dører
Garasje 101 31.3 m² 0 1

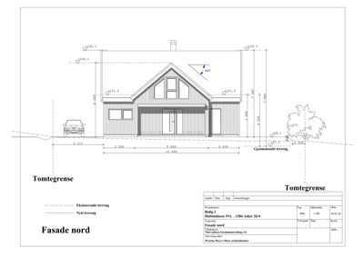
Fasader

Bolit

Vest
Materiale
Tre
Taktype
Saltak
Høyde
7.8 m
Mønehøyde
10.5 m
Vinduer
4
Dører
2
Synlige etasjer
2

Bolit 2

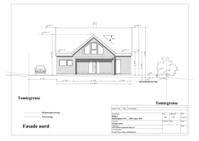
Nord
Materiale
Tre
Taktype
Saltak
Høyde
6.1 m
Mønehøyde
7.8 m
Vinduer
5
Dører
2
Synlige etasjer
2
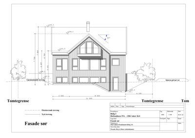
Sør
Materiale
Tre
Taktype
Saltak
Høyde
5.2 m
Mønehøyde
7.8 m
Vinduer
10
Dører
1
Balkonger
1
Synlige etasjer
2

Bolig

Øst
Materiale
Tre
Taktype
Saltak
Høyde
5.2 m
Mønehøyde
8.8 m
Vinduer
4
Dører
1
Synlige etasjer
2

Hendelser

07.04.2026 26/4 Hofstadåsen 19A - Klage på rammetillatelse rammetillatelse
26.03.2026 26/4 Hofstadåsen 19A - Korrespondanse ved delesak - Søknad om utsettelse av vilkår søknad
26.03.2026 26/4 Hofstadåsen 19A - Korrespondanse vedrørende vilkår i delingstillatelse
19.03.2026 26/4 Hofstadåsen 19A - Kontakt ønskes angående rekkefølgen
13.03.2026 26/4 Hofstadåsen 19A - Rammetillatelse for nybygg enebolig med sekundær boenhet og garasje rammetillatelse
12.02.2026 26/4 Hofstadåsen 19A - Omprosjektering for å klare høydekravet
10.02.2026 26/4 Hofstadåsen 19A - Mottakskontroll
27.01.2026 26/4 Hofstadåsen 19A - Søknad om rammetillatelse - Nybygg bolig og garasje rammetillatelse