NewConstruction Soeknad Enebolig

Ny enebolig med riving på Holtveien 113, Øverbygd

📍 Holtveien 113 , 9334 ØVERBYGD

Nøkkelinfo

Sakstype
Nybygg
Bygningstype
Enebolig
Bruksareal
206 m²
Boenheter
1
Kommune
Målselv
Fylke
Troms - Romsa - Tromssa
Gnr / Bnr
82 / 92
Saksnummer
2026/847
Fase
Søknad

Om byggesaken

Ny to-etasjes enebolig på totalt 206 m² BRA oppføres på Holtveien 113 i Øverbygd, med tradisjonell trekledning og saltak. Boligen har en grunnflate på ca. 121 m² i første etasje og 92 m² i andre etasje, med overbygget areal på ca. 13 m². Planløsningen inkluderer blant annet stue/kjøkken, kontor, vaskerom, sportsbod og bad i første etasje, samt stue, fire soverom, walk-in garderobe og bad i andre etasje. Fasaden er i tre med saltak, og bygget har pipe, garasjeport og balkonger på sør- og østfasade. Bygget plasseres omtrent på samme sted som den eksisterende boligen som rives, og fundamenteres med støpt plate på mark tilpasset flomforhold. Det er én innvendig trapp mellom etasjene.

Produkter og materialer

Riving Riving av eksisterende bolig

Antall: 1

Riving av gammel bolig på ca. 123 m² BYA før nybygging

Nedriving av eksisterende bolig

Ventilasjon Ventilasjon og klimainstallasjoner

Ventilasjon og klimainstallasjoner prosjektert og utført av Nysted AS

Ventilasjonsanlegg for bolig

Pipe Pipe for vedovn eller peis

🧱 Mur eller stål

Antall: 1

Pipe til bolig, synlig på alle fasader

Pipe for ildsted

Vinduer Fasadevindu i tre

🧱 Tre med glass

Antall: 16

4 vinduer på hver fasade (nord, sør, øst, vest), 3 vinduer i stue/kjøkken, 1 vindu i kontor, 4 soverom med vinduer

Vinduer til bolig i tre med glass

Tak Saltak

🧱 Takstein eller lignende

Saltak med gesimshøyde 6,85 m og mønehøyde 8,5 m

Taktekking for bolig

Elektro Elektriske installasjoner

Elektroinstallasjoner prosjektert og utført av ansvarlig foretak

Elektriske anlegg i bolig

Bad Bad og våtrom

Antall: 2

To bad, ett i hver etasje, med membraner og fall kontrollert av Sigbjørn Fagertun Taksering

Bad med membran og fall for våtrom

Gulv Innvendige gulv

Gulv i bolig, antatt parkett eller fliser i våtrom

Innvendige gulvflater

Tømrer Trekonstruksjoner og montering

🧱 Tre

Tømrerarbeid for to-etasjes bolig med saltak og trekledning

Bygging av bærende trekonstruksjoner og kledning

Terrasse Overbygget areal

🧱 Tre eller tilsvarende

Overbygget areal på ca. 13 m² i første etasje

Overbygget uteareal/terrasse

Trapper Innvendig trapp i L-form

🧱 Tre

Antall: 1

En innvendig trapp mellom første og andre etasje

Trapp for intern kommunikasjon i bolig

VVS Sanitærinstallasjoner og vannforsyning

Sanitærinstallasjoner, vannforsyning og avløpsanlegg utført av Varme & Bad AS

VVS-installasjoner for bolig

Garasjeport Garasjeport tilknyttet bolig

Antall: 1

Garasjeport på nord- og vestfasade

Garasjeport til bolig

Grunnarbeid Fundamentering med støpt plate på mark

🧱 Betong

Antall: 1

Fundamentering uten kjeller, plate på mark tilpasset flomforhold i aktsomhetsområde

Grunnarbeid og fundamentering for ny bolig

Fasade Trekledning

🧱 Tre

Trekledning på alle fasader

Ytterkledning av tre

Dører Ytterdører og innerdører

🧱 Tre eller tilsvarende

Antall: 17

Ytterdører på alle fasader, innerdører til rom som bad, soverom, bod, gang, vaskerom, walk-in, sportsbod

Dører til bolig

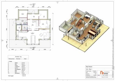
Plantegning

Enebolig 206.1 m²

Etasje 1 114.4 m²

Rom Areal Vinduer Dører
Gang 1 7.5 m² 0 2
Bod 2 9.5 m² 0 1
Gang 3 15.6 m² 0 2
Vaskerom 4 8.5 m² 0 1
kontor 5 12.5 m² 1 1
Stue/kjøkken 6 46.5 m² 3 1
Bad 7 3.6 m² 0 1
Kjøll 8 3.0 m² 0 1
Sportsbod 17 7.8 m² 0 1
Bruktareal BRA 121.3 m² 0 0
Bruktareal overbygget BRA OB 13.2 m² 0 0

Etasje 2 91.7 m²

Rom Areal Vinduer Dører
Bruktareal BRA 91.7 m² 0 0
Stue 9 35.8 m² 0 1
Gang 10 2.8 m² 0 2
Bad 11 8.4 m² 0 1
Sov 12 10.5 m² 1 1
Walk-in 13 3.8 m² 0 1
Sov 14 8.6 m² 1 1
Sov 15 8.9 m² 1 1
Sov 16 8.6 m² 1 1

Fasader

Enebolig

Nord
Materiale
Tre
Taktype
Saltak
Høyde
6.8 m
Mønehøyde
8.5 m
Vinduer
4
Dører
1
Synlige etasjer
2
Sør
Materiale
Tre
Taktype
Saltak
Høyde
6.8 m
Mønehøyde
8.5 m
Vinduer
4
Dører
1
Balkonger
1
Synlige etasjer
2
Øst
Materiale
Tre
Taktype
Saltak
Høyde
6.8 m
Mønehøyde
8.5 m
Vinduer
4
Dører
1
Balkonger
1
Synlige etasjer
2
Vest
Materiale
Tre
Taktype
Saltak
Høyde
6.8 m
Mønehøyde
8.5 m
Vinduer
4
Dører
1
Synlige etasjer
2

Hendelser

20.04.2026 82/92 - Søknad om tillatelse i ett trinn