NewConstruction UnderBehandling Enebolig

Ny enebolig med garasje i Hønsveien 144, Asker

📍 Hønsveien 144 , 1384 ASKER

Nøkkelinfo

Sakstype
Nybygg
Bygningstype
Enebolig
Bruksareal
278 m²
Boenheter
1
Kommune
Asker
Fylke
Akershus
Gnr / Bnr
2 / 476
Saksnummer
24/4161
Fase
Under behandling

Om byggesaken

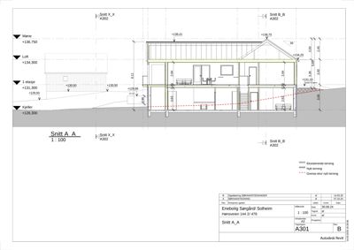
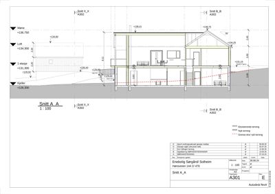
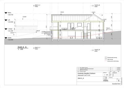
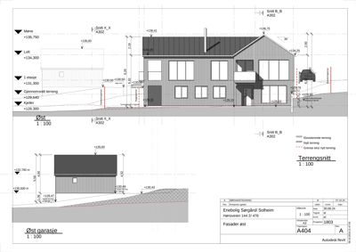
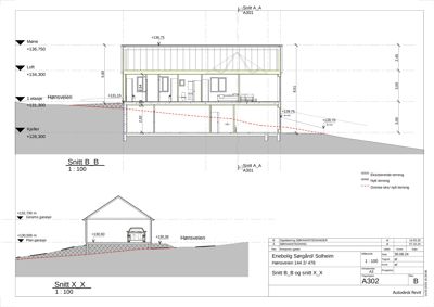
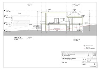
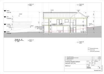
Ny enebolig med underetasje og hovedetasje på til sammen ca. 278 m² BRA bygges på tomt i Hønsveien 144, Asker. Boligen har en underetasje på ca. 139 m² som inkluderer en hybel på ca. 35 m², og en hovedetasje på ca. 139 m² som utgjør primær boenhet. Bygget har saltak og tre som fasademateriale, med gesims- og mønehøyder på henholdsvis ca. 6,1-6,4 m og 8,4-8,6 m. Det er planlagt en frittstående garasje på ca. 41 m² med flatt tak og tilhørende bod på 4,6 m². Tomten er tilpasset terrenget med begrensede terrenginngrep og godkjent overvannshåndtering. Det er to trapper i boligen, en balkong på 11 m², og flere vinduer fordelt på begge etasjer. Garasjen er plassert med avtale om plassering over spillvannsledning. Prosjektet har gjennomgått nabovarsling og mottatt merknader som er håndtert i søknadsprosessen.

Arbeidsomfang

- Oppføring av ny enebolig med garasje på tomt i Askergårdene (Reguleringsplan for Asker terrasse). - Utforming av grunnarbeider og fundamentering for ny bolig og garasje. - Oppføring av ny enebolig med tilhørende garasje (plassering nærmere eksisterende vannledning krever dispensasjon eller naboens samtykke). - Tilslutning til eksisterende vann- og avløpsanlegg (inkludert spillvannsledning). - Innføring av nødvendige installasjoner (vann, avløp, elektrisitet, ventilasjon) i henhold til søknad.

Produkter og materialer

Betong Plasstøpte betongkonstruksjoner

🧱 Betong

Plasstøpte betongkonstruksjoner for fundament og bærende konstruksjoner

Betongarbeid for fundament og bærende konstruksjoner

Grunnarbeid Sprengning og grunnarbeid

Sprengning for underetasje og boring for vann- og avløpstilkopling

Grunnarbeid med sprengning og boring for tilknytning til vann og avløp

VVS Sanitærinstallasjoner

Godkjent sanitærmelding, tilknytning til kommunalt vann- og avløpsnett

Sanitærinstallasjoner med tilknytning til kommunalt vann- og avløpsnett

Elektro Utebelysning

Utebelysning tilpasset naboer, rettet nedover mot bakken

Utebelysning med hensyn til naboer

Trapper Innvendige trapper

Antall: 2

To innvendige trapper mellom etasjer

Mur Støttemurer

Antall: 2

Støttemurer på tomt i henhold til utomhusplan

Støttemurer for terrengtilpasning

Vinduer Takvindu

Antall: 2

Takvinduer i saltak

Vinduer Fasadevindu

🧱 Tre

Antall: 14

Fasadevindu i tre, fordelt på begge etasjer

Maling Innvendig og utvendig maling

Maling av innvendige og utvendige flater

Isolasjon Bygningsisolasjon

Isolasjon i vegger, tak og gulv iht. TEK17

Dører Ytterdører

🧱 Tre

Antall: 7

Ytterdører i tre til bolig og bod

Tak Saltak

Saltak på bolig, flatt tak på garasje

Saltak på bolig, flatt tak på garasje

Balkong Balkong

Antall: 1

11 m²

Balkong på 11 m² tilknyttet hovedetasje

Fasade Trepanel

🧱 Tre

Tre som fasademateriale på bolig og garasje

Trepanel som fasademateriale

Garasje Frittstående garasje

🧱 Tre

Antall: 1

41 m², flatt tak, med bod 4,6 m²

Frittstående garasje med tilhørende bod

Tømrer Trekonstruksjoner

🧱 Tre

Tømrerarbeid og montering av trekonstruksjoner for bolig og garasje

Tømrerarbeid for bolig og garasje

VVS Avløpsledning under garasje

Avløpsledning (spillvann) med varerør under garasje for vedlikehold

Avløpsledning med varerør under garasje for vedlikehold og utskifting

Terrasse Uteoppholdsareal

Uteoppholdsareal på tomt, ca. 46% grøntareal

Uteoppholdsareal med plen, bed og vegetasjon

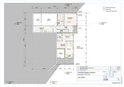
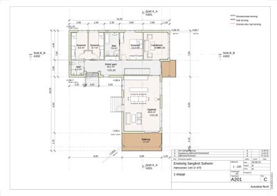
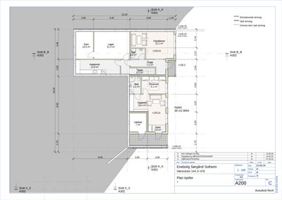
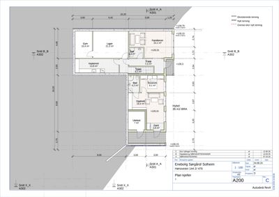
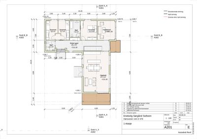
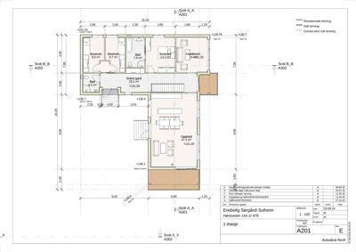
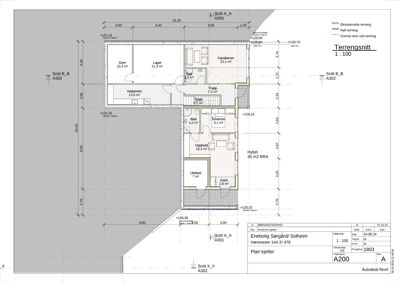
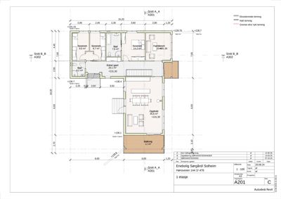
Plantegning

Plan garasje 40.6 m²

Etasje 1 40.6 m²

Rom Areal Vinduer Dører
Garasje Garasje 36.0 m² 0 0
Bod Bod 4.6 m² 0 1

Enebolig 241.0 m²

Etasje 0 120.5 m²

Rom Areal Vinduer Dører
Gym 001 10.4 m² 0 1
Lager 002 21.3 m² 0 1
Vaskerom 003 13.8 m² 0 1
Bad 004 8.3 m² 0 1
Familierom 005 22.1 m² 1 1
Trapp 006 7.3 m² 0 2
Trapp 007 6.7 m² 0 2
Bad 008 4.2 m² 0 1
Soverom 009 9.1 m² 1 1
Opphold 010 18.4 m² 1 1
Utebod 011 7.0 m² 0 1
Gard 012 2.8 m² 0 1

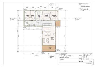
Etasje 1 120.5 m²

Rom Areal Vinduer Dører
Soverom 101 9.5 m² 1 1
Soverom 102 8.7 m² 1 1
Bad 103 7.6 m² 0 1
Soverom 104 14.3 m² 1 1
Familierom 105 15.1 m² 1 1
Bad 106 4.2 m² 0 1
Entre/gard 107 25.1 m² 0 3
Opphold 108 45.6 m² 1 2
Balkong 109 11.0 m² 0 1

Garasje 41.1 m²

Etasje 1 41.1 m²

Rom Areal Vinduer Dører
Garasje 101 41.1 m² 0 1

Fasader

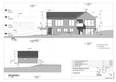
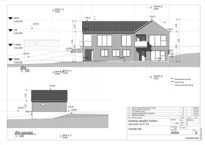
Enebolig

Sør
Materiale
Tre
Taktype
Saltak
Høyde
6.4 m
Mønehøyde
8.6 m
Vinduer
2
Dører
1
Balkonger
1
Synlige etasjer
2
Vest
Materiale
Tre
Taktype
Saltak
Høyde
6.0 m
Mønehøyde
8.4 m
Vinduer
2
Dører
2
Synlige etasjer
2
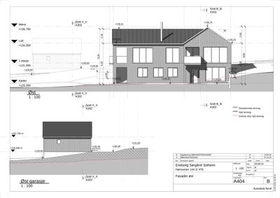
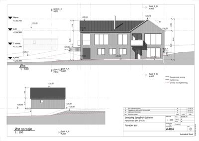
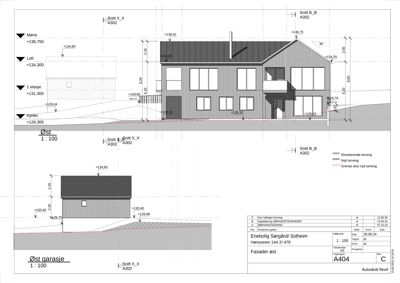
Øst
Materiale
Tre
Taktype
Saltak
Høyde
6.1 m
Mønehøyde
8.4 m
Vinduer
7
Dører
1
Balkonger
1
Synlige etasjer
2

Øst garasje

Øst
Materiale
Tre
Taktype
Flatt tak
Høyde
4.4 m
Mønehøyde
4.4 m
Vinduer
1
Dører
0
Synlige etasjer
1

Hendelser

08.04.2026 2/476 Hønsveien 144 - Søknad om midlertidig brukstillatelse rammetillatelse
27.08.2025 2/476 Hønsveien 144 - Endringstillatelse
08.08.2025 2/476 Hønsveien 144 - Søknad om endring av gitt tillatelse søknad
04.08.2025 2/476 Hønsveien 144 - Nybygg enebolig ettersender avtale vedrørende garasje over spillvannsledning for godkjenning av garasje vedtak
11.07.2025 2/476 Hønsveien 144 - Ufullstendig søknad- Nybygg enebolig søknad
11.07.2025 2/476 Hønsveien 144 - Tillatelse til tiltak i ett trinn for- Nybygg enebolig byggetillatelse
04.07.2025 2/476 Hønsveien 144 - Ettersender tegninger uten garasje - Nybygg enebolig
30.06.2025 2/476 Hønsveien 144 - Etterspurt dokumentasjon vann- og avløp
26.06.2025 2/476 Hønsveien 144 - Nybygg enebolig - Etterspurt dokumentasjon vann- og avløp
20.06.2025 2/476 Hønsveien 144 - Ufullstendig søknad- Nybygg enebolig søknad
19.06.2025 2/476 Hønsveien 144 - Etterspør status i saken
20.05.2025 2/476 Hønsveien 144 - Etterspurt dokumentasjon
05.05.2025 2/476 Hønsveien 144 - Vi trenger ytterligere dokumentasjon - Nybygg enebolig
16.04.2025 2/476 Hønsveien 144 - E-postkorrespondanse
15.04.2025 2/476 Hønsveien 144 - Purring på saksbehandling
20.03.2025 2/476 Hønsveien 144 - Etterspurt dokumentasjon
05.03.2025 2/476 Hønsveien 144 - Ufullstendig søknad - Nybygg enebolig søknad
27.02.2025 2/476 Hønsveien 144 - svar på henvendelse - Oppdatering på byggesøknad [saksnr: 24/4161 / Hønsveien 144]
24.02.2025 2/476 Hønsveien 144 - Oppdatering på byggesøknad
23.12.2024 2/476 Hønsveien 144 - Spørsmål om saksbehandlingstid og tildeling av saksbehandler
22.11.2024 2/476 Hønsveien 144 - Søknad om nybygg enebolig søknad