NewConstruction UnderBehandling Enebolig

Ny enebolig med garasje og avløpsanlegg på Hovdenakken 47, Ørsta

📍 Hovdenakken 47 , 6156 ØRSTA

Nøkkelinfo

Sakstype
Nybygg
Bygningstype
Enebolig
Bruksareal
352 m²
Boenheter
1
Kommune
Ørsta
Fylke
Møre og Romsdal
Gnr / Bnr
36 / 6
Saksnummer
2023/562
Fase
Under behandling

Om byggesaken

Ny enebolig på totalt ca. 351,8 m² BRA fordelt på tre etasjer med saltak tekket med teglstein. Boligen har 4 soverom, 2 bad, stort kjøkken og stue, vaskerom, gang/trapp og integrert garasje på ca. 49,5 m². Bygget er i trekonstruksjon med 200+50 mm isolasjon og 3-lags vinduer med U-verdi 0,85 W/m²K. Det er pipe og flere balkonger. Avløpsanlegg består av 7 m³ slamavskiller med lukket infiltrasjonsanlegg på 80 m² i stedegne masser, dimensjonert for 2 boliger (10 p.e.). Det er gitt dispensasjon for plassering i LNF-område, og det foreligger godkjent utslippstillatelse. Prosjektet har gjennomført ansvarsrett og uavhengig kontroll, og igangsettingsløyve er gitt. Ny ansvarlig søker og endringer i ansvarsrett er registrert, og tiltakshaver har søkt om selvbyggertillegg for ventilasjon og våtrom.

Produkter og materialer

Tømrer Tømrerarbeid for bolig

Byggeteknikk, tømrerarbeid, montering av ventilasjonsanlegg

Tømrerarbeid for bolig og ventilasjon

Bad Bad og våtrom

🧱 Membran, fliser, sanitærutstyr

Antall: 2

Våtrom med membran og fliser, kontroll av fuktsikring

Bad og våtrom i bolig

VVS Innvendig sanitæranlegg og vann/avløpsledninger

Innvendig sanitæranlegg inkl. bunnledninger, utvendig vann og avløp til godkjent anlegg

VVS-installasjoner for bolig

Vinduer 3-lags energiglass vinduer

🧱 Tre med U-verdi 0,85 W/m²K

Antall: 18

U-verdi 0,85 W/m²K, sidehengslet og fast, ulike størrelser

Energivennlige vinduer i tre til enebolig

Maling Innvendig og utvendig maling

Maling av treflater innvendig og utvendig

Maling for bolig

Pipe Murpipe

🧱 Mur

Antall: 1

Pipe til bolig

Murpipe for bolig

Isolasjon Isolasjon i vegger

🧱 Glava Proff kl.34

200+50 mm Glava Proff kl.34 isolasjon i vegger

Isolasjon for veggkonstruksjon

Grunnarbeid Grunnarbeid og terrengarbeid

Graving, oppbygging av bærelag, komprimering, terrengtilpasning

Grunnarbeid for bolig og avløpsanlegg

Mur Støttemurer og grunnmur

🧱 Betong/mur

Mur og betongarbeider etter preaksepterte løsninger med kjente grunnforhold

Murarbeid for grunnmur og støttemurer

Garasjeport Isolert garasjeport i tre

🧱 Tre

Antall: 1

Integrert garasje med isolert port

Garasjeport til integrert garasje

Avløpsanlegg Slamavskiller og infiltrasjonsanlegg

🧱 Slamavskiller 7 m³, infiltrasjonsrør og sandfilter

Slamavskiller med lukket infiltrasjonsanlegg på 80 m², dimensjonert for 10 p.e.

Privat avløpsanlegg for boligene

Betong Betongarbeid for såle, plate på mark og dekker

🧱 Betong

Støping av såle, plate på mark, betongdekker mellom etasjer

Betongarbeid for fundament og dekker

Tak Saltak med teglstein

🧱 Teglstein

Antall: 1

Saltak med teglstein som takmateriale

Tradisjonelt saltak tekket med teglstein

Gulv Parkett og fliser

🧱 Eikeparkett og fliser

Eikeparkett i oppholdsrom, fliser på bad

Innvendige gulvflater

Dører Ytterdører og balkongdører

🧱 Tre

Antall: 12

U-verdi 1,1 W/m²K, inkludert garasjeport i tre

Isolerte ytterdører og balkongdører til bolig og garasje

Grunnarbeid Infiltrasjonsgrøfter og pumpekum

Graving av infiltrasjonsgrøfter, pumpekum med varsling for høyt vannivå

Grunnarbeid for avløpsanlegg

Fasade Trekledning

🧱 Tre

Antall: 1

Trekledning på alle fasader

Trekledning på boligfasader

Ventilasjon Boligventilasjon Flexit

Standard boligventilasjonsanlegg levert av Flexit, montert av tiltakshaver med innregulering av innleid firma

Ventilasjonsanlegg for bolig

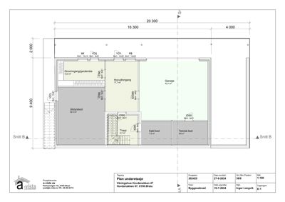
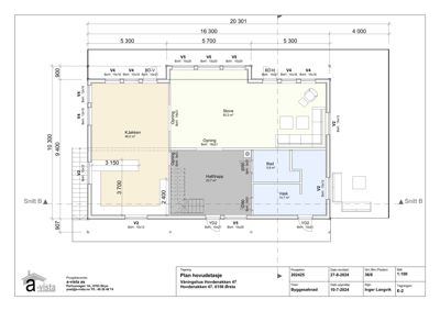
Plantegning

Våningshus 351.8 m²

Etasje 1 206.5 m²

Rom Areal Vinduer Dører
Kjøkken Kjøkken 46.0 m² 3 1
Stue Stove 50.3 m² 3 2
Gang/Trappe Hall/trapp 23.7 m² 0 1
Bad Bad 5.8 m² 0 1
Vaskerom Vask 14.7 m² 0 2

Etasje -1 0.0 m²

Rom Areal Vinduer Dører

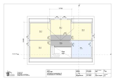
Etasje 2 145.3 m²

Rom Areal Vinduer Dører
Sov 1 Sov 1 20.2 m² 2 2
Sov 2 Sov 2 22.6 m² 1 1
Sov 3 Sov 3 22.6 m² 1 1
Sov 4 Sov 4 22.6 m² 1 1
Gang Gang 15.4 m² 0 4
Bad Bad 21.9 m² 1 1

Fasader

Enebolig

Nord-Øst
Materiale
Tre
Taktype
Saltak
Takmat.
Tegl
Høyde
6.5 m
Mønehøyde
8.2 m
Vinduer
4
Dører
2
Synlige etasjer
2
Nord-Vest
Materiale
Tre
Taktype
Saltak
Takmat.
Tegl
Høyde
6.5 m
Mønehøyde
8.2 m
Vinduer
3
Dører
1
Balkonger
1
Synlige etasjer
2
Sør-Øst
Materiale
Tre
Taktype
Saltak
Takmat.
Tegl
Høyde
6.5 m
Mønehøyde
8.2 m
Vinduer
4
Dører
1
Balkonger
1
Synlige etasjer
2
Sør-Vest
Materiale
Tre
Taktype
Saltak
Takmat.
Tegl
Høyde
6.5 m
Mønehøyde
8.2 m
Vinduer
6
Dører
2
Balkonger
1
Synlige etasjer
2

Våningshus

Sør
Materiale
Tre
Taktype
Saltak
Takmat.
Tegl
Vinduer
10
Dører
2
Balkonger
1
Synlige etasjer
3
Nord
Materiale
Tre
Taktype
Flatt tak
Vinduer
2
Dører
3
Synlige etasjer
1
Øst
Materiale
Tre
Taktype
Saltak
Vinduer
5
Dører
1
Balkonger
1
Synlige etasjer
2
Vest
Materiale
Tre
Taktype
Saltak
Vinduer
4
Dører
1
Balkonger
1
Synlige etasjer
2

Hendelser

16.04.2026 Endringsvedtak - Ansvarsrett som sjølvbyggar- Hovdenakken 47 - gnr 36 bnr 6
14.04.2026 Supplering av søknad 36/6 - Hovdenakken 47
09.09.2024 Supplering av søknad
15.05.2024 Opphør av ansvar - informasjon - Hovdenakken 47
13.05.2024 Vedkomande løyve til oppføring av bustad på gnr 36/6 - Sak nr 22/910 22/29108
04.07.2023 Hus Åmdalen
14.02.2023 Løyve til tiltak - Bustadhus og utsleppsløyve - Hovdenakken 47 - gnr 36 bnr 6
26.01.2023 Søknad om eitt-stegs handsaming