NewConstruction Rammetillatelse Enebolig

Ny enebolig i Husvikveien 21, Seter

📍 Husvikveien 21 , 7748 SETER

Nøkkelinfo

Sakstype
Nybygg
Bygningstype
Enebolig
Bruksareal
120 m²
Boenheter
1
Kommune
Osen
Fylke
Trøndelag - Trööndelage
Gnr / Bnr
1 / 141
Saksnummer
2024/456
Fase
Rammetillatelse

Om byggesaken

Ny enebolig i to etasjer med totalt bruksareal på 120,4 m² og bebygd areal på 77,4 m² oppføres i Husvikveien 21, Seter. Boligen har saltak med takvinkel på 30°, og fasader i treverk. Første etasje inneholder stue, kjøkken, entre og bad, mens andre etasje har loftstue, tre soverom og WC. Bygget har en trapp, pipe og garasjeport på østfasaden. Boligen er plassert for optimal utnyttelse av tomten med hensyn til solforhold og nabosituasjon, og oppfyller kommuneplanens krav til høyde og plassering.

Produkter og materialer

Grunnarbeid Tomtearbeid og fundamentering

Grunnarbeid og utvendig VA utført av Ole B. Mork AS

Grunnarbeid, fundamentering og utvendig vann- og avløpsarbeid

VVS Sanitærinstallasjoner

Sanitærinstallasjoner utført av Namsos Rør AS

Vann, avløp og sanitærinstallasjoner

Elektro Elektriske installasjoner

Elektroarbeid planlagt iht. ansvarlig søker og prosjekterende

Elektriske installasjoner for bolig

Trapper Innvendig trapp i L-form

🧱 Tre

Antall: 1

Trapp mellom 1. og 2. etasje

Innvendig trapp i tre for etasjeadkomst

Betong Fundament og støttemurer

🧱 Betong

Betongarbeid utført av Birger Pedersen AS

Betongfundament og konstruksjoner

Fasade Trepanel

🧱 Tre

Trepanel på alle fasader

Trepanel som ytterkledning på boligfasader

Tak Saltak

🧱 Takstein eller metall

Antall: 1

Saltak med takvinkel 30°

Saltak med taktekking i henhold til kommuneplanens krav

Bad Baderomsinnredning og fliser

Bad med våtromsstandard

Baderomsinnredning, fliser og sanitærutstyr

Ventilasjon Mekanisk ventilasjon

Ventilasjon iht. TEK10 krav

Ventilasjonssystem for bolig

Gulv Innvendige gulvflater

🧱 Eikeparkett eller tilsvarende

Innvendige gulvflater i stue, kjøkken og soverom

Parkettgulv i oppholdsrom

Pipe Murpipe

🧱 Mur

Antall: 1

Pipe på alle fasader

Murpipe for ildsted/ovn

Vinduer Fasadevindu

🧱 Tre med 3-lags energiglass

Antall: 16

Vinduer fordelt på 2 etasjer, inkludert 3 i stue 1.etg, 3 i stue 2.etg, og soveromsvinduer

Fasadevindu i treverk med energiglass for naturlig lys og isolasjon

Tømrer Byggkonstruksjon

🧱 Tre

Tømrerarbeid utført av Birger Pedersen AS

Tømrerarbeid for boligens bærende konstruksjoner og innvendige arbeider

Dører Ytterdører og balkongdører

🧱 Tre eller kompositt

Antall: 6

Dører i entre, stue, kjøkken og utvendige dører på fasader

Ytterdører og innvendige dører i tre eller komposittmateriale

Garasjeport Port på østfasade

🧱 Ikke spesifisert

Antall: 1

Garasjeport på østfasade

Garasjeport integrert i boligens østfasade

Maling Utvendig og innvendig maling

Maling av trepanel og innvendige flater

Maling og overflatebehandling

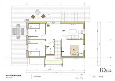
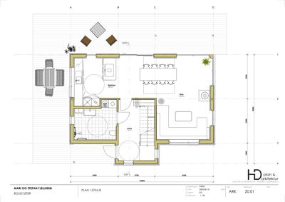
Plantegning

Enebolig 116.2 m²

Etasje 1 64.7 m²

Rom Areal Vinduer Dører
Stue BRA 64.7 m² 3 1
Stue 101 23.5 m² 1 1
Kjøkken 102 16.9 m² 1 1
Entre 103 12.0 m² 0 2
Bad 104 9.0 m² 0 1

Etasje 2 51.5 m²

Rom Areal Vinduer Dører
Stue BRA 51.5 m² 3 1
Sov. 201 7.9 m² 1 1
Sov. 202 7.9 m² 1 1
Sov. 203 9.9 m² 1 1
Lofstue 204 21.5 m² 2 1
WC 205 2.0 m² 0 1

Fasader

Enebolig

Vest
Materiale
Tre
Taktype
Saltak
Vinduer
5
Dører
1
Synlige etasjer
2
Nord
Materiale
Tre
Taktype
Saltak
Vinduer
4
Dører
1
Synlige etasjer
2
Øst
Materiale
Tre
Taktype
Saltak
Vinduer
3
Dører
0
Synlige etasjer
2
Sør
Materiale
Tre
Taktype
Saltak
Vinduer
4
Dører
1
Synlige etasjer
2

Hendelser

20.04.2026 Søknad om ferdigattest 1/141
08.04.2026 Supplering av søknad 1/141
02.10.2024 Areal bolig
26.09.2024 Gnr 1 bnr 141 - Husvikveien 20, Seter - Søknad om tillatelse til tiltak for oppføring av ny enebolig. Tiltakshaver - Stefan Fjellheim, Namsos.
28.08.2024 Bolig Seter - Stefan Fjellheim
27.08.2024 Tillatelse til tiltak - gnr 1 bnr 141 - Husvikveien, Seter - Ny enebolig
12.07.2024 Søknad om tillatelse i ett trinn 1/141
03.07.2024 Merknader til nabovarsel