NewConstruction Igangsettingstillatelse Enebolig

Ny enebolig med garasje i Indrehovdevegen 106, Ørsta

📍 Indrehovdevegen 106A , 6160 HOVDEBYGDA

Nøkkelinfo

Sakstype
Nybygg
Bygningstype
Enebolig
Bruksareal
241 m²
Boenheter
1
Kommune
Ørsta
Fylke
Møre og Romsdal
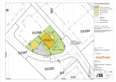
Gnr / Bnr
53 / 284
Saksnummer
2022/1241
Fase
Igangsettingstillatelse

Om byggesaken

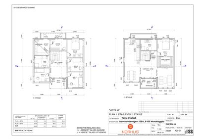
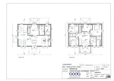
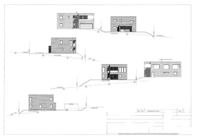
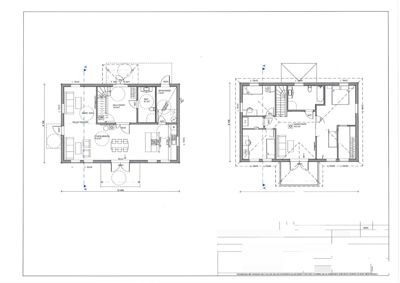
Ny enebolig på 241 m² BRA fordelt på to etasjer med saltak i tre, beliggende i Indrehovdevegen 106, Ørsta. Boligen har 6 soverom, flere bad, kjøkken/stue med store vinduer, terrasse og balkong. Det er oppført en frittstående garasje på 36 m² med valmtak, plassert 2,5 meter fra regulert veg. Tomten er på 582,2 m² med forstøtningsmurer tilpasset terrenget. Bygningen har gesimshøyde på 6 meter og mønehøyde på 8,1 meter. Prosjektet inkluderer grunnarbeid, betongarbeid, tømrerarbeid, VVS, elektro og ventilasjon, samt utomhusanlegg med veg og parkeringsplass. Det er gitt dispensasjon for overskridelse av utnyttelsesgrad og byggegrenser mot turveg. Byggestart er gitt igangsettingstillatelse, og prosjektet er under utførelse.

Produkter og materialer

Garasjeport Garasjeport i tre

🧱 Tre

Antall: 1

Garasjeport til frittstående garasje på 36 m²

Garasjeport i tre

VVS Innvendig sanitæranlegg

Innvendig sanitæranlegg inkl. bunnledninger

VVS-installasjoner for bolig

Vinduer Fasadevindu

🧱 Tre med sikkerhetsglass (laminert og herdet)

Antall: 26

Sikkerhetsglass SG-IU, laminert innside, herdet utside, ulike størrelser som 149x215, 216x616 mm

Fasadevinduer i tre med sikkerhetsglass for bolig og garasje

Trapper Innvendig trapp i L-form

🧱 Tre

Antall: 1

Trapp i bolig mellom 1. og 2. etasje, ca 15,5 m² i hall/trapp område

Innvendig trapp i bolig

Betong Grunnmur og søylepunkter

🧱 Betong

Grunnmur, søylepunkter og radonsperre

Betongarbeid for bolig og garasje

Ventilasjon Ventilasjonsanlegg med kanalgjennomføringer

Montering og innregulering av ventilasjonsanlegg

Ventilasjonsarbeid for bolig

Grunnarbeid Graving og fundamentering

Utskifting før graving, plassering av såle og grunnmur, fundamentplan

Grunnarbeid og fundamentering for bolig og garasje

Terrasse Terrasse i tre

🧱 Tre

Antall: 1

Terrasse tilknyttet bolig, areal ikke spesifisert

Utendørs terrasse i tre

Dører Ytterdører og balkongdører

🧱 Tre

Antall: 11

Ytterdører og balkongdører i tre, inkludert 2 dører i entré, 1 dør til balkong, 1 garasjeport

Ytterdører og balkongdører i tre til bolig og garasje

Bad Våtromsinnredning

Antall: 3

Bad i 1. og 2. etasje, inkl. våtromsinnredning og fuktsikring

Bad og våtrom i bolig

Rekkverk Rekkverk på balkong og terrasse

🧱 Tre

Antall: 2

Rekkverk på balkong og terrasse

Sikkerhetsrekkverk i tre

Fasade Trepanel

🧱 Tre

Antall: 1

Trepanel på alle fasader, inkludert forstøtningsmurer tilpasset terreng

Trepanel på bolig og garasje

Tak Saltak med teglstein

🧱 Teglstein

Antall: 1

Saltak med teglstein, gesimshøyde 6 m, mønehøyde 8,1 m

Saltak med teglstein på bolig og garasje

Elektro Elektriske installasjoner

Elektriske installasjoner i bolig

Elektroarbeid for bolig

Gulv Innvendige gulvflater

Gulv i bolig, ikke spesifisert materiale

Innvendige gulvflater i bolig

Pipe Pipe i mur

🧱 Mur

Antall: 1

Pipe tilknyttet bolig

Murpipe for bolig

Fasader

Enebolig

Nordøst
Materiale
Tre
Taktype
Saltak
Vinduer
5
Dører
1
Balkonger
1
Synlige etasjer
2
Sørøst
Materiale
Tre
Taktype
Saltak
Vinduer
4
Dører
1
Synlige etasjer
2
Sørvest
Materiale
Tre
Taktype
Saltak
Vinduer
3
Dører
1
Synlige etasjer
2
Nordvest
Materiale
Tre
Taktype
Saltak
Vinduer
3
Dører
1
Synlige etasjer
2
Nord-Øst
Materiale
Tre
Taktype
Saltak
Takmat.
Tegl
Høyde
6.0 m
Mønehøyde
8.1 m
Vinduer
6
Dører
1
Balkonger
1
Synlige etasjer
2
Nord-Vest
Materiale
Tre
Taktype
Saltak
Vinduer
2
Dører
0
Balkonger
1
Synlige etasjer
2
Sør-Vest
Materiale
Tre
Taktype
Saltak
Vinduer
4
Dører
1
Synlige etasjer
2
Sør-Øst
Materiale
Tre
Taktype
Saltak
Vinduer
2
Dører
1
Balkonger
1
Synlige etasjer
2

Hendelser

23.04.2026 Endringsvedtak - garasje- Indrehovdevegen 106 A - gnr 53 bnr 266
16.04.2026 Søknad om endring av gitt tillatelse eller godkjenning 53/284 - Indrehovdevegen 106A
23.10.2025 Svar på henvending om saksgang- handsaming av klage
17.10.2025 Etterlyser svar på sak 80/25 som er oversendt statsforvalter
09.09.2025 Ørsta kommune - 53/266 - endring av taktype - førebels svar
15.07.2025 Behandling av klage - Endring av taktype i høve oppføring av einebustad og garasje - Indrehovdevegen 106 A - gnr 53 bnr 266
19.06.2025 Behandling av klage - Endring av taktype i høve oppføring av einebustad og garasje - Indrehovdevegen 106 A - gnr 53 bnr 266
14.05.2025 Igongsettingsløyve - Einebustad og garasje - Indrehovdevegen 106 A - gnr 53 bnr 266
05.05.2025 Søknad om igangsettingsløyve
30.04.2025 Førebels svar- vidare handsaming
24.04.2025 Om berekning av 3-års frist
23.04.2025 Tilsvar til klage på vedtak
08.04.2025 Om klagehandsaming
04.04.2025 Klage på vedtak fatta i Ørsta kommune
24.03.2025 Endringsvedtak - Einebustad og garasje - Indrehovdevegen 106 A - gnr 53 bnr 284
11.03.2025 Søknad om endring av gitt løyve
12.05.2022 Tilbakemelding på Rammeløyve - Einebustad og garasje - Indrehovdevegen - gnr 53 bnr 266
12.05.2022 Flømarka solstudie
12.05.2022 Rammeløyve - Einebustad og garasje - Indrehovdevegen - gnr 53 bnr 266
28.04.2022 Endra plassering av støttemur - søknad rammeløyve, gnr 53 bnr 266
22.04.2022 Vedrørande søknad rammeløyve, gnr 53 bnr 266
16.03.2022 Søknad om dipsensasjon
07.03.2022 Søknad om rammeløyve