NewConstruction Soeknad Enebolig

Ny enebolig med terrengendring i Janaveien, Bergen

📍 Janaveien 100 , 5179 GODVIK

Nøkkelinfo

Sakstype
Nybygg
Bygningstype
Enebolig
Bruksareal
264 m²
Boenheter
1
Kommune
Bergen
Fylke
Vestland
Gnr / Bnr
135 / 28
Saksnummer
BYGG-2026/12445
Fase
Søknad

Om byggesaken

Ny enebolig i to plan med flatt tak og moderne arkitektur oppføres på ubebygd tomt i Janaveien, Bergen. Boligen har et samlet bruksareal på 263,9 m², inkludert garasje på 32,5 m², og er tilpasset skrånende terreng med en gesimshøyde på 6,5 meter. Fasaden består av stående trekledning i mørke og lyse nyanser, med store vindusflater for godt dagslys. Utearealene er planert og tilrettelagt med over 500 m² uteoppholdsareal, fordelt på to solrike områder. Overvann håndteres lokalt med sandfangskummer, fordrøyningsmagasin og infiltrasjon i sprengsteinsmasser. Adkomst skjer via privat vei med tinglyst rettighet. Bygget har 1 trapp, 6 vinduer i stue, og tekniske løsninger for vann, avløp og overvann er prosjektert i henhold til kommunale krav.

Produkter og materialer

Elektro Installasjon for ventilasjon, solceller og varmepumpe

Tekniske installasjoner integrert på takflate

Elektroinstallasjoner for energieffektiv bolig

Garasjeport Garasjeport i tre

🧱 Tre eller kompositt

Antall: 1

Port til garasje på 32,5 m²

Garasjeport for biladkomst

Grunnarbeid Terrengendring og masseutskifting

🧱 Sprengstein og jordmasser

Masseutskifting med rene sprengsteinsmasser for infiltrasjon og terrengtilpasning

Grunnarbeid for bygg og overvannshåndtering

Dører Ytterdører og innerdører

🧱 Tre/kompositt

Antall: 7

Inkluderer dører til garasje, bod, vaskerom, bad, WC og hovedinngang

Dører for adkomst og romavgrensning

Tak Flatt tak

🧱 Teknisk takmembran tilpasset TEK17

Antall: 1

Flatt tak med mulighet for integrerte tekniske installasjoner som solceller og varmepumpe

Takflate med lav høyde og moderne utforming

Fasade Stående trekledning

🧱 Tre, mørk og lys farge

Variasjon av mørk og lys stående trekledning tilpasset omgivelsene

Fasadebekledning for estetikk og værbeskyttelse

Terrasse Opparbeidet uteoppholdsareal

🧱 Planert jord- og fyllmasser

To uteoppholdsarealer på til sammen 506,4 m² med solforhold og skjerming

Privat uteareal for opphold og rekreasjon

Trapper Innvendig trapp i bolig

Antall: 1

Trapp mellom underetasje og 1. etasje

Innvendig trapp for etasjeadkomst

Annet Avfallshåndtering

Plass til 4 stk. 140 l avfallsbeholdere og plastsekk-løsning for plastemballasje

Renovasjonsteknisk plan for avfallshåndtering

Gulv Parkett og flis

🧱 Parkett og flis

Parkett 23,7 m², flis 6,3 m² i bad og vaskerom

Innvendige gulvflater med parkett og flis

VVS VA-anlegg og overvannshåndtering

🧱 PVC-rør, sandfangskum, fordrøyningsmagasin

Sandfangskum DN1000 med flat rist, fordrøyningskum 3,0 m³, infiltrasjon i sprengsteinsmasser

Lokal overvannshåndtering i henhold til kommunale krav

Vinduer Store vindusflater i stue

🧱 3-lags energiglass

Antall: 6

Store vindusflater for godt dagslys i oppholdsrom

Vinduer i stue og øvrige rom for dagslys og utsyn

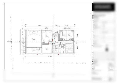
Plantegning

Enebolig 84.3 m²

Etasje 0 84.3 m²

Rom Areal Vinduer Dører
Garasje 1 32.5 m² 0 1
Bod 2 9.4 m² 0 1
Vaskerom 28 16.2 m² 0 1
Bod 29 10.8 m² 0 1
Hall/stue 5 30.0 m² 2 2
Bad 6 6.5 m² 0 1
Flis Flis 6.3 m² 0 0

Fasader

Enebolig

Nord
Materiale
Tre
Taktype
Saltak
Høyde
6.6 m
Vinduer
4
Dører
1
Synlige etasjer
2

Garasje

Vest
Materiale
Tre
Taktype
Saltak
Høyde
5.5 m
Vinduer
1
Dører
0
Synlige etasjer
1

Hendelser

10.04.2026 Søknad om rammetillatelse 135/28