NewConstruction Rammetillatelse Enebolig

Oppføring av våningshus med kenneldrift og adkomstvei på Jennestad

📍 Jennestad

Nøkkelinfo

Sakstype
Nybygg
Bygningstype
Enebolig
Bruksareal
149 m²
Boenheter
1
Kommune
Sortland - Suortá
Fylke
Nordland - Nordlánnda
Gnr / Bnr
19 / 10
Saksnummer
2025/7463
Fase
Rammetillatelse

Om byggesaken

Ny enebolig på 149 m² fordelt på to etasjer med saltak og trekledning oppføres på eiendom 19/10 på Jennestad. Boligen inkluderer stue/kjøkken, tre soverom, vaskerom og bad. Det etableres en ny adkomstvei og en ny avkjørsel fra fylkesvei 820, med tilhørende dispensasjoner fra LNFR-formål og reguleringsplan. Avløpsløsningen består av slamavskiller med infiltrasjonsanlegg i stedegne løsmasser, godkjent av kommunen. Tiltaket inkluderer også kenneldrift som tilleggsnæring til landbrukseiendommen. Grunnforholdene er stabile med gode infiltrasjonsegenskaper, og tiltaket er tilpasset eksisterende traktorvei for å minimere inngrep i dyrket mark. Det gis personlig ansvarsrett som selvbygger til tiltakshaver. Tiltaket har vært gjenstand for omfattende saksbehandling og politisk behandling, og dispensasjon er innvilget med vilkår om teknisk utforming av avkjørsel og adkomst.

Produkter og materialer

Tømrer Bindingsverk og bjelkelag

🧱 Tre, mineralullisolasjon

Bindingsverk 98 mm, bjelkelag dimensjonert for 1,5 kN/m2, mineralullisolasjon 150-200 mm

Bygningskonstruksjon

Tak Saltak med platetekking

🧱 Tre, mineralullisolasjon, platetekking

Antall: 1

Takstoler eller bjelker dimensjonert for 1,5 kN/m2, 200 mm mineralullisolasjon

Saltak med platetekking og takrenner

Maling Innvendige veggplater og himlingsplater

Malte plater i himling, panelte, tapetserte og malte vegger

Innvendige overflater

Trapper Innvendig trapp

🧱 Tre

Antall: 1

Innvendig trapp mellom etasjer

Garasjeport Leddheiseport i kjeller

Antall: 1

Garasjeport i kjeller

VVS Vannforsyning

🧱 Tilknytning til privat vannverk Jennestad Vannverk SA

Antall: 1

Tilkoplingsavgift kr 5.000 + andelsinnskudd kr 300, årlig avgift kr 3.220

Tilknytning til vannverk for bolig

Elektro Elektriske installasjoner

Automatsikringer, jordfeilbryter, stikkontakter, lampepunkter, opplegg for hvitevarer og varmekilder

Elektrisk anlegg i bolig

VVS Privat avløpsanlegg

🧱 Slamavskiller med tre kammer og infiltrasjonsanlegg i stedegne løsmasser

Antall: 1

Dimensjonert for boligen, godkjent infiltrasjonsløsning med dokumentert infiltrasjonsevne

Privat avløpsanlegg med infiltrasjon

Dører Ytterdører og balkongdører

🧱 Tre med 2-lags isolerglass og 3-punkts låsing

Antall: 6

Ytterdører og dører til balkong og kjeller

Annet Personlig ansvarsrett som selvbygger

Antall: 1

Tiltakshaver Anne Robertsen har personlig ansvarsrett som selvbygger for ansvarlig søker

Ansvarsrett for tiltakshaver

Vinduer Isolerglassvinduer i tre

🧱 Impregnert gran eller furu, 2-lags isolerglass med argonfylling

Antall: 14

Spalteventil i overkarm, komplett utforet og belistet

Vinduer til bolig i hoved- og sokkeletasje

Fasade Trekledning

🧱 Impregnert tre, liggende og stående kledning

Antall: 4

Trekledning på alle fasader

Terrasse Trykkimpregnert terrasse

🧱 Trykkimpregnert tre

Antall: 1

Stor terrasse med noe slitasje

Terrasse til bolig

Grunnarbeid Opparbeidelse av adkomstvei

🧱 Grus, asfalt på delstrekning mellom gang- og sykkelvei og fylkesveg

Antall: 1

Adkomstvei på gnr. 19 bnr. 6 og 10, med krav om asfaltering mellom gang- og sykkelvei og fylkesveg

Opparbeidelse av adkomstvei til bolig

Gulv Vinylbelegg og våtromsbelegg

Vinylbelegg i oppholdsrom, våtromsbelegg på bad og vaskerom

Gulvbelegg i bolig

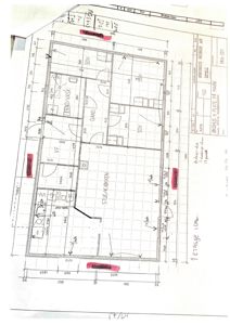
Plantegning

Enebolig 149.0 m²

Etasje 1 54.0 m²

Rom Areal Vinduer Dører
STUE/KJØKKEN 101 37.8 m² 3 1
SOV 102 16.2 m² 1 1
SOV 103 12.6 m² 1 1
VASK 104 3.2 m² 0 1
BAD/V 105 4.5 m² 0 1
GANG 106 2.5 m² 0 2
Gang 107 8.0 m² 0 0
BAD/VASK 108 6.0 m² 0 1

Etasje 0 95.0 m²

Rom Areal Vinduer Dører
Kjøkken/stue 001 47.0 m² 2 2
Soverom 2 002 12.0 m² 1 1
Soverom 3 003 12.0 m² 1 1
Vaskerom 004 6.0 m² 0 1
Trapp/lager 005 8.0 m² 0 1
Bad/vaskrom 006 6.0 m² 0 1
Soverom/lager 007 4.0 m² 0 1

Fasader

Enebolig

Nord
Materiale
Tre
Taktype
Saltak
Vinduer
3
Dører
1
Synlige etasjer
1
Sør
Materiale
Tre
Taktype
Saltak
Vinduer
6
Dører
1
Synlige etasjer
1
Øst
Materiale
Tre
Taktype
Saltak
Vinduer
2
Dører
1
Synlige etasjer
1
Vest
Materiale
Tre
Taktype
Saltak
Vinduer
2
Dører
1
Synlige etasjer
1

Hendelser

20.04.2026 Klage på vedtak - Dispensasjon - Sortland 19/10 - Jennestad - etablering av bolig, kenneldrift og adkomstvei
20.04.2026 Gnr. 19, bnr. 10 - orientering om vedtak - innvilgelse av dispensasjon fra LNFR-formål og fra reguleringsplan for Jennestad boligfelt
09.04.2026 Habilitetsvurdering - FS 19.03.2026 PS 024/26 - Gnr. 19, bnr. 10 - behandling av rammesøknad, herunder søknad om dispensasjon fra LNFR-formål for etablering av bolig og adkomstvei, samt dispensasjon fra reguleringsplan Jennestad boligfelt for etablering
23.03.2026 Arkivsak 2025/7463 Eiendom 19/10 Kommentar til sak som kommer i formannskapet
10.03.2026 Gnr.19, bnr. 10 - Jennestad - Jordlovsbehandling omdisponering av dyrka jord
10.03.2026 Uttalelse - Dispensasjon - Sortland 19/10 - Jennestad - etablering av bolig, kenneldrift og adkomstvei
05.03.2026 Fylkeskommunens uttalelse - dispensasjon fra reguleringsplan for etablering av avkjørsel - gnr. 19 bnr. 10 i Sortland kommune
03.03.2026 Kulturminnefaglig uttalelse - Dispensasjon for etablering av vei og bolig - Gnr. 19, bnr. 10 - Sortland kommune
27.02.2026 Nabovarsel
24.02.2026 Høringsuttalelse – Tiltak
17.02.2026 Anmodning om plan-, landbruk- og kulturminnefaglige uttalelser til søknad om etablering av vei og bolig - gbnr. 19/10, Jennestad - Suorttá souhkan / Sortland kommune
17.02.2026 ref møte med BL 060226 rev
17.02.2026 Gnr. 19, bnr. 10 - Anmodning om høringsuttalelse fra vegeier i forbindelse med søknad om dispensasjon fra reguleringsplan, Jennestad
17.02.2026 Direkte anskaffelse
17.02.2026 Gnr. 19, bnr. 10 - Anmodning om plan-, landbruk- og kulturminnefaglige uttalelser til søknad om etablering av vei og bolig, Jennestad
09.02.2026 Samlet merknad – til bruk i politisk behandling
09.02.2026 Søknad om dispensasjon fra LNF2-formål
03.02.2026 Søknad om dispensasjon fra reguleringsplan
19.01.2026 Søknad om tillatelse til tiltak
06.01.2026 Del 1 av 3 til byggesøknad eiendom 19/10
06.01.2026 Del 2 av 3 til byggesøknad eiendom 19/10
19.12.2025 Del 3 av 3 til byggesøknad eiendom 19/10