NewConstruction UnderBehandling Enebolig

Ny enebolig med utleiedel i Johan Bjerknes vei 17, Drammen

📍 Johan Bjerknes vei 17 , 3039 DRAMMEN

Nøkkelinfo

Sakstype
Nybygg
Bygningstype
Enebolig
Bruksareal
174 m²
Boenheter
1
Kommune
Drammen
Fylke
Buskerud
Gnr / Bnr
25 / 149
Saksnummer
24/03764
Fase
Under behandling

Om byggesaken

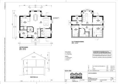
Ny enebolig på ca. 174 m² BRA fordelt på to etasjer tilpasses skrånende tomt på 599,9 m². Boligen har saltak med teglstein, liggende trekledning og tradisjonell arkitektur. Første etasje på 105,5 m² inneholder stue, kjøkken, soverom, bad, kontor, bod og entré. Andre etasje på 68,4 m² har flere soverom, bad, vaskerom, bod og stue. Det er to balkonger og en trapp i boligen. Det er etablert en sekundær boenhet i underetasjen med eget kjøkken, men uten fysisk adskillelse som egen branncelle. Utearealene inkluderer parkeringsplasser og sportsbod integrert i garasje. Tiltaket har godkjent sanitærabonnement, avkjøringstillatelse og er tilknyttet offentlig vann og avløp. Det er gitt midlertidig brukstillatelse med gjenstående mindre arbeider før ferdigattest.

Produkter og materialer

Betong Fundamenter og støttemur

🧱 Betong

Fundamenter for bolig og støttemur for garasje

Betongarbeider for fundament og støttemur

Mur Radonsikring

Radonsikring i grunnmur

Murarbeid med radonsikring

Sportsbod Frittliggende sportsbod i garasje

Antall: 1

Sportsbod integrert i garasje, midlertidig kontor benyttes som sportsbod

Sportsbod for lagring

Elektro Elektriske installasjoner

Elektriske installasjoner iht. TEK17

Elektriske installasjoner i bolig

Gulv Innvendige gulv

Standard innvendige gulv i bolig

Gulv i boligets rom

Trapper Innvendig trapp

Antall: 1

Innvendig trapp mellom etasjer

Trapp i bolig for etasjeadkomst

VVS Sanitærinstallasjoner og vannbåren varme

Sanitærutstyr med tilhørende rørsystemer, vannbåren varme vurderes

Innvendige sanitærinstallasjoner og eventuell vannbåren varme

Vinduer Fasadevindu

🧱 Tre/Aluminium

Antall: 13

Vinduer i varierende størrelser, åpne- og faste glass

Fasadevindu i bolig, totalt 13 stk fordelt på etasjer og fasader

Pipe Pipe og ildsted

Antall: 1

Pipe og ildsted installert i bolig

Pipe og ildsted for bolig

Vannforsyning og avløp Vann- og avløpsledninger, stikkledninger

Legging av vann- og avløpsledninger tilkoblet offentlig nett

VA-anlegg for bolig

Garasjeport Garasjeport

Antall: 1

Garasjeport til frittliggende garasje

Port til garasje integrert i boligområdet

Kjøkken Kjøkkeninnredning i utleiedel

Antall: 1

Montering av kjøkken i sekundær boenhet i underetasjen

Kjøkkeninnredning i utleiedel underetasje

Tak Saltak med teglstein

🧱 Teglstein

Saltak med takvinkel 27 grader, teglstein som takmateriale

Tak med saltaksform og teglstein

Fasade Liggende trekledning

🧱 Tre

Tradisjonell liggende trekledning

Yttervegger kledd med liggende trekledning

Ventilasjon Balansert ventilasjonsanlegg

Komplett balansert ventilasjonsanlegg

Ventilasjonsanlegg for bolig

Dører Ytterdører og balkongdører

🧱 Tre/Glass

Antall: 7

Ytterdører og balkongdører i tre og glass

Dører til inngang, balkonger og uteområder

Terrasse Terrasse og uteoppholdsareal

Terrassearealer på fasader mot nord, øst og sør

Uteoppholdsarealer med terrasse

Grunnarbeid Graving, oppfylling, planering og drenering

Grunnarbeider inkl. drenering og overvannshåndtering

Grunnarbeid for bolig og uteområder

Plantegning

Enebolig 173.9 m²

Etasje 1 105.5 m²

Rom Areal Vinduer Dører
Stue 131 35.4 m² 3 1
Kjøkken 121 16.1 m² 2 1
Soverom 141 7.7 m² 1 1
WC 112 3.0 m² 0 1
Hall 104 2.1 m² 0 1
Entré 101 3.0 m² 0 1
Stue 132 10.3 m² 1 1
Bad 115 3.6 m² 0 1
Bod 161 2.5 m² 1 1
Kontor 146 6.2 m² 1 1

Etasje 2 68.4 m²

Rom Areal Vinduer Dører
Soverom 041 14.3 m² 2 1
Soverom 042 10.2 m² 2 1
Kles 003 3.5 m² 0 1
Bad 015 7.5 m² 0 1
Hall 002 2.2 m² 0 1
Hall 005 12.0 m² 0 1
Hall 004 2.0 m² 0 1
Vask 011 5.9 m² 0 1
Bod 061 3.2 m² 0 1
Bod 061 5.1 m² 0 1
Entré 001 4.5 m² 0 1
Stue 031 16.7 m² 3 1
Soverom 043 9.5 m² 1 1
Bad 016 4.9 m² 0 1

Fasader

Enebolig

Nord
Materiale
Tre
Taktype
Saltak
Takmat.
Tegl
Vinduer
5
Dører
1
Balkonger
1
Synlige etasjer
2
Sør
Materiale
Tre
Taktype
Saltak
Takmat.
Tegl
Vinduer
2
Dører
0
Balkonger
1
Synlige etasjer
2
Vest
Materiale
Tre
Taktype
Saltak
Takmat.
Tegl
Vinduer
3
Dører
1
Synlige etasjer
1
Øst
Materiale
Tre
Taktype
Saltak
Takmat.
Tegl
Vinduer
3
Dører
1
Balkonger
1
Synlige etasjer
2

Hendelser

20.04.2026 Johan Bjerknes vei 17, vi trenger flere opplysninger for å behandle søknaden din
17.04.2026 Johan Bjerknes vei 17, anmodning om status
20.03.2026 Søknad om endring av gitt tillatelse eller godkjenning 25/149
16.08.2025 Johan Bjerknes vei 17, midlertidig brukstillatelse for oppføring av ny enebolig
14.08.2025 Johan Bjerknes vei 17, Søknad om midlertidig brukstillatelse 25/149
04.08.2025 Johan Bjerknesvei 17, kopi - tilsyn avsluttes
01.08.2025 Johan Bjerknes vei 17, Søknad om midlertidig brukstillatelse 25/149
18.06.2025 Johan Bjerknes vei 17, trekker søknad om ansvarsrett
10.06.2025 Johan Bjerknes vei 17, søknad om midlertidig brukstillatelse 25/149
10.06.2025 25/149, Johan Bjerknes vei 17, Oversendelse av beliggenhetskontroll og VA
22.05.2025 Johan Bjerknes vei 17, Supplering av søknad 25/149
28.04.2025 Johan Bjerknes vei 17, Opphør av ansvarsrett
23.04.2025 Johan Bjerknes vei 17, opphør av ansvarsrett
09.08.2024 Johan Bjerknes vei 17, tillatelse til endring av tidligere gitt tillatelse
09.07.2024 Johan Bjerknes vei 17, melding om mottatt søknad
08.07.2024 Johan Bjerknes vei 17, Søknad om endring av gitt tillatelse eller godkjenning 25/149
23.02.2024 Johan Bjerknes vei 17 - Behov for redegjørelse og tilleggsinformasjon
22.02.2024 Johan Bjerknes vei 17, tillatelse til oppføring av enebolig
21.02.2024 Johan Bjerknes vei 17, Komplettering av søknad
15.02.2024 Johan Bjerknes vei 17 - lite spm ang terrasse og avstand
12.02.2024 Johan Bjerknes vei 17, godkjent sanitærabonnement
26.01.2024 Johan Bjerknes vei 17, melding om mottatt søknad
26.01.2024 Johan Bjerknes vei 17, melding om mottatt søknad
24.01.2024 Johan Bjerknes vei 17, søknad om tillatelse i ett trinn