NewConstruction UnderBehandling Enebolig

Ny enebolig og garasje på Kalhagen 22, Ullensvang

📍 Kalhagen 22 , 5780 KINSARVIK

Nøkkelinfo

Sakstype
Nybygg
Bygningstype
Enebolig
Bruksareal
164 m²
Boenheter
1
Kommune
Ullensvang
Fylke
Vestland
Gnr / Bnr
239 / 332
Saksnummer
2026/373
Fase
Under behandling

Om byggesaken

Ny enebolig i to etasjer med totalt 120,5 m² BRA i 2. etasje, inkludert stue/kjøkken, tre soverom, bad, WC, vaskerom, gang og bod/teknisk rom. Boligen har saltak i tre og fasader i treverk, med flere vinduer og dører fordelt på alle fasader. Det er en terrasse på 35,2 m² og overbygget areal på 5,7 m². I tillegg oppføres en frittstående garasje på 43,4 m² med pulttak og betonggrunnmur. Bygget er plassert i tråd med reguleringsplan og byggegrenser, med trinnfri adkomst til hovedplan. Bygget skal tilknyttes offentlig vann og avløp, og har parkeringsplass i garasjen for to biler. Overvann håndteres lokalt på tomten. Bygningen prosjekteres med rockwool isolasjon for brannsikkerhet og tilfredsstiller krav til avstand mellom byggverk.

Produkter og materialer

Dører Ytterdører og terrassedører

🧱 Tre eller glass

Antall: 9

Dører til inngang, terrasse og innvendige rom som bad, WC og vaskerom

Ytterdører og terrassedører i tre/glass til bolig

Trapper Innvendig trapp

🧱 Ikke spesifisert

Antall: 1

Trapp mellom etasjer i bolig

Innvendig trapp i bolig

Renovasjon Plass for renovasjonsdunker

Antall: 4

Plassering av fire renovasjonsdunker på tomt i henhold til kommunens renovasjonstekniske norm

Renovasjonsløsning for bolig

VVS Vann og avløp tilkobling

Tilknytning til offentlig vann og avløp

VVS installasjoner for bolig

Elektro Elektrisk anlegg

Elektrisk installasjon iht. TEK17

Elektrisk anlegg i bolig og garasje

Grunnarbeid Betongfundament og grunnmur

🧱 Betong

Betongmur og støttemurer tilpasses terreng, grunnmur til bolig og garasje

Grunnarbeid med betongfundament og grunnmur

Terrasse Uteplass terrasse

🧱 Ikke spesifisert

Antall: 1

Terrasse på 35,2 m² over tett bygg

Uteplass med terrasse i bolig

Pipe Stålpipe

🧱 Stål

Antall: 1

Stålpipe i bolig

Pipe for ildsted i bolig

Fasade Trepanel

🧱 Tre

Trepanel på alle fasader

Utvendig kledning i tre

Vinduer Fasadevindu

🧱 Tre med 3-lags energiglass

Antall: 14

Vinduer fordelt på fasader nord, sør, vest og øst, inkludert 4 i stue/kjøkken

Fasadevinduer i tre med energiglass for bolig

Tak Saltak og pulttak

🧱 Tre, taktekking ikke spesifisert

Antall: 2

Saltak på bolig, pulttak på garasje

Taktekking for bolig og garasje

Gulv Parkett og fliser

🧱 Eikeparkett og fliser (antatt)

Gulv i oppholdsrom og våtrom, detaljprosjekteres

Innvendige gulvflater i bolig

Maling Utvendig og innvendig maling

Maling av trepanel og innvendige flater

Overflatebehandling av fasade og innvendige flater

Isolasjon Rockwool isolasjon

🧱 Rockwool

Isolasjon med brannmotstand EI60

Isolasjon for brannsikkerhet i bolig

Ventilasjon Mekanisk ventilasjon

Ventilasjon iht. TEK17 krav

Ventilasjonssystem i bolig

Garasjeport Garasjeport i tre eller metall

Antall: 1

Garasjeport til frittstående garasje

Port til garasje

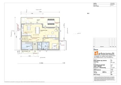
Plantegning

Enebolig 120.5 m²

Etasje 2 120.5 m²

Rom Areal Vinduer Dører
Stue/kjøkken/trapp 201 62.0 m² 4 2
Soverom 202 15.6 m² 1 1
Bad 203 5.9 m² 0 1
WC 204 3.0 m² 0 1
Gang 205 4.3 m² 0 2
Vaskerom 206 9.2 m² 0 1
BRA Overbygget 207 5.7 m² 0 1
Terrasse 208 35.2 m² 0 0

Fasader

Enebolig

Nord
Materiale
Tre
Taktype
Saltak
Høyde
3.7 m
Vinduer
3
Dører
1
Balkonger
1
Synlige etasjer
2
Sør
Materiale
Tre
Taktype
Saltak
Høyde
3.7 m
Vinduer
3
Dører
1
Balkonger
1
Synlige etasjer
2
Vest
Materiale
Tre
Taktype
Flatt tak
Høyde
3.7 m
Vinduer
4
Dører
1
Balkonger
1
Synlige etasjer
2
Øst
Materiale
Tre
Taktype
Flatt tak
Høyde
3.7 m
Vinduer
2
Dører
2
Synlige etasjer
1

Hendelser

16.04.2026 Gnr 239 bnr 332 - Kalhagen 22 - Supplering av søknad
30.03.2026 Fortsatt mangler ved søknad - Gnr. 239, bnr. 332 - Kalhagen 22
19.03.2026 Gnr 239 bnr 332 - Kalhagen 22 - Supplering av søknad
13.03.2026 Foreløpig tilbakemelding - Gnr. 239, bnr. 332 - Kalhagen 22
02.02.2026 Gnr 239 bnr 332 - Kalhagen 22 - Søknad om rammetillatelse