NewConstruction Soeknad Enebolig

Ny enebolig i Kornveien 35, Drammen

📍 Kornveien 35 , 3039 DRAMMEN

Nøkkelinfo

Sakstype
Nybygg
Bygningstype
Enebolig
Bruksareal
234 m²
Boenheter
1
Kommune
Drammen
Fylke
Buskerud
Gnr / Bnr
41 / 261
Saksnummer
26/10230
Fase
Søknad

Om byggesaken

Ny enebolig på Kornveien 35 i Drammen med ett plan og saltak. Boligen har et bruttoareal på ca. 234 m² og inneholder blant annet stue/kjøkken, flere soverom, bad, vaskerom, kontor og entré. Bygget har trekledning og saltak med mønehøyde på 5,4 meter og gesimshøyde på 2,6 meter. Det er én trapp innvendig, og fasadene har til sammen 19 vinduer og 5 dører. Bygget er prosjektert med radonsperre og radonbrønn, og det er lagt vekt på tilfredsstillende støynivå i henhold til gjeldende støykrav. Tomten er på 1075,5 m² med planlagt bebygd areal på ca. 249 m². Det er planlagt dobbel garasje som søkes separat. Prosjektet inkluderer grunnarbeid, betongarbeid, tømrerarbeid, VVS, elektro, ventilasjon og landskapsarbeid.

Produkter og materialer

Grunnarbeid Drenering og fundamentering

🧱 Drensrør, betong, XPS isolasjon

Drensrør med fall min 1:200, radonsperre og radonbrønn, betongsåle med isolasjon

Grunnarbeid med drenering, fundamentering og radonforebygging

VVS Innvendige sanitærinstallasjoner

Sanitærinstallasjoner for bad, vaskerom og kjøkken

Kjøkken Kjøkkeninnredning

Antall: 1

Kjøkkeninnredning i bolig

Vinduer Fasadevindu i tre

🧱 Tre

Antall: 19

Totalt 19 fasadevinduer i tre for eneboligen

Trapper Innvendig trapp

Antall: 1

Innvendig trapp i eneboligen

Dører Ytterdører i tre

🧱 Tre

Antall: 5

Totalt 5 ytterdører i tre til eneboligen

Fasade Utvendig kledning i tre

🧱 Tre

Utvendig trekledning på alle fasader

Elektro Elektriske installasjoner

Elektriske installasjoner i bolig

Pipe Pipe i trehus

Antall: 1

Pipe på eneboligen

Maling Innvendig og utvendig maling

Maling av innvendige og utvendige flater

Bad Bad og våtrom

Antall: 2

To bad med våtromsstandard

Gulv Innvendige gulv

Innvendige gulv i bolig

Betong Plasstøpte betongkonstruksjoner

🧱 Betong

Plasstøpte betongkonstruksjoner for fundament og bærende elementer

Tømrer Tømrerarbeid og montering av trekonstruksjoner

🧱 Tre

Tømrerarbeid for vegger, tak og innvendige konstruksjoner

Tak Saltak med takstoler

🧱 Trekonstruksjon

Prefab selvbærende takstoler, takvinkel 26°

Saltak med prefab takstoler og trekonstruksjon

Ventilasjon Ventilasjonsinstallasjoner

Montering av ventilasjonsanlegg

Isolasjon Isolasjon i vegger og gulv

🧱 XPS og annen isolasjon

Isolasjon iht. energiberegning og Byggforsk detaljer

Isolasjon i vegger, gulv og tak for energikrav

Terrasse Uteplass/terrasse

Uteplass med tilfredsstillende støynivå utenfor gul støysone

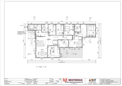
Plantegning

Enebolig 234.0 m²

Etasje 1 234.0 m²

Rom Areal Vinduer Dører
Stue/kjøkken 101 39.8 m² 2 2
Entré 102 6.6 m² 0 2
Sov 103 9.4 m² 1 1
Sov 104 9.4 m² 1 1
Sov 105 12.6 m² 1 1
Kontor 106 5.4 m² 0 1
Vaskerom/bod 107 8.5 m² 0 1
Bad 108 8.6 m² 0 1
Stue/kjøkken 109 26.9 m² 1 1
Bad 110 4.7 m² 0 1
Sov 111 11.6 m² 1 1
Gang 113 7.2 m² 0 2
Kjøkken 114 15.4 m² 0 1

Fasader

Enebolig

Vest
Materiale
Tre
Taktype
Saltak
Vinduer
3
Dører
1
Synlige etasjer
1
Nord
Materiale
Tre
Taktype
Saltak
Vinduer
6
Dører
1
Synlige etasjer
1
Sør
Materiale
Tre
Taktype
Saltak
Vinduer
5
Dører
1
Synlige etasjer
1
Øst
Materiale
Tre
Taktype
Saltak
Vinduer
3
Dører
1
Synlige etasjer
1
Ukjent
Materiale
Tre
Taktype
Saltak
Høyde
2.6 m
Mønehøyde
5.4 m
Vinduer
2
Dører
1
Synlige etasjer
1

Hendelser

09.04.2026 Kornveien 35 Søknad om tillatelse i ett trinn 41/261