NewConstruction UnderBehandling Enebolig

Ny enebolig med sekundærbolig og garasje i Krillåsveien 11B, Asker

📍 Krillåsveien 11B , 1392 VETTRE

Nøkkelinfo

Sakstype
Nybygg
Bygningstype
Enebolig
Bruksareal
375 m²
Boenheter
2
Kommune
Asker
Fylke
Akershus
Gnr / Bnr
59 / 26
Saksnummer
24/1874
Fase
Under behandling

Om byggesaken

Ny enebolig med sekundær boenhet og frittstående garasje oppføres på Krillåsveien 11B i Asker. Boligen er på totalt ca. 375 m² BRA fordelt på kjeller, 1. og 2. etasje, med tradisjonell saltakskonstruksjon og trekledning. Kjelleretasjen inneholder utleiedel med egen inngang, bod, bad og tekniske rom. Hovedetasjene har stue, kjøkken, soverom og bad, med flere takvinduer for dagslys. Garasjen er frittstående med et areal på ca. 35 m² og mønehøyde 4 meter. Tomten er på 879 m² med ca. 50 % uberørt areal, og det er planlagt uteoppholdsarealer med terrasse og trapp. Terrengendringer er moderate og i tråd med kommuneplanens bestemmelser. Prosjektet har gjennomgått nabovarsling og mottatt merknader, som er besvart og vurdert i saksbehandlingen. Det foreligger dispensasjon fra krav om reguleringsplan. Prosjektet har godkjente ansvarsrettigheter for prosjektering, utførelse og kontroll innen arkitektur, konstruksjon, sanitær, ventilasjon, grunnarbeid og utomhus.

Produkter og materialer

Vinduer Fasadevindu

🧱 Tre med sprosser

Antall: 23

Klassiske t-postvinduer med sprosser i øvre felt

Fasadevindu i bolig og utleiedel

Maling Innvendig maling

Maling av vegger og tak innvendig

Innvendige overflater

Garasjeport Garasjeport

Antall: 1

Garasjeport i frittstående garasje

Port for biloppstilling

Tømrer Trekonstruksjoner

🧱 Tre

Montering av trekonstruksjoner og stål over kjelleretasje

Bærekonstruksjon og innvendige vegger

Ventilasjon Balansert ventilasjon

Antall: 2

Balansert ventilasjon for bolig og sekundær utleiedel

Ventilasjonsanlegg

Gulv Innvendige gulv

Parkett og fliser i våtrom

Innvendige gulvflater

Dører Garasjeport

🧱 Tre/metall

Antall: 1

Garasjeport i garasje

Port til frittstående garasje

Tak Saltak

🧱 Teglstein

Antall: 1

Saltak med takstein, takvindu og takutstikk

Tak på bolig og garasje

VVS Sanitærinstallasjoner

Innvendige og utvendige sanitærinstallasjoner, vannmåler, tilbakeslagsventil iht. NS-EN 1717

Vann- og avløpsinstallasjoner

Fasade Trekledning

🧱 Tre, hvit liggende panel

Klassisk trekledning med pusset sokkel

Fasade på bolig

Elektro Elektrisk installasjon

Elektriske installasjoner iht. gjeldende forskrifter

Elektrisk anlegg i bolig og garasje

Grunnarbeid Terrengarbeid og drenering

Terrengplanering, overvannshåndtering, drenering i henhold til godkjent plan

Opparbeidelse av utearealer og terreng

Vinduer Takvindu

🧱 Tre/aluminium

Antall: 4

Takvindu 55x100 cm, 3-lags energiglass

Takvinduer for dagslys i bad og loftstue

Terrasse Terrasse med trapp

🧱 Tre

Antall: 1

Terrasse med trapp ut fra stue, utvidet repos

Uteplass tilknyttet bolig

Grunnarbeid Overvannshåndtering

Fordrøyningsmagasin, mengderegulator og sandfang på egen eiendom, overvannsledning til kommunalt nett

Overvannshåndtering på tomt

Trapper Innvendige trapper

🧱 Tre/metall

Antall: 3

Trapper mellom etasjer og utvendig trapp til terrasse

Trapper i bolig og utvendig

Betong Ringmur og såle

🧱 Betong med isolasjon

Betongarbeid med radonsikring, ringmur og gulv

Grunnmur og fundamentering

Dører Ytterdører

🧱 Tre

Antall: 10

Ytterdører i bolig og utleiedel, inkludert inngangsdører

Ytterdører for bolig og utleiedel

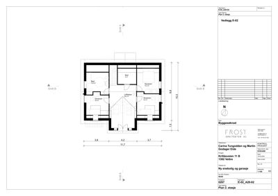
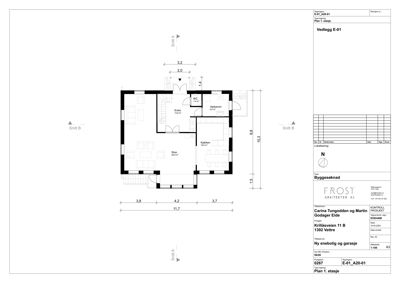
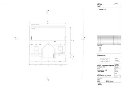
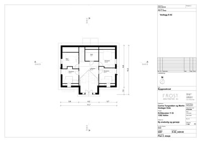
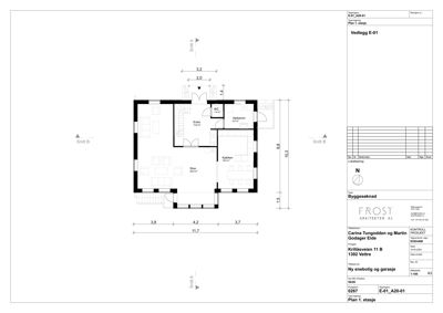
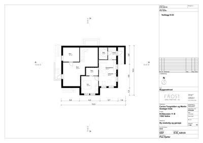
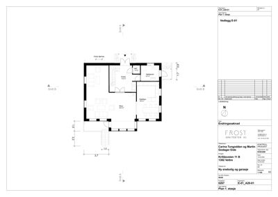
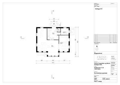
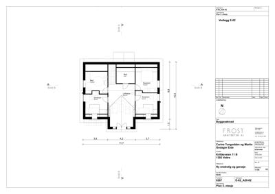
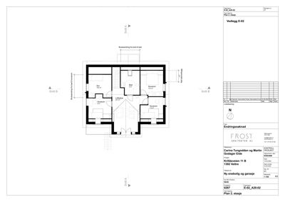
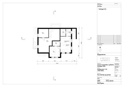
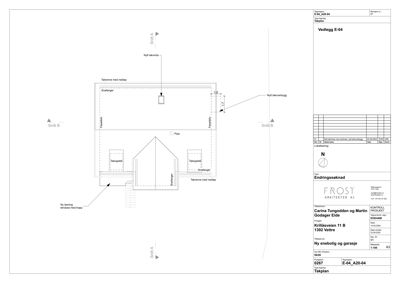
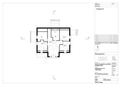
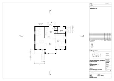
Plantegning

Enebolig 375.1 m²

Etasje 0 120.4 m²

Rom Areal Vinduer Dører
Bod 001 10.1 m² 0 1
Bod 002 34.2 m² 0 1
Bod 003 4.2 m² 0 0
Sov 004 12.8 m² 0 1
Stue/kjøkken 005 19.8 m² 1 1
Utleiedel 006 46.6 m² 1 1
Entre 007 4.2 m² 0 1
Bad 008 4.5 m² 0 1
Bod Bod 10.1 m² 0 1
Soverom Sov 12.8 m² 1 1
Stue/kjøkken Stue/kjøkken 19.8 m² 2 0
Utleiedel Utleiedel 46.6 m² 1 2
Bad Bad 4.5 m² 0 1
Entré Entre 4.2 m² 0 1
Gang K01 15.0 m² 0 2
Bad K02 8.5 m² 0 1
Vaskerom K03 12.0 m² 0 1
Teknisk rom K04 10.0 m² 0 1
Stue K05 35.0 m² 2 1
Sovegang K06 13.4 m² 0 1
Gang 15.2 m² 0 1
Stue 38.7 m² 4 2
Kjøkken 15.0 m² 1 1
Vaskerom 2.6 m² 0 1
Stue KJ01 65.2 m² 2 2
Gang KJ02 15.4 m² 0 3
Vaskerom KJ03 8.2 m² 1 1
Teknisk rom KJ04 5.1 m² 0 1

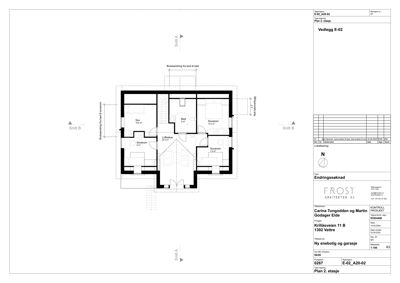
Etasje 2 68.2 m²

Rom Areal Vinduer Dører
Soverom Sov 10.6 m² 1 1
Soverom Soverom 9.0 m² 1 1
Soverom Soverom 10.3 m² 1 1
Soverom Soverom 7.5 m² 1 1
Bad Bad 8.0 m² 0 1
Loftsstue Loftsstue 22.3 m² 0 1
Soverom 201 10.6 m² 1 1
Soverom 202 9.0 m² 1 1
Soverom 203 10.3 m² 1 1
Soverom 204 7.5 m² 1 1
Bad 205 8.0 m² 0 1
Loftsstue 206 22.3 m² 0 2

Etasje 1 92.6 m²

Rom Areal Vinduer Dører
Stue Stue 48.9 m² 3 1
Kjøkken Kjøkken 18.9 m² 2 0
Entre Entre 15.8 m² 0 3
Vaskerom Vaskerom 6.8 m² 1 2
WC WC 1.4 m² 0 1
Stue 101 48.9 m² 3 1
Kjøkken 102 18.9 m² 2 1
Vaskerom 103 6.6 m² 1 1
WC 104 1.4 m² 0 1
Entre 105 15.6 m² 0 2
Stue 48.9 m² 3 1
Kjøkken 18.9 m² 2 0
Vaskerom 6.8 m² 1 1
WC 1.4 m² 0 1
Entre 15.8 m² 0 2
Sovegang 106 6.9 m² 0 1
Stue 48.9 m² 3 1
Kjøkken 18.9 m² 2 0
Vaskerom 6.8 m² 1 1
WC 1.4 m² 0 1
Entre 15.8 m² 0 2
Gang 12.5 m² 0 1
Stue 38.7 m² 4 2
Kjøkken 15.0 m² 1 1
Vaskerom 2.6 m² 0 1

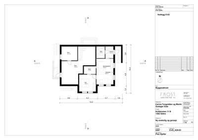
Etasje -1 93.9 m²

Rom Areal Vinduer Dører
Gang 20.5 m² 0 1
Bad 6.8 m² 0 1
Toalett 2.7 m² 0 1
Vaskerom 13.9 m² 1 2
Sovegang 4.0 m² 0 1
Soverom 12.5 m² 2 1
Sovegang 4.0 m² 0 1
Soverom 12.5 m² 2 1

Fasader

Enebolig

Sørøst
Materiale
Tre
Taktype
Saltak
Takmat.
Tegl
Høyde
8.7 m
Mønehøyde
58.3 m
Vinduer
10
Dører
2
Balkonger
1
Synlige etasjer
3
Sørvest
Materiale
Tre
Taktype
Saltak
Takmat.
Tegl
Høyde
6.5 m
Mønehøyde
8.2 m
Vinduer
5
Dører
2
Synlige etasjer
2
Nordøst
Materiale
Tre
Taktype
Saltak
Takmat.
Tegl
Høyde
6.5 m
Mønehøyde
8.2 m
Vinduer
6
Dører
2
Balkonger
1
Synlige etasjer
2
Nordvest
Materiale
Tre
Taktype
Saltak
Takmat.
Tegl
Høyde
5.3 m
Mønehøyde
58.3 m
Vinduer
2
Dører
1
Balkonger
1
Synlige etasjer
1

Hendelser

15.04.2026 59/26 Krillåsveien 11B - Avvik og ulovligheter nok en gang
06.02.2026 59/26 Krillåsveien 11B - Ønsker kontakt for oppklaring rundt situasjon med gravesøknad 1
09.12.2025 59/26 Krillåsveien 11B - Kommunen orienterer
03.12.2025 59/26 Krillåsveien 11B - Tjuvkobling av vann og avløp
30.10.2025 59/26 Krillåsveien 11B - Endringstillatelse
20.10.2025 59/26 Krillåsveien 11B - Søknad om endring av gitt tillatelse
16.10.2025 59/26 Krillåsveien 11B - Søknad om endring av gitt tillatelse
21.08.2025 59/26 Krillåsveien 11B - Klage på byggeaktivitet søndag morgen og formiddag
23.07.2025 59/26 Krillåsveien 11B - Svar på henvendelse vedrørende oppføring av enebolig
15.07.2025 59/26 Krillåsveien 11B - Merknad på oppføring av enebolig
07.03.2025 59/26 Krillåsveien 11B - Igangsettingstillatelse - Nybygg enebolig og garasje
04.03.2025 59/26 Krillåsveien 11B - Oversendelse godkjent innvendig sanitærmelding
04.03.2025 59/26 Krillåsveien 11B - Kommunen etterspør godkjent innvendig sanitær før IG
26.02.2025 59/26 Krillåsveien 11 B - Søknad om igangsettingstillatelse
27.11.2024 59/26 Krillåsveien 11B - Vedrørende utsendelse av godkjent dispensasjon og rammetillatelse
01.11.2024 59/26 Krillåsveien 11B - Godkjent dispensasjon og rammetillatelse
28.10.2024 59/26 Krillåsveien 11B - Søkers tilsvar til ny nabomerknad
26.09.2024 59/26 Krillåsveien 11 B - Tillegg til merknad etter innsendt søknad
08.09.2024 59/26 Krillåsveien 11B - Informasjon om saksbehandling
05.09.2024 59/26 Krillåsveien 11B - Ytterligere purring på saksbehandling
23.08.2024 59/26 Krillåsveien 11 B - Purring på saksbehandling
21.05.2024 59/26 Krillåsveien 11 B - Søknad om nybygg enebolig og garasje