NewConstruction UnderBehandling Enebolig

Ny enebolig med dobbelgarasje på Kvanta 22A, Narvik

📍 Kvanta 22A , 8522 BEISFJORD

Nøkkelinfo

Sakstype
Nybygg
Bygningstype
Enebolig
Bruksareal
244 m²
Boenheter
1
Kommune
Narvik
Fylke
Nordland - Nordlánnda
Gnr / Bnr
44 / 554
Saksnummer
26/1146
Fase
Under behandling

Om byggesaken

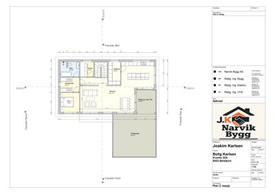
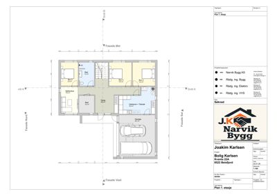
Ny enebolig i to etasjer med totalt bruksareal på ca. 244 m² og bebygd areal på ca. 164 m² oppføres på eiendommen Kvanta 22A i Narvik. Boligen har pulttak med ca. 6 graders takvinkel, avvikende fra reguleringsplanens krav om saltak, og inneholder blant annet fire soverom, to bad, kontor, vaskerom, garasje for to biler, kjellerstue, bod, gangarealer, garderobe, matbod, allrom, balkong med tak og takterrasse. Bygget er tilpasset terrenget med lav gesimshøyde og god visuell tilpasning til nabobebyggelse. Det er etablert veirett og godkjent tilknytning til kommunalt vann- og avløpsnett. Prosjektet inkluderer grunnarbeider, innmåling, VVS- og elektroinstallasjoner, samt uavhengig kontroll av våtrom og lufttetthet.

Produkter og materialer

Bad Bad og våtrom

Antall: 2

Uavhengig kontroll av våtrom er planlagt og utført

Bad i begge etasjer med våtromskontroll

Terrasse Takterrasse og balkong med tak

Antall: 2

Takterrasse på 42,3 m² og balkong med tak på 10,8 m²

Utendørs oppholdsarealer i 2. etasje

Elektro Elektroinstallasjoner

Elektroinstallasjoner i henhold til gjeldende forskrifter

Garasjeport Garasjeport til dobbelgarasje

Antall: 1

Garasjeport til dobbelgarasje på 34,7 m²

Gulv Innvendige gulv

Innvendige gulv i bolig, materialer ikke spesifisert

Rekkverk Rekkverk balkong og takterrasse

Rekkverk på balkong og takterrasse for sikkerhet

Fasade Kledning

🧱 Tre

Trepanel på fasader i alle himmelretninger

Trapper Innvendig trapp

Antall: 1

Innvendig trapp mellom etasjer

Dører Ytterdører og balkongdører

🧱 Tre

Antall: 9

Ytterdører og balkongdører i tre, inkludert dør til garasje og balkong med tak

Tak Pulttak

🧱 Taktekking ikke spesifisert

Antall: 1

Ca. 6 graders takvinkel, avvik fra reguleringsplanens saltakskrav

Pulttak med lav takvinkel for bedre terrengtilpasning og moderne uttrykk

Grunnarbeid Grunnarbeider og innmåling

Inkluderer grunnarbeider og innmåling utført av ansvarlige foretak

Grunnarbeider og innmåling for bygging av enebolig

Vinduer Fasadevindu

🧱 Tre

Antall: 14

Fasadevindu i tre, fordelt på to etasjer med varierende størrelser

Maling Utvendig og innvendig maling

Maling av trepanel og innvendige flater antatt nødvendig

VVS Vann- og avløpsinstallasjoner

Tilkobling til kommunalt vann- og avløpsnett med godkjent tilknytning

VVS-installasjoner inkludert sanitær og tekniske rom

Fasader

Enebolig

Øst
Materiale
Tre
Taktype
Saltak
Vinduer
5
Dører
0
Synlige etasjer
2
Sør
Materiale
Tre
Taktype
Saltak
Vinduer
4
Dører
1
Balkonger
1
Synlige etasjer
2
Vest
Materiale
Tre
Taktype
Saltak
Vinduer
5
Dører
1
Balkonger
1
Synlige etasjer
2
Nord
Materiale
Tre
Taktype
Saltak
Vinduer
2
Dører
0
Synlige etasjer
1

Hendelser

15.04.2026 Søknad dispensasjon fra utnyttelsesgrad gbnr. 44/554
08.04.2026 Mangler ved søknaden - gbnr. 44/554
30.03.2026 Søknad om tillatelse i ett trinn nytt bygg til boligformål gbnr. 44/554 Kvanta 22 a
30.03.2026 Søknad om dispensasjon nytt bygg til boligformål gbnr. 44/554 Kvanta 22 a