NewConstruction Soeknad Enebolig

Ny enebolig med garasje på Lindvollheia 64, Gjerstad

📍 Lindvollheia 64 , 4993 SUNDEBRU

Nøkkelinfo

Sakstype
Nybygg
Bygningstype
Enebolig
Bruksareal
209 m²
Boenheter
1
Kommune
Gjerstad
Fylke
Agder
Gnr / Bnr
3 / 410
Saksnummer
2026/409
Fase
Søknad

Om byggesaken

Ny enebolig på 209 m² BRA med saltak teglstein og trekledning oppføres på Lindvollheia 64 i Gjerstad kommune. Boligen har ett plan med flere rom, inkludert stue/kjøkken/spisestue på 76,3 m², fire soverom, to bad, vaskerom, garderobe og garasje på 23,4 m². Fasadene har til sammen 12 vinduer og 4 dører, og garasjen har egen garasjeport. Bygget har gesimshøyde på 4,2 meter og mønehøyde på 7,8 meter. Det planlegges tilknytning til offentlig vann- og avløpsnett samt kommunal vei med godkjent avkjørsel. Utomhusanlegg inngår i prosjektet.

Produkter og materialer

Dører Ytterdør og garasjeport

🧱 tre eller tilsvarende

Antall: 4

Ytterdører og garasjeport til bolig og garasje

Fasade Trekledning

🧱 Tre

Antall: 1

Trekledning på alle fasader

VVS Rørleggerarbeid

Rørleggerarbeid for bolig

Installasjon av vann og avløp i bolig

Grunnarbeid Tomtearbeid og fundamentering

Støping av såle og ringmur, grunnarbeid for bolig og garasje

Grunnarbeid inkludert fundamentering og tomtearbeid

Tak Saltak med teglstein

🧱 Teglstein

Antall: 1

Saltak tekket med teglstein

Betong Såle og ringmur

🧱 Betong

Støping av såle og ringmur

Betongarbeid for fundamentering

Tømrer Oppføring av bolig og garasje

Alle bygningsmessige arbeider for enebolig og garasje

Tømrerarbeid for oppføring av bolig og garasje

Vinduer Fasadevindu

🧱 tre med 3-lags glass

Antall: 12

Fasadevindu i tre, totalt 12 stk fordelt på alle fasader

Ventilasjon Balansert ventilasjon

Prosjektering og installasjon av balansert ventilasjonsanlegg

Ventilasjonsanlegg for bolig

Plantegning

Enebolig 209.0 m²

Etasje 1 209.0 m²

Rom Areal Vinduer Dører
Stue / kjøkken / spisestue 101 76.3 m² 4 1
Soverom 1 102 22.7 m² 1 1
Soverom 2 103 7.6 m² 1 1
Soverom 3 104 12.5 m² 1 1
Soverom 4 105 13.8 m² 1 1
Gang 106 5.8 m² 0 2
Gang 107 4.5 m² 0 1
Hall 108 16.1 m² 0 1
Hovedbad 109 9.5 m² 0 1
Gjestebad 110 4.7 m² 0 1
Vaskerom / bod / gard. 111 12.2 m² 1 1
Garderobe 112 6.5 m² 0 1
Kjøkkenøy 113 0.0 m² 0 0
Garasje 114 23.4 m² 1 1

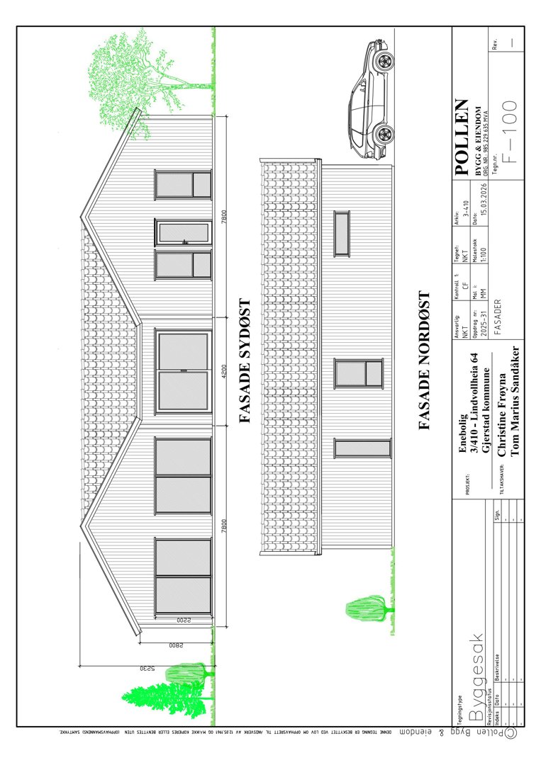
Fasader

Enebolig

Sydøst
Materiale
Tre
Taktype
Saltak
Takmat.
Tegl
Høyde
7.8 m
Vinduer
4
Dører
0
Synlige etasjer
1
Nordøst
Materiale
Tre
Taktype
Saltak
Takmat.
Tegl
Vinduer
2
Dører
0
Synlige etasjer
1
Nordvest
Materiale
Tre
Taktype
Saltak
Takmat.
Tegl
Høyde
4.2 m
Mønehøyde
7.8 m
Vinduer
3
Dører
1
Synlige etasjer
2
Sydvest
Materiale
Tre
Taktype
Saltak
Takmat.
Tegl
Høyde
4.2 m
Mønehøyde
7.8 m
Vinduer
3
Dører
1
Synlige etasjer
2

Hendelser

16.04.2026 Lindvollheia 64 Søknad om rammetillatelse 3/410