NewConstruction Igangsettingstillatelse Enebolig

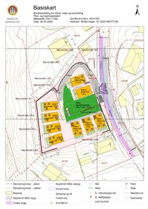
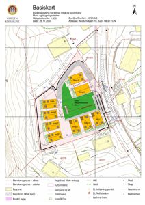
Nybygg av 9 eneboliger med underjordisk garasje i Midtunvegen 18, Bergen

📍 Midtunvegen 18 , 5224 NESTTUN

Nøkkelinfo

Sakstype
Nybygg
Bygningstype
Enebolig
Bruksareal
589 m²
Boenheter
9
Kommune
Bergen
Fylke
Vestland
Gnr / Bnr
43 / 31
Saksnummer
BYGG-2025/12497
Fase
Igangsettingstillatelse

Om byggesaken

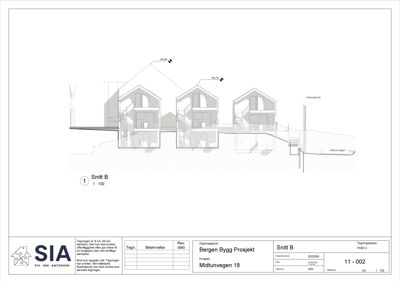
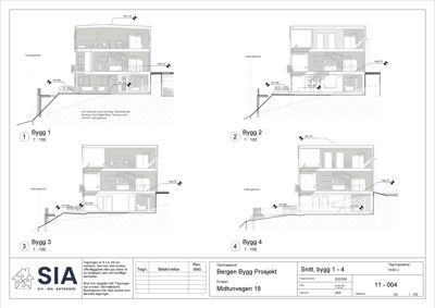
Prosjektet omfatter oppføring av 9 frittliggende eneboliger i to etasjer med saltak, plassert i Midtunvegen 18, Bergen. Byggene har trepanel som fasademateriale og inkluderer balkong på enkelte enheter. Det etableres en underjordisk garasje med 14 bilplasser og 9 sportsboder, samt 31 sykkelparkeringsplasser. Terrenget er kupert med støttemurer i naturstein og betong, og det planlegges tilkomstveier og uteoppholdsarealer. Eksisterende bolig og garasje på tomten rives før byggestart. Prosjektet inkluderer også tiltak for overvannshåndtering og tilknytning til offentlig vann- og avløpsnett. Trafikksikkerhet og avkjørsel er vurdert og godkjent med dispensasjoner fra byggegrenser.

Produkter og materialer

Vinduer Fasadevindu

🧱 Tre med 2- og 3-lags glass

Antall: 22

Vinduer i tre, 2-3 lag energiglass, fordelt på fasader nord, sør, øst og vest

Fasadevinduer til 9 eneboliger i to etasjer

Grunnarbeid Masseutskifting, sprenging og grovplanering

Grunnarbeider inkludert masseutskifting, sprenging og grovplanering av tomten

Forberedelse av tomt for bygging

Tømrer Bygging av boliger og tilhørende konstruksjoner

🧱 Tre og betong

Tømrerarbeid for 9 eneboliger, inkludert tak, vegger, dører og vinduer

Tømrerarbeid for boligene

Bad Sanitærinstallasjoner

Antall: 9

Bad i hver bolig med sanitærutstyr, ikke detaljert spesifisert

Bad i boligene

Gulv Innvendige gulv

Innvendige gulv i boligene, materialvalg ikke spesifisert

Gulv i boliger

Tak Saltak

🧱 Tre konstruksjon med taktekking ikke spesifisert

Antall: 9

Saltak på alle 9 eneboliger

Takstruktur for boligene

Terrasse Balkong

🧱 Tre

Antall: 1

Balkong på enebolig østfasade

Balkong til enebolig

Mur Støttemurer i naturstein og betong

🧱 Naturstein og betong

Støttemurer i naturstein mot nord og betongmurer mot vest, sør og øst

Støttemurer for terrengutjevning og uteområder

VVS Offentlig vann- og avløpstilkopling

Tilknytning til offentlig vann- og avløpsnett med brannkum og overvannshåndtering

Vann- og avløpsinstallasjoner

Elektro Elektriske installasjoner

Elektriske installasjoner i boligene, ikke detaljert spesifisert

El-installasjoner for boligene

Garasjeport Underjordisk garasjeport

Antall: 1

Garasjeanlegg med 14 bilplasser under bakkenivå

Port til underjordisk garasje

Isolasjon Isolasjon i vegger og tak

Isolasjon iht. TEK17 krav for boligstandard

Isolasjon for energieffektivitet og komfort

Fasade Trepanel

🧱 Tre

Antall: 9

Trepanel som fasademateriale på alle boliger

Fasadebekledning for boligene

Ventilasjon Ventilasjonsanlegg

Ventilasjonsanlegg iht. TEK17 krav

Ventilasjon for boligene

Dører Ytterdører og balkongdører

🧱 Tre

Antall: 8

Ytterdører og balkongdører i tre, inkludert balkongdør på enkelte enheter

Ytterdører og balkongdører til boligene

Fasader

Oppriss mur 4

Ukjent
Materiale
Betongstein
Vinduer
0
Dører
0
Synlige etasjer
0

Enebolig

Nord
Materiale
Tre
Taktype
Saltak
Vinduer
3
Dører
1
Synlige etasjer
2
Sør
Materiale
Tre
Taktype
Saltak
Vinduer
3
Dører
0
Synlige etasjer
2
Øst
Materiale
Tre
Taktype
Saltak
Vinduer
5
Dører
1
Balkonger
1
Synlige etasjer
2
Vest
Materiale
Tre
Taktype
Saltak
Vinduer
4
Dører
1
Synlige etasjer
2
Ukjent
Materiale
Tre
Taktype
Saltak
Vinduer
4
Dører
1
Synlige etasjer
2

Oppriss mur 1

Ukjent
Materiale
Mur
Vinduer
0
Dører
0
Synlige etasjer
0

Hendelser

07.04.2026 Igangsettingstillatelse, 43/31, Midtunvegen, IG1
31.03.2026 Midtunvegen 18 Supplering av søknad 43/31
31.03.2026 Behov for tilleggsopplysninger - søknad om IG
28.03.2026 Midtunvegen 18 Søknad om igangsettingstillatelse 43/31
27.03.2026 Samtykke fra Bergen Vann til at det kan gis IG for grovplanering - 43/31/0/0 Midtunvegen 18, nybygg 9 boliger
26.03.2026 Rammetillatelse, 43/31, Midtunvegen 18
25.03.2026 Midtunvegen 18 Supplering av søknad 43/31
24.03.2026 Tilleggsopplysninger - 43/31/0/0 Midtunvegen 18, nybygg 9 boliger
18.03.2026 Behov for tilleggsopplysninger - 43/31/0/0 Midtunvegen 18, nybygg 9 boliger
18.03.2026 UTGÅR
24.02.2026 Byråden omgjør til tillatelse- Klagesak, Fana, gnr. 43, bnr. 31, Midttunvegen 18, klage over avslag på søknad om etablering av 9 einebustader.pdf
22.07.2025 Fakturagrunnlag 2025
22.07.2025 Ubw ordre 20674089 Nybygg bolig avslag
30.06.2025 Vedlagt vedtak
20.06.2025 Avslag på søknad.
10.06.2025 Tilleggsopplysninger- 43/31/0/0 Midtunvegen 18, nybygg 9 boliger
04.06.2025 Tilbakemelding- 43/31/0/0 Midtunvegen 18, nybygg 9 boliger
22.04.2025 Bekreftelse på mottatt søknad
16.04.2025 Midtunvegen 18 Søknad om rammetillatelse 43/31