NewConstruction UnderBehandling Enebolig

Eksisterende enebolig med garasje og uthus på Mørkveien 171

📍 Mørkveien 171 , 1816 SKIPTVET

Nøkkelinfo

Sakstype
Nybygg
Bygningstype
Enebolig
Bruksareal
155 m²
Boenheter
1
Kommune
Skiptvet
Fylke
Østfold
Gnr / Bnr
33 / 34
Saksnummer
2026/272
Fase
Under behandling

Om byggesaken

Eksisterende enebolig oppført rundt år 2000 med totalt 154,9 m² BRA, inkludert kjeller, 1 etasje med teknisk rom, bad, kjøkken, gang, soverom og boder. Bygget har trekonstruksjoner med stripefundamenter i betong og grunnmur i lettklinkerblokker. Taket består av W-takstoler med betongtakstein. På eiendommen finnes også garasje (44,2 m²) med saltak og flatt tak, uthus (ca. 26 m²), og vognskjul (70,6 m²). Alle byggene har tradisjonelle trekonstruksjoner og er fundamentert på fjell og leirholdige masser. Det foreligger avvik mellom faktisk bygningsmasse og kommunens arkiv, og tiltaket omfatter legalisering med dispensasjon fra enkelte TEK17-krav, særlig knyttet til ventilasjon, radon, våtrom og energi. Det er krav om dispensasjon fra kommuneplanens arealdel for BYA og avstand til dyrket mark. Prosjektet inkluderer også oppdaterte situasjonsplaner og gjennomføringsplan.

Produkter og materialer

Dører Ytterdører i tre

🧱 Tre

Ytterdører i tre, slitasje og alder tilsvarende byggeår

Ytterdører til enebolig og tilhørende bygg

Vinduer Fasadevindu med 2-lags glass og malte trekarmer

🧱 Tre

Vinduer med 2-lags glass og malte trekarmer, standard for byggeåret ca. 2000

Vinduer til enebolig og tilhørende bygg med tradisjonelle trekarmer og 2-lags glass

Garasjeport Garasjeport i tre eller metall

Antall: 1

Garasje med garasjeport, saltak og flatt tak med tegl

Garasjeport til garasje på eiendommen

Bad Våtrom med plastsluk og membranløsninger fra ca. 2000

Våtromsløsninger med plastsluk og membran som ikke oppfyller dagens krav, men vanlig for byggeåret

Bad og våtrom i bolig

Tømrer Trebjelkelag etasjeskillere og bindingsverk yttervegger

🧱 Tre

Etasjeskillere i trebjelkelag, bindingsverk i yttervegger

Tømrerarbeid for bærende konstruksjoner og vegger

Tak Saltak med betongtakstein og flatt tak med tegl

🧱 Tre W-takstoler, betongtakstein, tegl

Takkonstruksjon med W-takstoler i tre, undertak og betongtakstein på enebolig; garasje har saltak og flatt tak med tegl

Taktekking og takkonstruksjon for bolig og garasje

Gulv Trebjelkelag med gulv på grunn

🧱 Tre

Etasjeskillere i trebjelkelag, gulv på grunn i kjeller

Gulvkonstruksjoner i bolig

VVS Mekanisk avtrekk ventilasjon

Mekanisk avtrekk med tilluft via ventiler, ikke i henhold til dagens luftmengdekrav

Ventilasjonsanlegg for bolig

Fasade Stående trekledning

🧱 Tre

Yttervegger i bindingsverk med stående trekledning

Fasademateriale for enebolig og uthus

Terrasse Terrasse på terreng

Terrasse på terreng er oppgitt i situasjonsplan

Utendørs terrasseareal

Grunnarbeid Stripefundamenter i betong og grunnmur i lettklinkerblokker

🧱 Betong, lettklinkerblokker

Fundamentering på fjell og leirholdige masser med stripefundamenter og lettklinker grunnmur

Fundamentering og grunnmur for enebolig og tilhørende bygg

Betong Betong stripefundamenter

🧱 Betong

Betong stripefundamenter som fundamentering

Betongfundamenter for bolig og tilhørende bygg

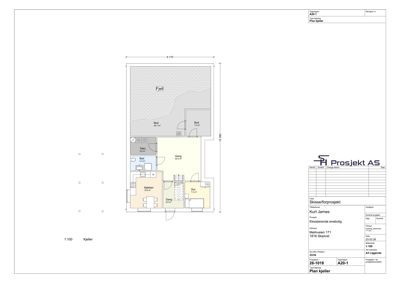
Plantegning

Enebolig 154.9 m²

Etasje 0 154.9 m²

Rom Areal Vinduer Dører
Teknisk rom 001 5.0 m² 0 1
Bad 002 4.3 m² 0 1
Kjøkken 003 12.8 m² 0 1
Gang 004 6.0 m² 0 2
Sov 005 7.3 m² 0 1
Gang 006 20.4 m² 0 2
Bod 007 54.1 m² 0 1
Bod 008 7.3 m² 0 1

Vognskjul 70.6 m²

Etasje 1 70.6 m²

Rom Areal Vinduer Dører
Vognskjul 70.6 m² 4 0

Fasader

Garasje

Nord
Materiale
Tre
Taktype
Flatt tak
Takmat.
Tegl
Høyde
4.2 m
Vinduer
0
Dører
0
Synlige etasjer
1
Vest
Materiale
Tre
Taktype
Saltak
Takmat.
Tegl
Høyde
4.2 m
Vinduer
1
Dører
1
Synlige etasjer
1
Sør
Materiale
Tre
Taktype
Flatt tak
Takmat.
Tegl
Høyde
4.2 m
Mønehøyde
8.2 m
Vinduer
1
Dører
0
Synlige etasjer
1
Øst
Materiale
Tre
Taktype
Saltak
Takmat.
Tegl
Høyde
4.2 m
Mønehøyde
8.2 m
Vinduer
0
Dører
0
Synlige etasjer
1

Hendelser

17.04.2026 Gnr 33 Bnr 34 - Mørkveien 171 - Ny bolig - Foreløpig svar
26.03.2026 Søknad om tillatelse i ett trinn - Gnr 33 Bnr 34 - Mørkveien 171 - Ny bolig