NewConstruction Soeknad Enebolig

Ny enebolig med sekundærleilighet og garasje i Myhrersvingen 43

📍 Myhrersvingen 43A , 2080 EIDSVOLL

Nøkkelinfo

Sakstype
Nybygg
Bygningstype
Enebolig
Bruksareal
252 m²
Boenheter
2
Kommune
Eidsvoll
Fylke
Akershus
Gnr / Bnr
61 / 143
Saksnummer
2026/2257
Fase
Søknad

Om byggesaken

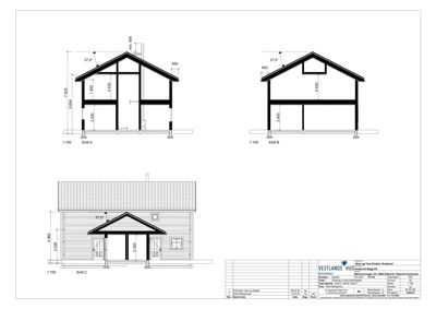
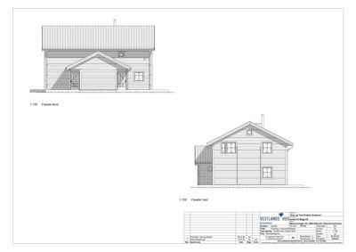
Ny enebolig i to etasjer med liggende trekledning og saltak med 27 graders takvinkel oppføres på Myhrersvingen 43. Boligen inkluderer en separat sekundærleilighet med egen inngang og uteoppholdsareal på minimum 50 m², mens hovedboligen får uteoppholdsareal på minimum 300 m². Det bygges også en frittliggende dobbelgarasje med carport i to etasjer med stående trekledning og saltak med 35 graders takvinkel. Garasjen har parkeringsplass for fire biler, bod og trappeløsning til andre etasje. Eksisterende enebolig og garasje rives. Terrenget planeres med fall bort fra byggene, og det er innhentet nabosamtykke for plassering nærmere enn 4 meter til nabogrense.

Produkter og materialer

Tak Saltak med teglstein

🧱 Teglstein

Saltak bolig 27°, garasje 35° takvinkel, teglstein som takmateriale

Taktekking for bolig og garasje

Grunnarbeid Riving og grunnarbeid

Riving av eksisterende enebolig og garasje, grunnarbeid med graving, sprengning, oppfylling og planering

Riving og grunnarbeid for nybygg

VVS Rørleggerarbeid innvendig og utvendig

Vannforsyning, avløp, sanitærinstallasjoner prosjektert og utført av E & H Rørleggerbedrift AS

VVS-installasjoner for bolig og garasje

Grunnarbeid Drenering og terrengplanering

Terrengplanering med fall 1:50, avskjæringsgrøfter og drenering rundt bygg

Drenering og terrengarbeid

Tømrer Byggeteknikk og montering

Tømrerarbeid for bolig og garasje, inkludert montering av precut vegger og etasjeskiller

Tømrerarbeid for nybygg

Trapper Innvendig trapp i garasje

Antall: 1

Trappeløsning til andre etasje i garasje

Innvendig trapp i garasjeanlegg

Ventilasjon Balansert ventilasjon

Antall: 2

Balansert ventilasjonsanlegg for to boenheter, prosjektert av SYSTEMAIR AS

Ventilasjonsanlegg for bolig og sekundærleilighet

Isolasjon Isolasjon i vegger og tak

Isolasjon iht. TEK for bolig og garasje

Isolasjon for varme og lyd

Garasjeport Garasjeport og carport

Antall: 3

Dobbel garasje, enkel garasje og carport i garasjeanlegg

Porter og åpninger for fire bilplasser i garasje/carport

Elektro Elektriske installasjoner

Elektriske installasjoner i bolig og garasje (antatt iht. standard for boligbygg)

El-installasjoner for nybygg

Betong Gulvplate og grunnmur

Støping av gulvplate, grunnmur og forstøtningsmurer

Betongarbeid for fundamentering og grunnmur

Gulv Innvendige gulvflater

Gulvflater i bolig og sekundærleilighet (antatt parkett og fliser i våtrom)

Innvendige gulvflater

Fasade Trekledning

🧱 Liggende og stående trekledning

Liggende trekledning på bolig, stående trekledning på garasje

Fasademateriale for bolig og garasje

Bad Våtrom med membran og fliser

Antall: 2

Bad med membranlegging og flisarbeider, prosjektert og utført av Gusterud Bygg AS

Bad i bolig og sekundærleilighet

Dører Ytterdører

🧱 Tre eller tilsvarende

Antall: 6

2 dører nord, 2 ukjent, 2 sør på bolig

Ytterdører til bolig, inkludert innganger til hoved- og sekundærleilighet

Mur Forstøtningsmur

🧱 Naturstein og betongstein

Støttemurer av natur- og betongstein under 2 meter

Forstøtningsmurer i uteområder

Maling Innvendig og utvendig maling

Maling av fasade og innvendige overflater (antatt iht. standard boligbygg)

Maling og overflatebehandling

Terrasse Uteoppholdsareal

Uteoppholdsareal på minimum 300 m² for hovedbolig og 50 m² for sekundærleilighet, delvis mot sør og vest/øst

Opparbeidelse av utearealer

Vinduer Fasadevindu

🧱 Tre/aluminium eller tilsvarende

Antall: 11

2 vinduer nord, 4 vest, 2 ukjent, 3 sør på bolig

Fasadevinduer til bolig

Plantegning

Garasje 246.4 m²

Etasje 0 96.4 m²

Rom Areal Vinduer Dører
Bod 201 37.0 m² 0 0

Etasje 1 150.0 m²

Rom Areal Vinduer Dører
Carport 105 18.4 m² 0 0
Garasje 102 31.7 m² 0 0
Bod 104 10.9 m² 0 0
Bod 103 4.2 m² 0 0
Garasje 101 37.5 m² 0 0

Fasader

Enebolig

Nord
Materiale
Tre
Taktype
Saltak
Takmat.
Tegl
Vinduer
2
Dører
2
Synlige etasjer
2
Vest
Materiale
Tre
Taktype
Saltak
Takmat.
Tegl
Vinduer
4
Dører
0
Synlige etasjer
2
Ukjent
Materiale
Tre
Taktype
Saltak
Takmat.
Tegl
Høyde
5.0 m
Mønehøyde
7.9 m
Vinduer
2
Dører
2
Synlige etasjer
2
Sør
Materiale
Tre
Taktype
Saltak
Vinduer
3
Dører
2
Synlige etasjer
2
Øst
Materiale
Tre
Taktype
Saltak
Vinduer
0
Dører
0
Synlige etasjer
1

Hendelser

15.04.2026 Gbnr. 61/143 - Myhrersvingen 43A, 43B - Søknad om tillatelse i ett trinn -