NewConstruction UnderBehandling Enebolig

Ny enebolig med riving av fjøs på Kolstadrovegen 18

📍 Nedre Kolstadrovegen 18 , 2630 RINGEBU

Nøkkelinfo

Sakstype
Nybygg
Bygningstype
Enebolig
Bruksareal
128 m²
Boenheter
1
Kommune
Ringebu
Fylke
Innlandet
Gnr / Bnr
48 / 7
Saksnummer
2026/810
Fase
Under behandling

Om byggesaken

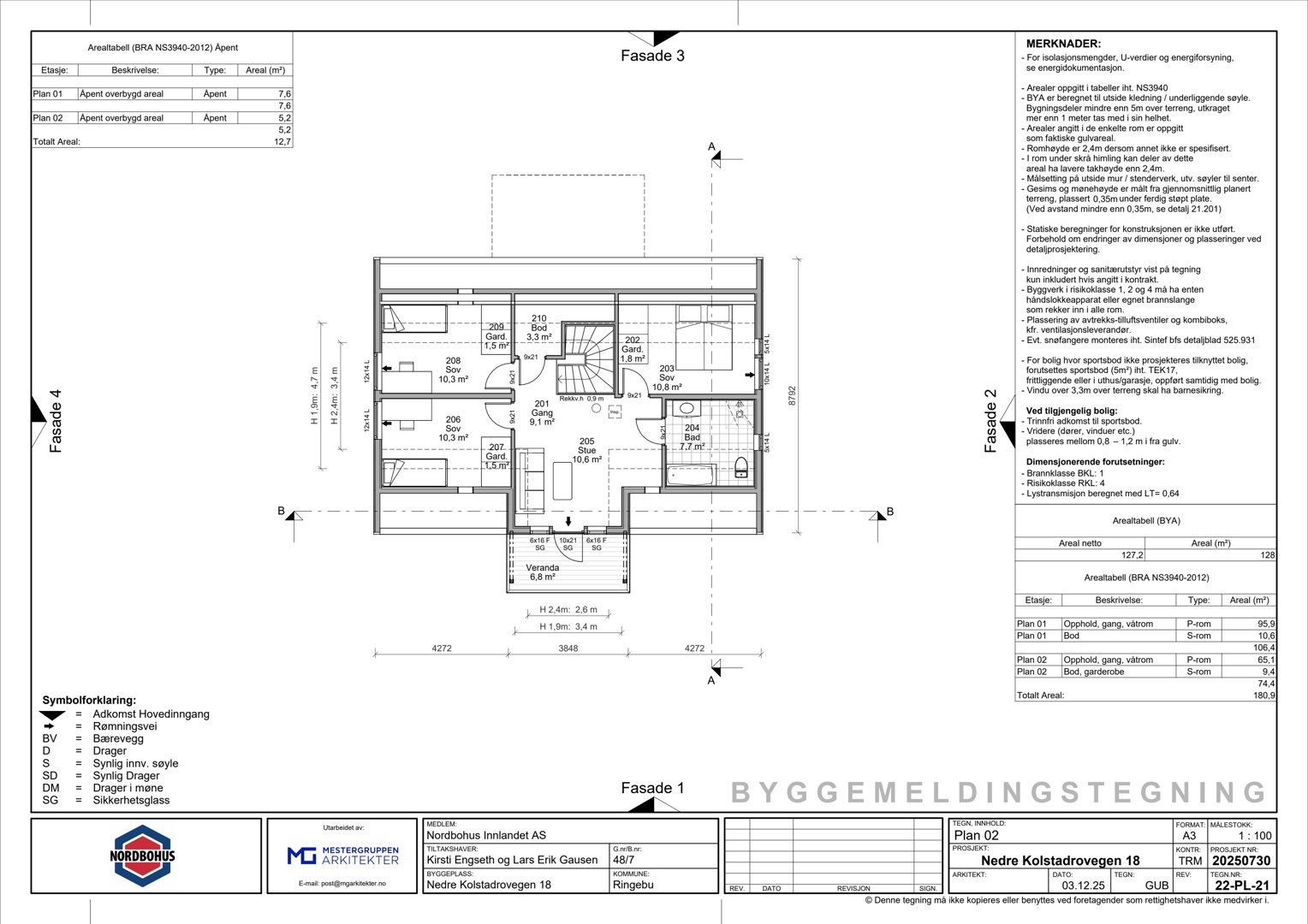
Ny enebolig på 128 m² BRA oppføres på eiendommen Kolstadrovegen 18 i Ringebu, med tradisjonelt saltak med 40 graders takvinkel, reisverk og liggende trekledning, samt sort takstein. Boligen har to etasjer, med trinnfri adkomst og tilgjengelige hovedfunksjoner som stue, kjøkken, bad, teknisk rom, sportsbod og soverom på inngangsplanet. Det planlegges også en framtidig garasje på tomten. Eksisterende driftsbygning/fjøs på ca. 77-250 m² rives. Tomten er på ca. 44 977 m², og ny bebyggelse med parkering vil totalt utgjøre ca. 180 m² BYA, innenfor tillatt areal. Avløpsløsning baseres på privat infiltrasjonsanlegg som må rehabiliteres, med mulighet for tilknytning til kommunalt nett i framtiden. Bygget prosjekteres i henhold til TEK17 og universell utforming.

Produkter og materialer

Vinduer Fasadevindu

🧱 Tre/Aluminium

Antall: 7

Vinduer i fasade, barnesikring på vinduer over 3,3 m over terreng

Fasadevindu i bolig, totalt 7 stk fordelt på to fasader

Grunnarbeid Tomtearbeid og fundamentering

Grunnarbeid for ny bolig og riving av eksisterende driftsbygning

Grunnarbeid inkludert fundamentering for ny bolig

Kjøkken Kjøkkeninnredning

Kjøkkeninnredning iht. boligstandard

Kjøkkeninnredning i bolig

Isolasjon Isolasjon i vegger og tak

Isolasjon iht. TEK17 krav

Isolasjon i vegger, tak og gulv for energikrav

Ventilasjon Mekanisk ventilasjon

Ventilasjonsanlegg med avtrekks- og tilluftsventiler

Ventilasjonsanlegg i bolig

Maling Utvendig og innvendig maling

Maling av treverk utvendig og innvendig

Maling av fasade og innvendige flater

Balkong Balkong med rekkverk

🧱 Tre

Antall: 2

Balkonger på to fasader med rekkverk

To balkonger med rekkverk i tre

Terrasse Overbygget terrasse

🧱 Tre

Åpent overbygd areal på ca. 12,7 m²

Terrasse med overbygg i tilknytning til bolig

Tak Saltak

🧱 Takstein

Saltak med 40 graders takvinkel, sort takstein

Tak med saltak og sort takstein

VVS Avløpsanlegg - infiltrasjon

Privat infiltrasjonsanlegg for avløp, rehabilitering nødvendig, mulighet for tilknytning til kommunalt nett

Avløpsløsning med privat infiltrasjonsanlegg som må rehabiliteres

Elektro Elektrisk anlegg

Elektrisk installasjon iht. TEK17

Elektrisk anlegg i bolig

Tømrer Bygging av reisverk og konstruksjon

🧱 Tre

Reisverk i tre for boligkonstruksjon

Tømrerarbeid for reisverk og konstruksjon

Betong Plate på mark

🧱 Betong

Betongplate under bolig

Betongplate som grunnlag for bolig

Fasade Liggende trekledning

🧱 Tre

Liggende kledning i tre, tradisjonelt uttrykk

Yttervegger med liggende trekledning

Dører Ytterdør

🧱 Tre/Glass

Antall: 2

Hovedinngangsdør og balkongdør

Ytterdører i bolig, inkludert hovedinngang og balkongdør

Gulv Innvendige gulv

Gulv i bolig iht. standard boligutførelse

Innvendige gulv i bolig

Pipe Murpipe

🧱 Mur

Antall: 2

Pipe på to fasader

To piper i mur på bolig

Bad Sanitærutstyr og fliser

Bad med sanitærutstyr iht. TEK17

Bad med standard sanitærutstyr og fliser

Garasjeport Port til framtidig garasje

Antall: 1

Garasjeport planlagt i tilknytning til bolig

Garasjeport til framtidig garasje på tomt

Rekkverk Balkongrekkverk

🧱 Tre

Antall: 2

Rekkverk på balkonger i tre

Rekkverk på to balkonger

Fasader

Enebolig

Sør-vest
Materiale
Tre
Taktype
Saltak
Vinduer
4
Dører
1
Balkonger
1
Synlige etasjer
2
Sør-øst
Materiale
Tre
Taktype
Saltak
Vinduer
3
Dører
1
Balkonger
1
Synlige etasjer
2

Hendelser

13.04.2026 48/7 Søknad om rammetillatelse
16.03.2026 48/7 - Bekreftelse på tilbaketrekking
09.03.2026 48/7 Tilbaketrekking søknad om riving av fjøs, og bygging av bolighus
26.02.2026 Søknad om dispensasjon byggegrense - FV 2204 ved eiendommen 3439-48/7 i Ringebu kommune
16.02.2026 48/7 - Tilbakemelding på søknad om dispensasjon for bolig i LNF
29.01.2026 48/7 Søknad om rammetillatelse