NewConstruction UnderBehandling Enebolig

Ny enebolig med integrert garasje i Neseveien 154, Sirdal

📍 Nesedalen 20 , 4443 TJØRHOM

Nøkkelinfo

Sakstype
Nybygg
Bygningstype
Enebolig
Bruksareal
312 m²
Boenheter
1
Kommune
Sirdal
Fylke
Agder
Gnr / Bnr
7 / 2
Saksnummer
2025/764
Fase
Under behandling

Om byggesaken

Ny enebolig på totalt 311,6 m² BRA fordelt på to etasjer bygges på Neseveien 154 i Sirdal kommune. Boligen har et bebygd areal på 248 m² inkludert integrert garasje på ca. 48,6 m². Bygget har saltak og flatt tak, trekledning, pipe og garasjeport. Planløsningen inkluderer flere soverom, bad, vaskerom, gang, stue og kjøkken, samt terrasse på 13,2 m². Bygget plasseres på kote 532,5 for å sikre flomsikkerhet med 200-års flom inkludert klimapåslag. Det er etablert tilkobling til kommunalt vann- og avløpsnett med godkjent sanitærabonnement. Det er gjennomført skredfarevurdering som konkluderer med tilfredsstillende sikkerhet. Tiltaket har komplett ansvarsrett og uavhengig kontroll for våtrom og tetthet. Det er gitt tillatelse til oppføring med vilkår om innmåling og branntekniske krav.

Produkter og materialer

Trapper Innvendig trapp

Antall: 1

Innvendig trapp mellom etasjer

Vinduer Fasadevindu

🧱 Tre med 3-lags energiglass

Antall: 14

Fasadevinduer i tre med energiglass i ulike størrelser fordelt på to etasjer

Tak Saltak og flatt tak

🧱 Tretak med isolasjon

Antall: 1

Saltak på hoveddel og flatt tak på garasje, med isolasjon og taktekking

Isolasjon Bygningsisolasjon

Isolasjon i vegger, tak og gulv i henhold til TEK17

Isolasjon for varme- og lydisolering i bolig

Grunnarbeid Utgraving og planering

Planering av tomt og utgraving for ringmur og VA-ledninger

Grunnarbeid for bolig og garasje, inkludert utgraving og planering

Grunnarbeid Drenering

Drenering rundt bygning og garasje

Drenering for å sikre bygg mot fukt

Terrasse Terrasse

Antall: 1

Terrasse på 13,2 m² med to vinduer

Utendørs terrasse tilknyttet bolig

VVS Sanitærinstallasjoner og stikkledninger

Tilkobling til kommunalt vann- og avløpsnett, stikkledninger, bunnledninger, takvannsledninger

Sanitærinstallasjoner med tilkobling til kommunalt VA-nett

Bad Sanitærutstyr og våtrom

Våtrom med membran, fliser og sanitærutstyr

Bad med komplett våtromsinnredning

Heis Løfteplattform

Antall: 1

Løfteplattform/heis installert i bolig

Pipe Pipe og ildsted

Antall: 1

Pipe og ildsted i bolig

Rekkverk Terrasserekkverk

Rekkverk på terrasse iht. forskriftskrav

Dører Ytterdører og terrassedør

🧱 Tre

Antall: 8

Ytterdører og terrassedør i tre, inkludert inngangsdør og dør til terrasse

Fasade Trekledning

🧱 Tre

Trekledning på fasader i to etasjer

Gulv Fliser og parkett

Membran og fliser i våtrom, parkett i oppholdsrom

Innvendige gulvflater med membran og fliser i våtrom, parkett i øvrige rom

Betong Ringmur og gulvplate

🧱 Betong med radonsikring

Radonsikring med radonduk

Ringmur og betongplate med radonsikring under bolig og garasje

Garasjeport Integrert garasjeport

Antall: 1

Garasjeport integrert i boligbygget

Maling Innvendig og utvendig maling

Innvendig og utvendig maling av treverk og overflater

Elektro Ventilasjonsanlegg

Balansert ventilasjon med ventilasjonsaggregat

Ventilasjonsanlegg for bolig

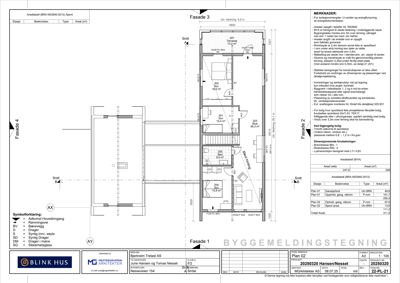
Plantegning

Enebolig 311.6 m²

Etasje 1 200.4 m²

Rom Areal Vinduer Dører
Stue 203 46.3 m² 1 1
Sov 204 13.8 m² 1 1
Bad 205 6.0 m² 0 1
Sov 201 10.4 m² 0 1
Sov 202 16.0 m² 0 1

Etasje 2 111.2 m²

Rom Areal Vinduer Dører
Terrasse 207 13.2 m² 2 0
Sov 201 10.4 m² 0 1
Stue 203 46.3 m² 1 1
Sov 204 13.8 m² 1 1
Bad 205 6.0 m² 0 1
Sov 202 16.0 m² 0 1

Fasader

Enebolig

Nord-øst
Materiale
Tre
Taktype
Saltak
Vinduer
5
Dører
1
Balkonger
1
Synlige etasjer
2
Nord-vest
Materiale
Tre
Taktype
Flatt tak
Vinduer
5
Dører
1
Synlige etasjer
1

Hendelser

15.04.2026 Søknad om ferdigattest - Neseveien gnr. 7 bnr. 2
24.03.2026 svar Supplering av søknad
25.02.2026 Neseveien 154 Supplering av søknad 7/2
19.08.2025 SV: Tillatelse til oppføring av bolig og garasje - Tomas Nesset og June Hansen
19.08.2025 7/2. Tomas Nesset. Sanitærabonnement.
19.08.2025 revidert situasjonskart
19.08.2025 Revidert situasjonsplan for bolig Nesset - Tomas Nesset
19.08.2025 Tillatelse til oppføring av bolig og garasje - Tomas Nesset og June Hansen
19.08.2025 Re: Ferdig høyde gulv garasje
19.08.2025 SV: Ferdig høyde gulv garasje
19.08.2025 7/2. Tomas Nesset og June Hansen. Oppføring av bolig og garasje, Nesset.
21.07.2025 Skrevurdering
21.07.2025 bekreftet mottatt rapport
15.07.2025 SV: Tiltak Nesset -
15.07.2025 søknad om sanitærabonnement
15.07.2025 ansvarsrett påkobling
14.07.2025 bekreftet mottatt søknad
14.07.2025 bekreftet mottatt søknad om sanitærabonnement
14.07.2025 spørsmål om påkobling
14.07.2025 VS: Tiltak Nesset
14.07.2025 bekreftet mottatt tilbakemelding
14.07.2025 Tiltak Nesset
09.07.2025 Søknad om tillatelse i ett trinn 7/2