NewConstruction Igangsettingstillatelse Enebolig

Ny enebolig med riving i Tinghaugvegen 7, Bryne

📍 Ny bustad, 1/150 , 4340 BRYNE

Nøkkelinfo

Sakstype
Nybygg
Bygningstype
Enebolig
Bruksareal
303 m²
Boenheter
1
Kommune
Time
Fylke
Rogaland
Gnr / Bnr
1 / 150
Saksnummer
2025/2584
Fase
Igangsettingstillatelse

Om byggesaken

Ny enebolig på totalt 302,6 m² BRA fordelt på tre etasjer bygges på eiendommen i Tinghaugvegen 7, Bryne. Boligen har to etasjer pluss underetasje, med et bruksareal på 55,1 m² i kjeller, 140,6 m² i 1. etasje og 106,9 m² i 2. etasje. Bygget har saltak og trekledning, med gesimshøyde på ca. 6,5 meter og mønehøyde på ca. 8,2 meter. Fasader har flere vinduer og dører, inkludert balkonger på vest- og nordfasade. Planløsningen inkluderer flere soverom, bad, stuer, vaskerom, garderobe, bod og en takterrasse på 35,1 m². Det er også tilrettelagt for to hybler. Bygget erstatter en eksisterende bolig som rives, og er plassert 2 meter lenger inn på tomten for bedre bokvalitet og driftssikkerhet. Prosjektet inkluderer også grunnarbeid, betongarbeid, tømrerarbeid, sanitær, elektro, ventilasjon og landskapsarbeid.

Produkter og materialer

Maling Innvendig maling

Maling av vegger og tak innvendig

Innvendig maling av vegger og tak

Grunnarbeid Tomtearbeid og drenering

Grunnarbeid, drenering og overvannshåndtering

Grunnarbeid og drenering for ny bolig

Mur Murmesterarbeid

🧱 Mur

Murarbeid i grense mot nabo

Murarbeid for grensevegg og fundament

Isolasjon Bygningsisolasjon

Isolasjon i vegger, tak og gulv iht. TEK17

Isolasjon for varme- og lydisolering

Gulv Innvendige gulv

🧱 Parkett og fliser

Gulvbelegg i stue, soverom og våtrom

Innvendige gulv med parkett og fliser i våtrom

Dører Ytterdører og terrassedører

🧱 Tre

Antall: 12

Ytterdører og terrassedører i tre, inkludert dører til balkonger og terrasser

Ytterdører og terrassedører til bolig og hybler

VVS Sanitærinstallasjoner

Sanitærinstallasjoner for bad, dusj/wc, vaskerom

Sanitærinstallasjoner for boligens våtrom

Fasade Trekledning

🧱 Tre

Trekledning på alle fasader

Trekledning som ytterkledning på bolig

Trapper Innvendig trapp

🧱 Tre eller betong

Antall: 1

Innvendig trapp mellom etasjer

Innvendig trapp for adkomst mellom kjeller, 1. og 2. etasje

Elektro Elektriske installasjoner

Elektriske installasjoner i bolig

Elektroinstallasjoner for bolig

Betong Kjeller og fundament

🧱 Betong

Plasstøpte betongkonstruksjoner for kjeller og fundament

Betongarbeid for kjeller og fundament

Tak Saltak

🧱 Tre og taktekking

Antall: 1

Saltak med gesimshøyde ca. 6,5 m og mønehøyde ca. 8,2 m

Saltak med trekonstruksjon og taktekking

Terrasse Takterrasse

🧱 Tre

Antall: 1

Takterrasse på 35,1 m² i 2. etasje

Takterrasse i 2. etasje med tredekke

VVS Vannforsynings- og avløpsanlegg

Vann- og avløpsanlegg tilkoblet offentlig nett

Vannforsyning og avløp til bolig

Ventilasjon Ventilasjonsanlegg

Ventilasjon og klimainstallasjoner

Ventilasjonsanlegg for bolig

Vinduer Fasadevindu

🧱 Tre med 3-lags energiglass

Antall: 21

Flere typer vinduer i ulike størrelser, inkludert L/F og F typer, f.eks. L/F10x21, F10x21

Fasadevindu i tre med energiglass til stuer, soverom og andre rom

Riving Riving av eksisterende bolig

Riving av eksisterende bolig på tomten

Riving av eksisterende bolig før nybygg

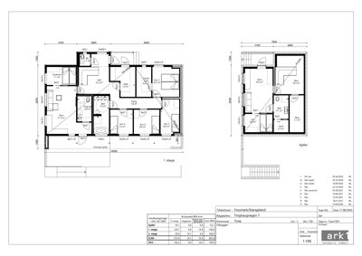
Plantegning

Enebolig 302.6 m²

Etasje 0 55.1 m²

Rom Areal Vinduer Dører
Stue 101 16.5 m² 1 1
Bod 102 14.5 m² 0 1
Bod 103 7.1 m² 0 1
Bad 104 4.7 m² 0 1
Gard 105 2.4 m² 0 1

Etasje 1 140.6 m²

Rom Areal Vinduer Dører
Stue 101 21.3 m² 1 1
Soverom 102 7.1 m² 1 1
Hall 103 12.2 m² 0 2
Vask 104 7.9 m² 0 1
Gang 105 7.8 m² 0 3
Bad 106 7.9 m² 0 2
Dusj/wc 107 4.8 m² 0 1
Sov 3 108 8.4 m² 1 1
Sov 4 109 8.4 m² 1 1
Sov 5 110 7.4 m² 1 1
Garderobe 111 6.0 m² 0 1
Sov 2 112 10.7 m² 1 1

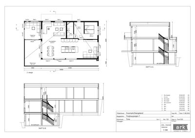
Etasje 2 106.9 m²

Rom Areal Vinduer Dører
Stue 201 14.1 m² 1 1
Sov 3 202 6.8 m² 1 1
Bad 203 5.1 m² 0 1
Gard 204 7.6 m² 0 0
Sov 1 205 10.4 m² 1 1
Takterrasse 206 35.1 m² 0 0

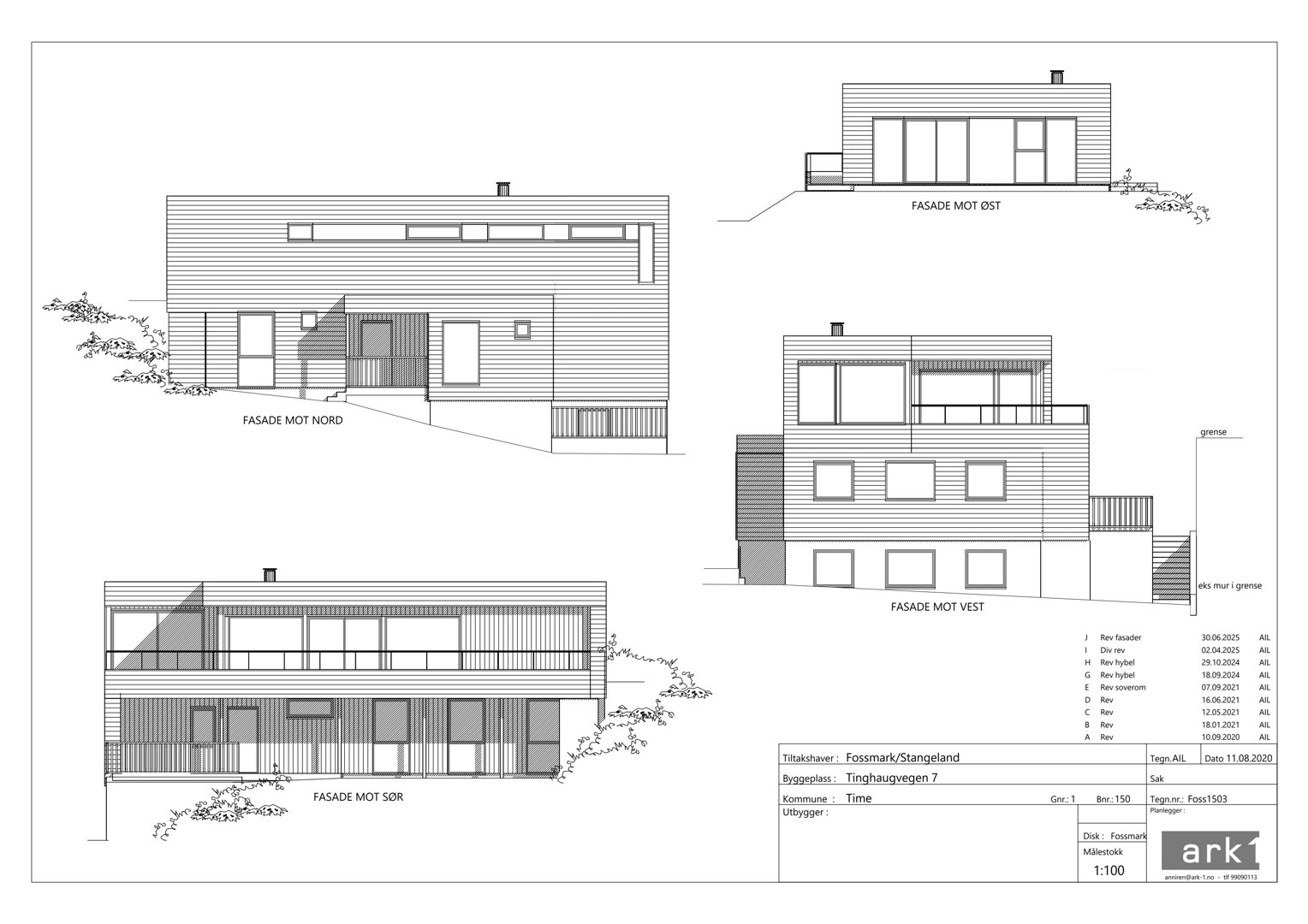
Fasader

Enebolig

Vest
Materiale
Tre
Taktype
Saltak
Høyde
6.5 m
Mønehøyde
8.2 m
Vinduer
5
Dører
1
Balkonger
1
Synlige etasjer
2
Sør
Materiale
Tre
Taktype
Saltak
Høyde
6.5 m
Mønehøyde
8.2 m
Vinduer
4
Dører
1
Synlige etasjer
2
Nord
Materiale
Tre
Taktype
Saltak
Høyde
6.0 m
Mønehøyde
8.0 m
Vinduer
4
Dører
1
Balkonger
1
Synlige etasjer
2
Øst
Materiale
Tre
Taktype
Saltak
Høyde
3.4 m
Vinduer
3
Dører
1
Synlige etasjer
1

Hendelser

16.04.2026 Tilbakemelding om bestridelse av faktura
16.03.2026 Delvis avslag på innsynsforespørsel - dok 25/2584-9
09.03.2026 Innsynsbegjæring - Overkjørt av Time kommune vedlegg
04.03.2026 Overkjørt av Time kommune
29.08.2025 Igangsettingstillatelse for riving og oppføring av ny enebolig. Gnr. 1 bnr. 150, Tinghaugvegen 7
29.08.2025 Oppdatert gjennomføringsplan
21.08.2025 Tinghaugvegen 7 Søknad om igangsettingstillatelse 1/150
07.07.2025 Tilbakemelding om mangler
07.07.2025 Tinghaugvegen 7 Nabovarsel 1/455
07.07.2025 Supplerende dokumentasjon
07.07.2025 Dispensasjon og rammetillatelse til riving og oppføring av ny bolig. Gnr. 1 bnr. 150, Tinghaugvegen 7
03.07.2025 Tinghaugvegen 7 Søknad om rammetillatelse 1/150