NewConstruction UnderBehandling Enebolig

Ny enebolig med garasje i Nygårdsvikveien 38, Bergen

📍 Nygårdsvikveien 38 , 5165 LAKSEVÅG

Nøkkelinfo

Sakstype
Nybygg
Bygningstype
Enebolig
Bruksareal
162 m²
Boenheter
1
Kommune
Bergen
Fylke
Vestland
Gnr / Bnr
149 / 162
Saksnummer
BYGG-2026/00944
Fase
Under behandling

Om byggesaken

Ny enebolig på ca. 162,5 m² BRA fordelt på tre etasjer med klassisk arkitektur og saltak oppføres på eiendommen i Nygårdsvikveien 38. Boligen erstatter en eksisterende tomannsbolig som rives. Bygget har betongkonstruksjoner i underetasjen og tradisjonell trekonstruksjon i øvrige etasjer, med hvit trekledning og detaljer i klassisk stil. Det etableres en frittstående garasje på ca. 39 m² med hems. Tomten på 905 m² er skrånende og terrengtilpasning skjer med gråsteinsmurer og bevaring av eksisterende trær og vegetasjon. Det er planlagt uteoppholdsarealer, altaner og tilstrekkelig parkeringsplasser på egen grunn. Overvannshåndtering ivaretas med infiltrasjon og fordrøyning i kummer. Prosjektet har fått dispensasjon for høyde og parkeringskrav, og er under behandling i kommunen.

Produkter og materialer

Vinduer Fasadevindu

🧱 Tre med 3-lags energiglass

Antall: 21

Fasadevinduer i tre, 3-lags energiglass, fordelt på fasader nord (5), vest (8), øst (6), sør (2)

Vinduer til eneboligens fasader i tre med energiglass for god isolasjon

Gulv Innvendige gulv

Ikke spesifisert, men bolig av normal standard med flere rom som stue, kjøkken, bad, vaskerom etc.

Innvendige gulv i bolig

Fasade Trekledning

🧱 Malt hvit trepanel

Antall: 1

Tradisjonell hvit trekledning med ornamenter i klassisk stil

Fasadebekledning for eneboligen

Mur Gråsteinsmurer

🧱 Gråstein

Gråsteinsmurer i terreng for terrengtilpasning, høyde opptil 1 meter

Terrengmurer for tilpasning av skrånende tomt

Elektro Balansert ventilasjon

Balansert ventilasjonsanlegg installeres i henhold til TEK17

Ventilasjonsanlegg for bolig

Garasjeport Port til frittstående garasje

🧱 Tre eller tilsvarende

Antall: 1

Garasjeport til frittstående garasje på ca. 39 m²

Garasjeport for biloppstilling

VVS VA-anlegg og overvannshåndtering

Privat vann- og avløpsstikkledning, lokal overvannshåndtering med infiltrasjon og fordrøyning i kummer

Vann- og avløpsinstallasjoner samt overvannsløsninger

Terrasse Uteplasser og altaner

Flere altaner og uteplasser, inkludert horisontalt grøntområde på ca. 50 m²

Uteoppholdsarealer tilknyttet bolig

Tømrer Trekonstruksjoner

🧱 Tre

Tradisjonell trekonstruksjon for boligkropp og tak

Bærekonstruksjoner i tre for bolig og tak

Dører Ytterdører og terrassedører

🧱 Tre

Antall: 10

Ytterdører og terrassedører i tre, inkludert inngangsdør, bi-inngang og dører til uteplasser

Ytterdører og terrassedører til bolig og garasje

Betong Fundament og underetasje

🧱 Betong

Betongkonstruksjoner i underetasjen og dekke i hovedetasjen

Betongfundament og dekker for eneboligen

Rekkverk Sikringsrekkverk på murer og terrasser

Rekkverk på murer og uteplasser for sikkerhet

Sikringsrekkverk for uteområder

Bad Bad og WC

Antall: 2

Bad på ca. 11,6 m² og WC på 2 m² med fuktsikring og våtromsstandard

Sanitærinstallasjoner og våtromsarbeid

Tak Saltak

🧱 Takstein eller tilsvarende

Antall: 1

Saltak med valmet og saltak-form, tradisjonell utførelse i tråd med klassisk arkitektur

Taktekking for eneboligen med saltak

Grunnarbeid Terrengarbeid og sprengning

Terrengarbeid med sprengning og masseutskifting, tilpasning til kupert tomt med berg i dagen

Grunnarbeid for ny bolig og garasje

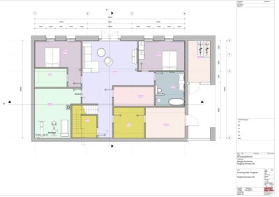
Plantegning

Enebolig 162.5 m²

Etasje 1 162.5 m²

Rom Areal Vinduer Dører
Stue 101 36.0 m² 2 1
Spisestue 102 25.7 m² 2 2
Kjøkken 103 17.7 m² 2 1
Hall 104 20.2 m² 0 2
Bi-inngang 105 13.8 m² 0 1
Bod 106 3.1 m² 0 1
Gard 107 1.0 m² 0 1
WC 108 2.0 m² 0 1
Vaskerom/Gard 109 23.9 m² 1 1
Bod 110 2.0 m² 0 1

Fasader

Enebolig

Nord
Materiale
Tre
Taktype
Saltak
Vinduer
5
Dører
1
Balkonger
2
Synlige etasjer
2
Vest
Materiale
Tre
Taktype
Saltak
Vinduer
8
Dører
2
Balkonger
1
Synlige etasjer
2
Øst
Materiale
Tre
Taktype
Saltak
Vinduer
6
Dører
1
Balkonger
2
Synlige etasjer
2
Sør
Materiale
Tre
Taktype
Saltak
Vinduer
2
Dører
1
Balkonger
1
Synlige etasjer
2

Hendelser

16.04.2026 Nygårdsvikveien 38 Supplering av søknad 149/162
10.04.2026 Fremdrift i sak
23.02.2026 Saken settes på vent - 149/162/0/0 Nygårdsvikveien 38, nytt bygg - Boligformål
23.02.2026 Anmodnign om at saken legges i bero - 149/162/0/0 Nygårdsvikveien 38, nytt bygg - Boligformål
20.02.2026 Svar på tilbakemelding - 149/162/0/0 Nygårdsvikveien 38, nytt bygg - Boligformål
19.02.2026 Bekrefter mottatt mangelbrev- 149/162/0/0 Nygårdsvikveien 38, nytt bygg - Boligformål
19.02.2026 Tilbakemelding og mangler meddelt - 149/162/0/0 Nygårdsvikveien 38, nytt bygg - Boligformål
11.02.2026 Bekreftelse på mottatt søknad
10.02.2026 Nygårdsvikveien 38 Søknad om rammetillatelse 149/162