NewConstruction UnderBehandling Enebolig

Riving og nybygg av bryggerhus i Ombergveien 49B, Fredrikstad

📍 Ombergveien 49A , 1661 ROLVSØY

Nøkkelinfo

Sakstype
Nybygg
Bygningstype
Enebolig
Bruksareal
115 m²
Kommune
Fredrikstad
Fylke
Østfold
Gnr / Bnr
733 / 1
Saksnummer
2025/31612
Fase
Under behandling

Om byggesaken

Nyoppføring av bryggerhus på 115 m² fordelt på to etasjer, med samme volum, høyde og plassering som eksisterende bygg. Bygget får hvit stående kledning, teglsteinstak og to-fags koblede vinduer i tradisjonell stil. Nybygget erstatter et teknisk dårlig og råteskadet bryggerhus med ustabil granittmur, og fundamenteres på nytt med støpte fundamenter for varig stabilitet. Innvendig inneholder bygget gang, stue/oppholdsrom, bod, soverom og bad, og oppfyller TEK17-krav til isolasjon, lufttetthet og energi. Tiltaket opprettholder arkitektonisk uttrykk og tunets helhet, samtidig som det gir bedre sikkerhet, holdbarhet og energieffektivitet.

Produkter og materialer

Vinduer To-fags koblede vinduer

🧱 Tre med 3-lags energiglass

Antall: 5

To-fags koblede vinduer i hvit utførelse, energieffektive i henhold til TEK17

Nye vinduer for bedre lysinnslipp og energieffektivitet, uten å endre byggets karakter

Grunnarbeid Fundamentering

🧱 Betong med armering

Nye støpte fundamenter på bærekraftig underlag med frostsikring

Fundamenter for stabil og varig grunnmur, erstatter ustabil granittmur

Tak Saltak med teglstein

🧱 Teglstein

Tak tekket med teglstein, saltakform som eksisterende

Nytt saltak tekket med teglstein for å matche eksisterende bygg

Bad Bad med sanitærutstyr

Antall: 1

Bad på 8 m² med vask og sanitærutstyr

Nytt bad i 2. etasje for funksjonell sekundærbolig

Dører Innvendige og ytterdører

Antall: 9

Dører til rom og utgang, inkludert 2 ytterdører

Dører for romavgrensning og utgang, i henhold til plan

Ventilasjon Mekanisk ventilasjon

Ventilasjon i henhold til TEK17 for boligformål

Ventilasjon for godt inneklima og energikrav

Elektro Elektrisk anlegg

Elektrisk installasjon i henhold til gjeldende forskrifter

Elektrisk anlegg for belysning, strøm og sikkerhet

Isolasjon Vegger, tak og gulv

🧱 Isolasjonsmateriale i henhold til TEK17

Isolasjon for å oppnå TEK17-krav til U-verdier og energieffektivitet

Isolasjon som reduserer energibruk og forbedrer bokomfort

Tømrer Bærekonstruksjoner tak og vegger

🧱 Treverk i henhold til TEK17

Nye takstoler og bjelker med krav til bæreevne og varighet

Bærekonstruksjoner som sikrer lang levetid og reduserer vedlikehold

Fasade Panelkledning

🧱 Hvit stående trepanel

Hvit stående kledning i tradisjonell stil for bryggerhus

Ytterkledning i hvit stående trepanel for å bevare tradisjonelt uttrykk

Mur Granittmur gjenbruk

🧱 Granitt

Eksisterende granittmur gjenbrukes der mulig

Gjenbruk av eksisterende granittmur for miljøgevinst og bevaring av uttrykk

Gulv Innvendige gulv

Gulv i oppholdsrom og soverom, isolert og i henhold til TEK17

Gulv som tilfredsstiller krav til isolasjon og komfort

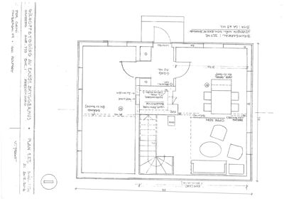
Plantegning

Enebolig 33.7 m²

Etasje 1 33.7 m²

Rom Areal Vinduer Dører
Opph. rom 101 30.0 m² 1 1
Gang 102 3.5 m² 0 2
Bakerovn 103 0.2 m² 0 1
Mureruger 104 0.0 m² 0 0
Mureruger 105 0.0 m² 0 0
Bæring 106 0.0 m² 0 0

Bryggerhus 115.0 m²

Etasje 2 115.0 m²

Rom Areal Vinduer Dører
Kott 201 0.0 m² 0 1
Gang 202 9.5 m² 0 1
Bad/Vask 203 8.0 m² 0 1
Bod 204 4.7 m² 0 1
Kott 205 0.0 m² 0 1
Kott 206 0.0 m² 0 1
Garderobe 207 0.0 m² 0 1
Åpent ned 208 0.0 m² 0 0
Sov 209 11.5 m² 0 1

Fasader

Bryggerhus

Vest
Materiale
Panel
Taktype
Saltak
Vinduer
3
Dører
0
Synlige etasjer
2
Sør
Vinduer
2
Dører
1
Synlige etasjer
1
Nord
Vinduer
0
Dører
0
Synlige etasjer
0

Hendelser

20.04.2026 Tilleggsopplysninger - Ombergveien 49B - Eiendom 733/1
16.04.2026 Tilleggsopplysninger - Ombergveien 49B - Eiendom 733/1
16.04.2026 Tilbakemelding på e-post av 23.01.26 - Ombergveien 49B - Eiendom 733/1
09.01.2026 Foreløpig tilbakemelding riving/nybygg bryggerhus - Ombergveien 49B - Eiendom 733/1
05.12.2025 Foreløpig uttalelse - Riving/nybygg anneks - Ombergveien 49B - Eiendom 733/1
18.11.2025 Uttalelse fra miljø og landbruk - Riving/nybygg bryggerhus - Eiendom 733/1
13.11.2025 Anmodning om uttalelse - Riving/nybygg bryggerhus - Eiendom 733/1
13.11.2025 Anmodning om uttalelse - Riving/nybygg anneks - Ombergveien 49B - Eiendom 733/1
21.10.2025 Bekreftelse på mottatt søknad - Nybygg - boligformål, Riving av bygning inntil 70 m² - Ombergveien 49B - Eiendom 733/1
21.10.2025 Rammesøknad - Ombergveien 49B - Eiendom 733/1 - Nybygg - boligformål, Riving av bygning inntil 70 m²