NewConstruction UnderBehandling Enebolig

Ny enebolig med frittliggende garasje i Opalveien 5, Arendal

📍 Opalveien 5 , 4823 NEDENES

Nøkkelinfo

Sakstype
Nybygg
Bygningstype
Enebolig
Bruksareal
175 m²
Boenheter
1
Kommune
Arendal
Fylke
Agder
Gnr / Bnr
457 / 428
Saksnummer
2025/22119
Fase
Under behandling

Om byggesaken

Ny enebolig i én etasje med bruksareal på 175 m² oppføres i tradisjonelt reisverksbygg i tre med saltak. Ytterkledningen består av stående, royalimpregnert trekledning, og taket tekkes med flate betongtakstein. Boligen har flere soverom, bad, vaskerom, kjøkken og stue med store vindusflater av tre med utvendig alubekledning. Det etableres vannbåren varme med energibrønn. Frittliggende garasje bygges i to etasjer med bruksareal på 51,8 m², i samme materialer og taktype som boligen. Garasjen har gesimshøyde ca. 3,17 m og mønehøyde ca. 5,53 m. Bygget plasseres med minimum 4 meter til nabogrensene, unntatt mot sør hvor det gis dispensasjon for 2 meter avstand mot friområde. Totalt bebygd areal for eiendommen blir 253 m². Boligen har trinnfri adkomst og sportsbod på minimum 5 m² i tilknytning til garasje eller som separat uthus.

Produkter og materialer

Tømrer Reisverkskonstruksjon i tre

🧱 Tre

Tømrerarbeid med montering av trekonstruksjoner for bolig og garasje

Betong Støpt plate på mark

🧱 Betong

Støpt plate på mark som fundament for bolig og garasje

Tak Saltak med flate betongtakstein

🧱 Betongtakstein

Flate betongtakstein

Saltak på bolig og garasje tekket med flate betongtakstein

Garasjeport Garasjeport i garasje

Antall: 1

Garasjeport i frittliggende garasje

Fasade Stående royalimpregnert trekledning

🧱 Royalimpregnert tre

Ytterkledning i stående royalimpregnert trekledning på bolig og garasje

Ventilasjon Ventilasjonsanlegg med avtrekks- og tilluftsventiler

Ventilasjonsanlegg med plassering av avtrekks- og tilluftsventiler iht. leverandør

Grunnarbeid Grunnarbeider, VA, innmåling og utskifting

Grunnarbeid og VA-installasjoner for bolig og garasje

VVS Sanitær og vannbåren varme installasjon

Vannbåren varme med energibrønn

Installasjon av sanitærutstyr og vannbåren varme system med energibrønn

Vinduer Fasadevindu med trekarmer og utvendig alubekledning

🧱 Tre med aluminiumsbekledning

Antall: 14

Vinduer i boligen med trekarmer og utvendig alubekledning, fordelt på flere rom

Annet Sportsbod

Antall: 1

Minst 5 m², frittliggende eller tilknyttet garasje

Sportsbod iht. TEK17 krav, etablert separat eller i tilknytning til garasje

Bad Sanitærutstyr og membran

Bad med sanitærutstyr, membran og sluk iht. kontrollplan

Dører Ytterdører og innerdører i tre

🧱 Tre

Antall: 14

Ytterdører og innerdører i boligen og garasje

Gulv Innvendige gulvflater

Innvendige gulv i bolig, inkludert bad, vaskerom og øvrige rom

Trapper Innvendig trapp i bolig

Antall: 1

Innvendig trapp i eneboligen

Pipe Pipe i bolig

Antall: 1

Pipe i eneboligen

Rekkverk Rekkverk ved trapper

Antall: 1

Rekkverk til trapp i bolig

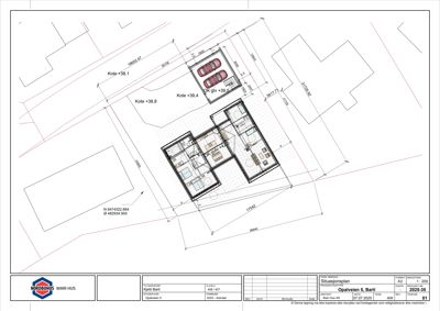
Plantegning

Enebolig 175.0 m²

Etasje 1 175.0 m²

Rom Areal Vinduer Dører
Gang 101 9.7 m² 0 4
Soverom 102 10.6 m² 1 1
Bad 103 6.5 m² 0 1
Soverom 104 8.9 m² 1 1
Stue 105 36.3 m² 2 1
Kjøkken 106 35.0 m² 1 1
Vaskerom 107 8.2 m² 0 1
Bad 108 4.7 m² 0 1
Soverom 109 15.6 m² 1 1
Bad 110 6.4 m² 0 1
W.I.C 111 6.1 m² 0 1
Soverom 112 11.4 m² 1 1

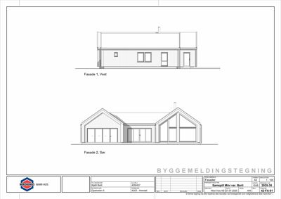
Fasader

Garasje

Ukjent
Materiale
Tre
Taktype
Saltak
Høyde
5.7 m
Vinduer
1
Dører
0
Synlige etasjer
1

Enebolig

Vest
Materiale
Tre
Taktype
Saltak
Vinduer
4
Dører
1
Synlige etasjer
2
Sør
Materiale
Tre
Taktype
Saltak
Vinduer
4
Dører
1
Synlige etasjer
2
Øst
Materiale
Tre
Taktype
Saltak
Vinduer
3
Dører
1
Synlige etasjer
1
Nord
Materiale
Tre
Taktype
Saltak
Vinduer
4
Dører
2
Synlige etasjer
1

Hendelser

20.04.2026 Manglende oversendelse til matrikkel
20.04.2026 Svar på henvendelse mottatt 17.04.2026 - 428/457 - Opalveien 5 - nytt bygg - boligformål - enebolig med frittliggende garasje
17.04.2026 428/457 - Vedrørende bygg under oppføring - energitiltak - registrering i matrikkelen
14.10.2025 Fakturagrunnlag
09.10.2025 TILLATELSE TIL TILTAK - 428/457/0/0 - Opalveien 5 - Enebolig med frittliggende garasje
12.08.2025 Opalveien 5, melding om mottatt søknad
11.08.2025 Opalveien 5 Søknad om tillatelse i ett trinn 428/457