NewConstruction Soeknad Enebolig

Ny enebolig med riving på Opsalvegen 47, Syvde

📍 Opsalvegen 47 , 6140 SYVDE

Nøkkelinfo

Sakstype
Nybygg
Bygningstype
Enebolig
Bruksareal
125 m²
Boenheter
1
Kommune
Vanylven
Fylke
Møre og Romsdal
Gnr / Bnr
80 / 9
Saksnummer
2026/404
Fase
Søknad

Om byggesaken

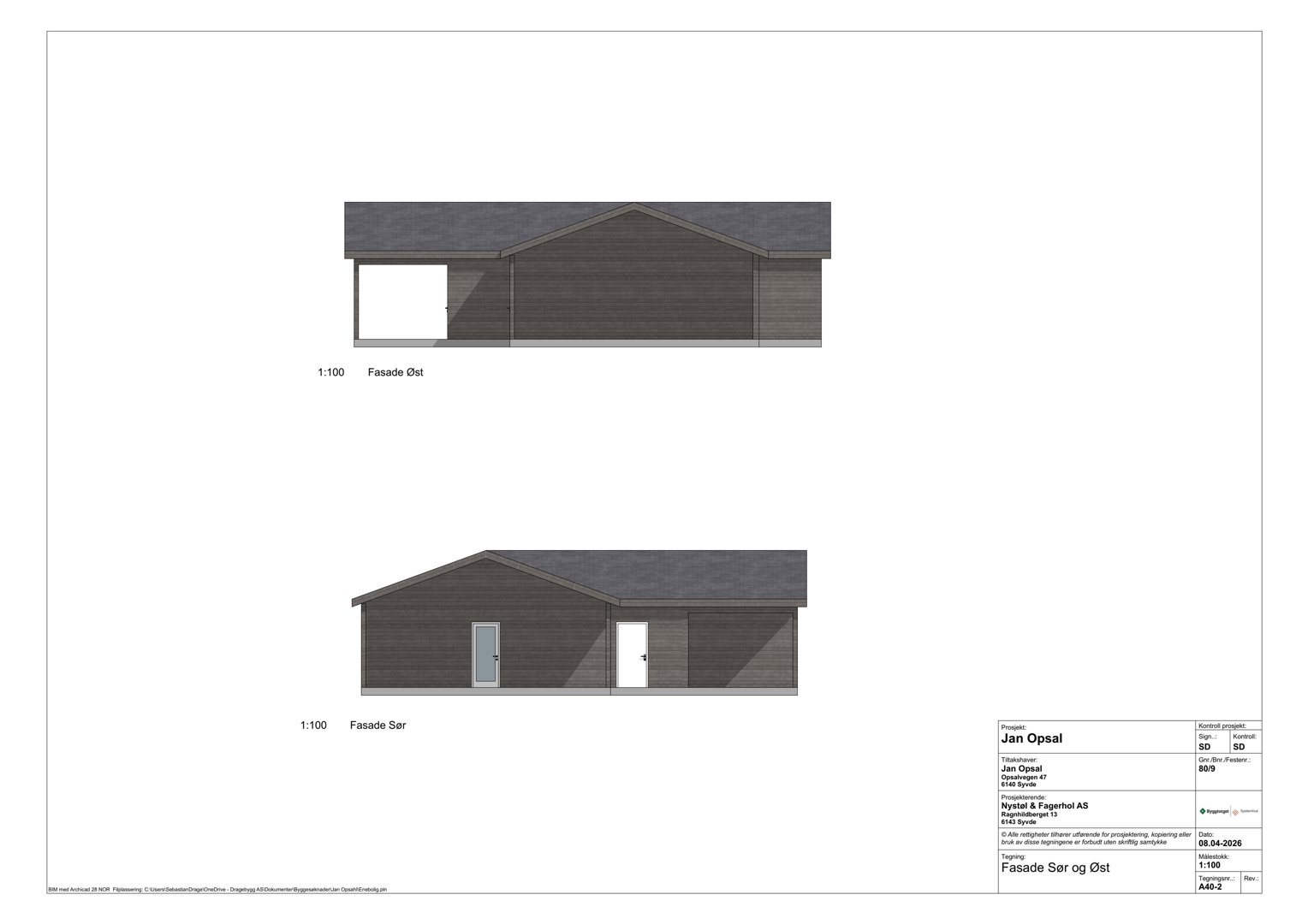
Ny enebolig på 125 m² med saltak oppføres på eiendommen Opsalvegen 47 i Syvde. Boligen har en etasje med stue, kjøkken, gang, bad, toalett, vaskerom og 74 soverom, hver på ca. 12 m², med tilhørende vinduer og dører. Bygget har trekledning og saltak, og det planlegges ny avkjørsel fra kommunal vei. Eksisterende eldre bolig rives før nybygging. Prosjektet inkluderer grunnarbeid, tømrerarbeid og rørleggerarbeid, med ansvarlige foretak for prosjektering og utførelse.

Produkter og materialer

Vinduer Fasadevindu

🧱 Tre

Antall: 74

Vinduer i soverom og oppholdsrom, antall 74 ifølge tegningsanalyse

Fasadevindu i tre til soverom og oppholdsrom

Tak Saltak

Saltak på bolig og garasje

Saltak som takkonstruksjon på bolig og garasje

Grunnarbeid Grunnarbeid for bolig

Ansvarlig utførende: Eikrem Maskin og Transport AS

Grunnarbeid for ny enebolig, inkludert avkjørsel fra kommunal vei

VVS Rørleggerarbeid

Ansvarlig utførende: Rørleggermester Are M. Fiskaa AS, inkludert sanitær og vanninstallasjoner

Rørleggerarbeid for sanitær og vanninstallasjoner i bolig

Garasjeport Garasjeport til bolig

Antall: 1

Garasje med garasjeport på boligfasade sør

Garasjeport tilknyttet bolig

Tømrer Tømrerarbeid for enebolig

🧱 Tre

Trekledning, saltak, dører og vinduer i tre

Tømrerarbeid for oppføring av enebolig med trekledning og saltak

Dører Ytterdører og innerdører

🧱 Tre

Antall: 79

Dører til soverom, bad, toalett, vaskerom, gang og ytterdører

Ytterdører og innerdører i tre til boligrom og innganger

Fasade Trekledning

🧱 Tre

Trekledning på alle fasader

Trekledning som ytterkledning på bolig

Fasader

Garasje

Øst
Materiale
Tre
Taktype
Saltak
Vinduer
0
Dører
1
Synlige etasjer
1

Enebolig

Sør
Materiale
Tre
Taktype
Saltak
Vinduer
0
Dører
2
Synlige etasjer
1

Hendelser

20.04.2026 Søknad om løyve i ett trinn - Gnr 80 bnr 9 - Opsalvegen 47