NewConstruction Soeknad Enebolig

Ny firemannsbolig med garasje i Osavegen 6, Voss

📍 Osavegen 6 , 5704 VOSS

Nøkkelinfo

Sakstype
Nybygg
Bygningstype
Enebolig
Bruksareal
530 m²
Boenheter
4
Kommune
Voss
Fylke
Vestland
Gnr / Bnr
48 / 218
Saksnummer
2026/3938
Fase
Søknad

Om byggesaken

Ny firemannsbolig i tre etasjer med underetasje som inneholder fire garasjer og fire boder, plassert i Osavegen 6 på Voss. Bygget har et samlet bruksareal (BRA) på ca. 530 m² og bebygd areal (BYA) på ca. 207 m². Boligen har fire like leiligheter med 3 soverom, stue, kjøkken, bad tilrettelagt for HC, entre/gang og altaner på 8 m² med overbygg på øverste plan. Bygget har pulttak med 6 graders vinkel og hovedmateriale i tre, med betongvegger mot terreng i underetasjen. Det er etablert felles uteoppholdsareal foran og bak bygget, samt parkeringsplasser i underetasjen og en gjesteplass på terreng. Terrenget er krevende med skjæringer og terrasseringer, og det er planlagt sikringstiltak mot skred i henhold til ROS-analyse. Prosjektet inkluderer også omfattende grunnarbeider, drenering og VA-løsninger.

Produkter og materialer

Dører Ytterdører og innvendige dører

🧱 Tre

Antall: 30

Ytterdører i tre, innvendige dører i leiligheter og boder, inkludert dører til HC-bad

Ytterdører og innvendige dører i tre for bolig og boder

Rekkverk Altanrekkverk

🧱 Tre eller metall

Antall: 8

Rekkverk på altaner for sikkerhet

Sikkerhetsrekkverk på alle altaner

Garasjeport Porter til fire garasjer

Antall: 4

Garasjeporter til fire biloppstillingsplasser i underetasje

Garasjeporter for biloppstilling

Terrasse Altaner med overbygg

🧱 Tre

Antall: 8

Altaner på 8 m² med takoverbygg på øverste etasje

Altaner for hver leilighet med takoverbygg for værbeskyttelse

Trapper Innvendige trapper og utvendige terrengtrapper

Antall: 5

3 trapper i garasje, 2 trapper i bolig, samt utvendige trapper i terreng

Trapper for adkomst i bolig og garasje, samt utvendige trapper i terreng

Gulv Treparkett og fliser

🧱 Treparkett i oppholdsrom, fliser på bad

Trestavs parkett i stue og kjøkken, fliser på bad og våtromspaneler på vegger

Innvendige gulv med parkett og fliser i våtrom

Vinduer Store fasadevinduer og altandører

🧱 Tre med 3-lags energiglass

Antall: 50

Vinduer i ulike størrelser, blant annet 10 stk 21x11, 18 stk 9x21, 14 stk 10x14, 5 stk 21x5, 2 stk 30x21 cm, samt altandører med glass

Vinduer og altandører i tre med energiglass for godt lysinnslipp og isolasjon

Grunnarbeid Skjæringer, drenering og fundamentering

Omfattende grunnarbeider med skjæringer i bakkant, drenering og fundamentering i krevende terreng

Grunnarbeid for bygging i krevende terreng med sikringstiltak

Tak Pulttak

🧱 Trekonstruksjon med kaldt loft

Antall: 1

Pulttak med 6 graders vinkel, kaldt loft, hovedmateriale tre

Tak med pultform og isolasjon iht. TEK17

Elektro Elektriske installasjoner

Elektriske installasjoner iht. TEK17 og gjeldende forskrifter

Fullstendig elektrisk anlegg for boligene

VVS Vannbåren varme og sanitærinstallasjoner

Antall: 4

Vannbåren varmesentral i underetasje for hver leilighet, bad tilrettelagt for HC

VVS-installasjoner med vannbåren varme og sanitærutstyr tilpasset HC

Maling Innvendig og utvendig maling

Maling av treverk utvendig og innvendig overflater

Maling for beskyttelse og estetikk

Fasade Trekledning

🧱 Malt/beiset trevirke

Utvendig kledning i malt eller beiset tre

Trekledning for fasade i henhold til reguleringsplan og søknad

Ventilasjon Ventilasjonsanlegg

Ventilasjon i henhold til TEK17 krav

Ventilasjonsanlegg for boligene

Betong Betongvegger og dekker i underetasje

🧱 Betong hulldekker eller Lecaplank

Betongvegger mot terreng i underetasje, dekke over parkeringskjeller

Betongkonstruksjoner for underetasje og parkeringskjeller

Plantegning

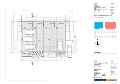
Garasje 227.6 m²

Etasje 0 227.6 m²

Rom Areal Vinduer Dører
Sportsbod ID-01 6.0 m² 0 0
Sportsbod ID-01 6.0 m² 0 0
Sportsbod ID-01 6.0 m² 0 0
Sportsbod ID-01 6.0 m² 0 0
Renovasjon ID-20 4.3 m² 0 0
Sykler V-03 3.7 m² 0 0
Sykler V-04 3.7 m² 0 0
YD-30 YD-30 3.7 m² 0 0
Parkeringsplass 32,1 m² 32.1 m² 0 0
Parkeringsplass 41,3 m² 41.3 m² 0 0
Parkeringsplass 34,3 m² 34.3 m² 0 0
Parkeringsplass 59,2 m² 59.2 m² 0 0

Enebolig 535.4 m²

Etasje 0 190.0 m²

Rom Areal Vinduer Dører
Garasje U01 190.0 m² 0 0

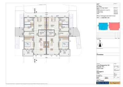
Etasje 1 172.7 m²

Rom Areal Vinduer Dører
Stue 101 86.3 m² 2 1
Gang 102 1.5 m² 0 2
Kjøkken 103 86.3 m² 1 1
Soverom 104 7.0 m² 1 1
Sov.1 105 11.6 m² 1 1
Altan 106 8.0 m² 1 0
Entre/Gang 107 6.7 m² 0 2
Bad(HC) 108 4.9 m² 0 1
Soverom 109 7.0 m² 1 1
Soverom 110 7.0 m² 1 1
Sov.1 111 11.6 m² 1 1
Altan 112 8.0 m² 1 0
Entre/Gang 113 6.7 m² 0 2
Kjøkken 114 16.8 m² 0 0
Bad(HC) 115 4.9 m² 0 1

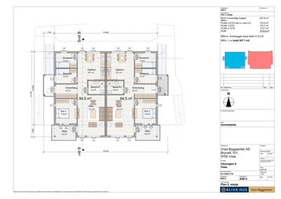
Etasje 2 172.7 m²

Rom Areal Vinduer Dører
Soverom 201 86.3 m² 1 1
Gang 202 1.5 m² 0 2
Soverom 203 86.3 m² 1 1
Kjøkken 204 16.7 m² 2 1
Soverom 205 7.0 m² 1 1
Soverom 206 7.0 m² 1 1
Entre/Gang 207 6.7 m² 0 2
Entre/Gang 208 6.7 m² 0 2
Bad(HC) 209 4.9 m² 0 1
Bad(HC) 210 4.9 m² 0 1
Stue 211 27.3 m² 2 1
Stue 212 27.3 m² 2 1
Sov.1 213 11.6 m² 1 1
Sov.1 214 11.6 m² 1 1
Altan 215 8.0 m² 2 1
Altan 216 8.0 m² 2 1

Fasader

Enebolig

Sydøst
Materiale
Tre
Taktype
Pulttak
Vinduer
10
Dører
1
Balkonger
3
Synlige etasjer
3
Nordøst
Materiale
Tre
Taktype
Pulttak
Vinduer
5
Dører
1
Balkonger
2
Synlige etasjer
2

Hendelser

20.04.2026 Søknad om løyve - nytt bygg - firemannsbustad - gbnr. 48/218 - Osavegen 6
16.04.2026 Stadfesting av motteken søknad - nytt bygg - firemannsbustad - gbnr. 48/218 - Osavegen 6