NewConstruction UnderBehandling Enebolig

Ny enebolig med sekundærleilighet i Østliveien 9A, Heggedal

📍 Østliveien 9A

Nøkkelinfo

Sakstype
Nybygg
Bygningstype
Enebolig
Bruksareal
250 m²
Boenheter
2
Kommune
Asker
Fylke
Akershus
Gnr / Bnr
78 / 490
Saksnummer
26/937
Fase
Under behandling

Om byggesaken

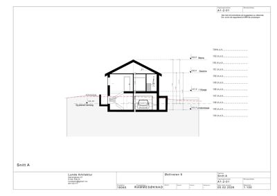
Ny enebolig med integrert sekundærleilighet på totalt 250 m² BRA fordelt på to etasjer. Hovedbygget har saltak og kombinasjon av mur og treverk som fasademateriale, med gesimshøyde rundt 4,7 meter og mønehøyde ca. 6,7 meter, godt under maksimal tillatt høyde. Underetasjen inneholder dobbel garasje på 31,6 m², sekundærleilighet med stue, kjøkken, bad, soverom og vaskerom. Første etasje har fire soverom, to bad, kjøkken, stue/spisestue og balkong på 13,1 m². Bygget er plassert med minimum 3 meter fra nabogrense med samtykke, og tomten på 756,7 m² har uteoppholdsareal på over 400 m². Parkering er ivaretatt med dobbel garasje og biloppstillingsplass for sekundærleilighet. Terrenginngrep og støttemurer er planlagt i tråd med kommuneplanens krav, og det foreligger nabomerknader som er kommentert og imøtekommet.

Produkter og materialer

Garasjeport Dobbel garasjeport

Antall: 1

Dobbel garasje integrert i underetasje

Garasjeport for dobbel garasje i underetasje

Vinduer Fasadevindu

🧱 Tre/aluminium

Antall: 31

Vinduer i hoved- og sekundærleilighet, inkludert 3 i stue/spisestue og 2 i kjøkken i hovedbygg

Fasadevinduer i treverk med energiglass, fordelt på soverom, stue, kjøkken og andre rom

Betong Fundament og grunnmur

🧱 Betong

Fundament og grunnmur for enebolig og garasje

Betongfundament og grunnmur for bolig og integrert garasje

Gulv Innvendige gulv

🧱 Parkett og fliser

Gulv i stue, soverom, bad og kjøkken

Parkett i oppholdsrom og fliser i våtrom

VVS Sanitærinstallasjoner

Vann og avløp til bolig og sekundærleilighet, inkludert bad, vaskerom og kjøkken

VVS-installasjoner for sanitær og oppvarming

Grunnarbeid Terrengarbeid og støttemurer

🧱 Betong og mur

Støttemurer inntil tomtegrense, terrengtilpasning for garasje og biloppstillingsplass

Terrenginngrep og støttemurer for gårdsplass og adkomst, i tråd med kommuneplanens krav

Kjøkken Kjøkkeninnredning

Antall: 2

Kjøkken i hovedbygg og sekundærleilighet

Fullt utstyrt kjøkkeninnredning i begge boenheter

Isolasjon Bygningsisolasjon

🧱 Mineralull eller tilsvarende

Isolasjon i vegger, tak og gulv for bolig og sekundærleilighet

Isolasjon for å oppfylle TEK-krav til varmeisolasjon

Terrasse Balkong

🧱 Tre eller kompositt

Antall: 1

Balkong på 13,1 m² i hovedbygg

Utendørs balkong tilknyttet stue i hovedetasje

Trapper Innvendig trapp

Antall: 2

Trapper i hovedbygg og sekundærleilighet

Innvendige trapper mellom etasjer

Dører Ytterdører og innerdører

🧱 Tre/kompositt

Antall: 22

Ytterdører og innerdører til soverom, bad, garasje, og sekundærleilighet

Ytterdører og innerdører for bolig og sekundærleilighet, inkludert garasjeport

Elektro Elektrisk anlegg

Elektrisk installasjon i bolig og sekundærleilighet

Fullt elektrisk anlegg med belysning, stikkontakter og tekniske installasjoner

Bad Baderomsinnredning

Antall: 3

Bad i hovedbygg og sekundærleilighet, samt WC

Baderomsinnredning med toalett, dusj/badekar og servant

Tak Saltak

🧱 Takstein eller metall

Antall: 1

Saltak med mønehøyde ca. 6,7 m og gesimshøyde ca. 4,7 m

Saltak i tråd med nabobebyggelse og kommuneplanens estetiske krav

Fasade Mur og treverk

🧱 Mur og trepanel

Antall: 1

Kombinasjon av mur og treverk i fasade

Fasade i mur og treverk med saltak, tilpasset nabobebyggelse

Ventilasjon Mekanisk ventilasjon

Ventilasjonssystem i bolig og sekundærleilighet

Ventilasjon for å sikre godt inneklima i begge boenheter

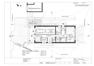
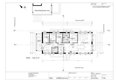
Plantegning

Enebolig 125.0 m²

Etasje 1 125.0 m²

Rom Areal Vinduer Dører
Soverom 1.1 8.0 m² 1 1
Soverom 1.2 8.0 m² 1 1
Soverom 1.3 8.0 m² 1 1
Bad 1.4 3.6 m² 0 1
Klær 1.5 4.2 m² 0 1
Soverom 1.6 10.1 m² 1 1
Stue - Spisestue 1.7 35.5 m² 3 1
Kjøkken 1.8 17.5 m² 2 1
Gang/Trapp 1.9 7.1 m² 0 2
Bad 1.10 4.2 m² 0 1
Lekerom 1.11 14.3 m² 1 1
Balkong Balkong 13.1 m² 0 0

Sekundær leilighet 125.0 m²

Etasje 0 125.0 m²

Rom Areal Vinduer Dører
Garasje 0.1 31.6 m² 0 1
Soverom 0.2 8.0 m² 1 1
VF 0.3 3.2 m² 0 1
Stue / Spisestue 0.4 18.3 m² 2 1
Soverom 0.5 8.7 m² 1 1
Kjøkken 0.6 6.0 m² 1 1
Gang 0.7 9.2 m² 0 2
Bad 0.8 4.6 m² 0 1
Gang - Trapp 0.9 12.9 m² 0 1
WC 0.10 2.8 m² 0 1
Vask 0.11 5.4 m² 0 1
Hall / VF 0.12 9.1 m² 0 2

Fasader

Hovedbygg

Sør-Vest
Materiale
Tre
Taktype
Saltak
Høyde
5.7 m
Mønehøyde
7.6 m
Vinduer
7
Dører
1
Balkonger
1
Synlige etasjer
2

Enebolig

Nord-Øst
Materiale
Tre
Taktype
Saltak
Høyde
7.6 m
Mønehøyde
9.3 m
Vinduer
8
Dører
1
Synlige etasjer
2
Sør-Vest
Materiale
Tre
Taktype
Saltak
Høyde
5.7 m
Mønehøyde
7.6 m
Vinduer
8
Dører
1
Balkonger
1
Synlige etasjer
2
Sør-Øst
Materiale
Tre
Taktype
Saltak
Høyde
6.7 m
Mønehøyde
7.6 m
Vinduer
10
Dører
2
Balkonger
1
Synlige etasjer
2

Hendelser

13.04.2026 78/490 Østliveien 9A - Mottakskontroll
23.03.2026 78/490 Østliveien 9A - Søknad om rammetillatelse - Enebolig med sekundærleilighet