NewConstruction Ferdigattest Enebolig

Ny enebolig med næringslokale i sokkeletasje på Øverbygdveien 1767

📍 Øverbygdveien 1767 , 9334 ØVERBYGD

Nøkkelinfo

Sakstype
Nybygg
Bygningstype
Enebolig
Bruksareal
361 m²
Boenheter
1
Kommune
Målselv
Fylke
Troms - Romsa - Tromssa
Gnr / Bnr
80 / 29
Saksnummer
2025/4947
Fase
Ferdigattest

Om byggesaken

Ny enebolig på totalt 361 m² bruksareal fordelt på to etasjer og sokkeletasje med næringslokale. Bygget har saltak og trekledning, med flere vinduer og balkonger på fasadene. Sokkeletasjen inneholder et næringslokale som benyttes til trafikkskole med separat inngang. Boligdelen har blant annet kjøkken, stue, bad, badstue, bod og flere soverom. Bygget har pipe og er oppført med vannbåren gulvvarme og elektrisk energiforsyning. Det er én trapp i bygget som forbinder etasjene. Bygget er ferdigstilt og har fått ferdigattest.

Produkter og materialer

Tak Saltak

🧱 Tre med taktekking

Antall: 1

Saltak med trekledning

Saltak med trekledning som takmateriale

Trapper Innvendig trapp

Antall: 1

En trapp som forbinder etasjene

Innvendig trapp mellom sokkeletasje, 1. og 2. etasje

Grunnarbeid Fundamentering og grunnmur

Grunnarbeid og fundamentering for enebolig med sokkeletasje

Grunnarbeid og fundamentering for bygget

Elektro Energiforsyning

Elektrisitet som energiforsyning

Elektrisk energiforsyning til bygget

Fasade Trekledning

🧱 Tre

Trekledning på alle fasader

Trekledning som fasademateriale

VVS Varmefordeling

Vannbåren gulvvarme og ovn/kamin/peis

Varmefordeling med vannbåren gulvvarme og ovn/kamin/peis

Vinduer Fasadevindu

🧱 Tre

Antall: 12

Vinduer i tre på alle fasader, totalt 12 vinduer fordelt på nord (2), sør (4), vest (3), øst (3)

Fasadevinduer i tre for naturlig lys og ventilasjon

Dører Ytterdør og balkongdør

🧱 Tre

Antall: 2

Ytterdør på sørfasade (1) og dør til balkong (1)

Ytterdør og balkongdør i tre

Pipe Peis/ovn pipe

Antall: 1

Pipe tilknyttet ovn/kamin/peis

Pipe for ildsted i bygget

Gulv Gulvvarme

Vannbåren gulvvarme i bygget

Vannbåren gulvvarme som varmefordeling i gulv

Maling Innvendig og utvendig maling

Maling av treflater innvendig og utvendig

Maling av treflater for beskyttelse og estetikk

Bad Bad og badstue

Antall: 2

Bad på 11,8 m² og badstue på 6,3 m²

Bad og badstue med nødvendige sanitærinstallasjoner

Tømrer Byggkonstruksjon

🧱 Tre

Trekonstruksjon for vegger, tak og etasjeskiller

Tømrerarbeid for trekonstruksjon av bygget

Ventilasjon Ventilasjonssystem

Ventilasjon iht. forskrifter for bolig og næringsdel

Ventilasjonssystem for inneklima

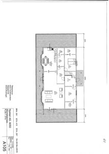
Plantegning

Enebolig 236.1 m²

Etasje 1 236.1 m²

Rom Areal Vinduer Dører
SOV 1 13.0 m² 1 1
VF 2 11.5 m² 0 1
GANG 3 8.7 m² 0 2
BADSTU 4 6.3 m² 0 1
BOD 5 5.7 m² 0 1
GANG 6 8.7 m² 0 2
KJØKKEN 7 23.4 m² 0 1
STUE 8 49.9 m² 3 1
BAD 9 11.8 m² 0 1
GANG 10 11.5 m² 0 1
GANG 11 11.5 m² 0 1
GANG 12 11.5 m² 0 1
GANG 13 11.5 m² 0 1
GANG 14 11.5 m² 0 1
GANG 15 11.5 m² 0 1
GANG 16 11.5 m² 0 1
GANG 17 11.5 m² 0 1
GANG 18 11.5 m² 0 1
GANG 19 11.5 m² 0 1
GANG 20 11.5 m² 0 1
GANG 21 11.5 m² 0 1
GANG 22 11.5 m² 0 1
GANG 23 11.5 m² 0 1
GANG 24 11.5 m² 0 1
GANG 25 11.5 m² 0 1
GANG 26 11.5 m² 0 1
GANG 27 11.5 m² 0 1
GANG 28 11.5 m² 0 1
GANG 29 11.5 m² 0 1
GANG 30 11.5 m² 0 1
GANG 31 11.5 m² 0 1
GANG 32 11.5 m² 0 1
GANG 33 11.5 m² 0 1
GANG 34 11.5 m² 0 1
GANG 35 11.5 m² 0 1
GANG 36 11.5 m² 0 1
GANG 37 11.5 m² 0 1
GANG 38 11.5 m² 0 1
GANG 39 11.5 m² 0 1
GANG 40 11.5 m² 0 1
GANG 41 11.5 m² 0 1
GANG 42 11.5 m² 0 1
GANG 43 11.5 m² 0 1
GANG 44 11.5 m² 0 1
BOD 45 3.2 m² 0 1

Fasader

Enebolig

Nord
Materiale
Tre
Taktype
Saltak
Vinduer
2
Dører
0
Balkonger
1
Synlige etasjer
2
Sør
Materiale
Tre
Taktype
Saltak
Vinduer
4
Dører
1
Balkonger
1
Synlige etasjer
2
Vest
Materiale
Tre
Taktype
Saltak
Vinduer
3
Dører
0
Synlige etasjer
2
Øst
Materiale
Tre
Taktype
Saltak
Vinduer
3
Dører
0
Synlige etasjer
2

Hendelser

21.04.2026 80/28 - Ferdigattest-Øverbygdveien 1767.
21.04.2026 80/28 - Ferdigattest-Øverbygdveien 1767
20.04.2026 80/28 - Ferdigattest - Øverbygdveien 1767
20.04.2026 80/28 - Ferdigattest - Øverbygdveien 1767
02.03.2026 80/28 og 80/29 - Veiadresse for Øverbygdveien 1767
02.03.2026 80/28 og 80/29 - Veiadresse for Øverbygdveien 1767
17.02.2026 80/28 - Vedlegg til ferdigattest - Boligspesifikasjon i matrikkelen
17.02.2026 80/28 - Vedlegg til ferdigattest - Boligspesifikasjon i matrikkelen
12.12.2025 80/28 - Korrespondanse Ferdigattest-Øverbygdveien 1767
08.12.2025 80/28 - Korrespondanse med søker ang. Ferdigattest-Øverbygdveien 1767
03.12.2025 80/28 - Ferdigattest. Enebolig.
27.11.2025 80/28 og 80/29 - Kopi av tillatelse til tiltak for Øverbygdveien 1767
27.11.2025 80/28 og 80/29 - Kopi av sendt søknad for Øverbygdveien 1767
26.11.2025 80/28 - Søknad om ferdigattest