NewConstruction UnderBehandling Enebolig

Ny enebolig med garasje og støttemur på Øverland 21

📍 Øverland 21 , 5560 NEDSTRAND

Nøkkelinfo

Sakstype
Nybygg
Bygningstype
Enebolig
Bruksareal
262 m²
Boenheter
1
Kommune
Tysvær
Fylke
Rogaland
Gnr / Bnr
188 / 47
Saksnummer
2023/1943
Fase
Under behandling

Om byggesaken

Ny enebolig med hoved- og underetasje på totalt ca. 262 m² BRA, inkludert en carport/garasje på 42 m² og en støttemur i naturstein. Boligen har et bebygd areal (BYA) på 119 m², carporten 42 m², og inneholder blant annet kjøkken/stue, flere soverom, bad, bod, teknisk rom og hagebod. Bygget er tilpasset terrenget med trinnfri adkomst i hovedetasjen og en underetasje som utnytter tomtens skråning. Taket er saltak med mønehøyde på 8,1 meter, og fasaden er kledd med liggende trekledning. Det er installert pipe, og carporten har pulttak. Støttemuren er i naturstein med varierende høyde opp til ca. 2 meter, og har en total lengde på ca. 39 meter. Bygget knyttes til offentlig vann- og avløpsnett, og det er gjennomført uavhengig kontroll av lufttetthet og våtrom.

Produkter og materialer

Garasjeport Carport/garasjeport

Antall: 1

Carport på 42 m² med pulttak

Garasje/carport tilknyttet bolig

Pipe Pipe for ildsted

Antall: 1

Installert pipe i bolig

Pipe for ildsted i bolig

Mur Støttemur i naturstein

🧱 Naturstein

Støttemur ca. 39 meter lang, høyde 1,2 m i snitt, maks 2 m

Natursteinsmur for terrengtilpasning og uteareal

Trapper Innvendige trapper

Antall: 2

To trapper i bolig mellom etasjer

Innvendige trapper i bolig

Vinduer Fasadevindu

Antall: 14

Vinduer fordelt på fasader, totalt 14 stk

Vinduer i bolig, inkludert hoved- og underetasje

Grunnarbeid Grunnarbeid inkl. sprenging og natursteinsmurer

Grunnarbeid og sprenging for byggeplass og støttemur

Grunnarbeid for tomt og fundamentering

Terrasse Terrasse ca. 40 m²

Antall: 1

Terrasse på ca. 40 m² mot sør

Utendørs terrasse for rekreasjon

Tak Saltak

Saltak med mønehøyde 8,1 m, gesimshøyde 6,3 m

Saltak på bolig, pulttak på carport

Elektro Elektriske installasjoner

Elektriske installasjoner i bolig

Elektroarbeid for bolig

VVS Sanitærinstallasjoner

Rørleggerarbeid, tilknytning til offentlig vann- og avløpsnett

Sanitærinstallasjoner i bolig og garasje

Betong Plasstøpte betongkonstruksjoner

🧱 Betong

Grunn- og betongarbeid for bolig og garasje

Betongarbeid for fundamenter, grunnmur og bærende konstruksjoner

Ventilasjon Ventilasjonssystem

Ventilasjon i bolig

Ventilasjon for inneklima i bolig

Dører Ytterdører og innerdører

Antall: 15

Ytterdører og innerdører i bolig og garasje

Dører til rom og utvendige dører i bolig og garasje

Bad Våtrom med membran

Antall: 2

Bad i hovedetasje og underetasje med membran og våtromskontroll

Bad med membran og våtromsarbeid

Fasade Liggende trekledning

🧱 Tre

Liggende trekledning på fasader

Fasadebekledning i tre for eneboligen

Gulv Innvendige gulv

Gulv i bolig, sannsynligvis parkett eller fliser i våtrom

Innvendige gulv i bolig

Tømrer Tømrerarbeid og montering av trekonstruksjoner

🧱 Tre

Tømrerarbeid for bolig og carport

Tømrerarbeid for bygging av bolig og carport

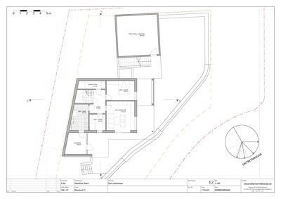
Plantegning

Enebolig 262.3 m²

Etasje 0 120.1 m²

Rom Areal Vinduer Dører
TEKNISK ROM 001 4.9 m² 0 1
SOV / GJEST 002 12.2 m² 1 1
GANG 003 7.1 m² 0 2
BAD / VASK 004 9.7 m² 0 1
SOV / GJEST 005 5.8 m² 0 1
KJELLERSTOVE 006 18.3 m² 1 1
HAGEBOD 007 9.6 m² 1 1
Bustad underetasje 67.0 m² 0 0
Bustad utebod 10.0 m² 0 0
Disp / Bod under garasje 37.0 m² 0 0

Etasje -1 36.6 m²

Rom Areal Vinduer Dører
DISP / BOD U. GARASJE U01 36.6 m² 0 1

Etasje 1 105.6 m²

Rom Areal Vinduer Dører
Kjøkken / Stove 101 36.7 m² 2 1
Gang 102 6.4 m² 0 2
Sov 103 12.1 m² 1 1
Bad 104 5.1 m² 0 1
Bod 105 2.9 m² 0 1
VF 106 4.1 m² 0 1
Trapp 107 5.0 m² 0 0
Bustad hovedetasje 75.0 m² 0 0

Fasader

Enebolig

Sørøst
Materiale
Tre
Taktype
Saltak
Høyde
6.3 m
Mønehøyde
8.1 m
Vinduer
4
Dører
1
Balkonger
1
Synlige etasjer
2
Nordvest
Materiale
Tre
Taktype
Saltak
Høyde
6.3 m
Mønehøyde
8.1 m
Vinduer
2
Dører
0
Synlige etasjer
2
Sørvest
Materiale
Tre
Taktype
Saltak
Vinduer
5
Dører
2
Balkonger
1
Synlige etasjer
2

Hendelser

15.04.2026 Gbnr 188/47 - Befaring i forbindelse med midlertidig brukstillatelse på bolighus - Øverland 21
15.04.2026 Gbnr 188/47 - Tilsynsrapport - Bolig, garasje og støttemur - Øverland 21
26.03.2026 Gbnr 188/47 - Søknad om midlertidig brukstillatelse - bolig, garasje og støttemur - Øverland 21
26.03.2026 Gbnr 188/47 - Søknad om midlertidig brukstillatelse - bolig, garasje og støttemur - Øverland 21
10.09.2025 Gbnr 188/47 - Supplering til søknad - Bolig, garasje og støttemur - Øverland 24
14.08.2025 Gbnr 188/47 - Vedtak - Godkjent søknad om igangsettingstillatelse - Bolig, garasje og støttemur - Øverland 21
07.07.2025 Gbnr 188/47 - Søknad om igangsettingstillatelse - bolig , garasje og støttemur - Øverland 21
31.01.2025 Gbnr 188/47 - Igangsettingstillatelse - bolig, garasje og støttemur - Øverland 21
21.01.2025 Søknad om igangsettingstillatelse - bolig, garasje og støttemur - gnr. 188 bnr. 47 - Øverland 21
11.07.2023 Vedtak om rammetillatelse - Bolig, garasje og støttemur - gnr. 188 bnr. 47 - Øverland 21
27.04.2023 Tilbakemelding om mangler - Bolig, garasje og støttemur - gnr. 188 bnr. 47 - Øverland 21
27.04.2023 Ettersending av manglande dokumentasjon til søknad - Bolig , garasje og støttemur - gnr. 188 bnr. 47 - Øverland 21
19.04.2023 Søknad om rammetillatelse - Bolig - gnr. 188 bnr. 47 - Øverland 21