NewConstruction UnderBehandling Enebolig

Ny enebolig med garasje og basseng i Breivikveien 36, Asker

📍 Parallellen 50 , 8072 BODØ

Nøkkelinfo

Sakstype
Nybygg
Bygningstype
Enebolig
Bruksareal
333 m²
Boenheter
1
Kommune
Asker
Fylke
Akershus
Gnr / Bnr
39 / 841
Saksnummer
25/3924
Fase
Under behandling

Om byggesaken

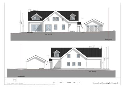
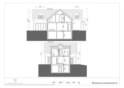
Ny enebolig på totalt 333 m² BRA fordelt på kjeller, 1. etasje og loftsetasje med tilhørende garasje og utendørs basseng. Boligen har saltak med teglstein, tre fasader i treverk og en pusset fasade, og inneholder flere soverom, bad, garderober, kontor, vaskerom, boder og sportsboder. Loftsetasjen har tre mindre arker som gir punktvis gesimshøyde opp til 6,4 meter, mens hovedgesims er 4,0 meter. Garasjen har garasjeport og ligger på tomt på 908,1 m² med god uteplass og terrengtilpasning. Bygget er prosjektert med fokus på dagslys, rømningsveier og energikrav i TEK17. Det er søkt dispensasjon for arkene som overskrider reguleringsplanens gesimshøyde, men søknaden er avslått av kommunen.

Arbeidsomfang

- Oppføring av ny enebolig med 3 etasjer (ca 333 m² BRA) - Tilbygg: Garasje (ca 36 m²) - Tilbygg: Svømmebasseng - Fasadeendring: Innebygd arkitektur med takopplett/arker for å redusere gesimshøyde til 4,0 m (med unntak av 3 mindre arker) - Endring av gesimshøyde: Reduksjon av hovedgesims for å overholde reguleringsplanens krav

Produkter og materialer

Gulv Innvendige gulvflater

Gulv i oppholdsrom, soverom, bad og boder

Innvendige gulvflater i bolig

Bad Bad og WC innredning

Antall: 6

6 bad/WC fordelt på kjeller, 1. etasje og loft

Innredning og sanitærutstyr for bad og WC

Elektro Elektrisk anlegg

Elektrisk anlegg i henhold til TEK17

Elektrisk installasjon for bolig og garasje

Tak Saltak med teglstein

🧱 teglstein

Antall: 1

Saltak med teglstein, gesimshøyde 4,0 m hovedvolum, takarker med gesimshøyde opptil 6,4 m

Saltak med teglstein og tre mindre takarker

Basseng Utendørs svømmebasseng

Antall: 1

Utendørs basseng i hage

Utendørs svømmebasseng med tilhørende installasjoner

Ventilasjon Mekanisk ventilasjon

Ventilasjon i henhold til TEK17

Ventilasjonsanlegg for bolig

VVS Sanitærinstallasjoner

Bad, WC, vaskerom i alle etasjer, teknisk rom i kjeller

Sanitærinstallasjoner for bad, WC og vaskerom

Fasade Tre og pusset fasade

🧱 treverk og puss

Treverk på hovedfasader, pusset fasade på ukjent fasade

Fasader i treverk og pusset fasade

Garasjeport Standard garasjeport

Antall: 1

Garasje med garasjeport

Garasje med port for biloppstilling

Kjøkken Kjøkkeninnredning

Antall: 1

Kjøkken i 1. etasje

Kjøkkeninnredning med tilhørende installasjoner

Trapper Innvendige trapper

Antall: 3

Innvendige trapper mellom kjeller, 1. etasje og loft

Isolasjon Isolasjon i vegger og tak

Isolasjon i vegger og tak i henhold til TEK17

Isolasjon for energieffektiv bolig

Grunnarbeid Tomtearbeid og terrengtilpasning

Terrengtilpasning med mindre justeringer, lokal overvannshåndtering på egen grunn

Grunnarbeid for tomt, adkomst og overvannshåndtering

Dører Ytterdører og balkongdører

🧱 tre eller tilsvarende

Antall: 11

Dører i fasader nord (2), sør (1), øst (2), vest (1), ukjent (3), balkongdør (1)

Ytterdører og balkongdør i tre eller tilsvarende materiale

Betong Grunnmur og kjeller

🧱 betong

Kjeller med boder, bad, teknisk rom og sportsboder

Betongkonstruksjoner for kjeller og grunnmur

Maling Utvendig maling

Hvitmalt kledning på boligfasader

Maling av trefasader utvendig

Rekkverk Innvendige rekkverk

Rekkverk ved trapper

Sikkerhetsrekkverk ved innvendige trapper

Vinduer Fasadevindu

🧱 tre med mørk ramme

Antall: 27

Vinduer i fasader nord (9), sør (6), øst (5), vest (5), ukjent (5)

Fasadevinduer i tre med mørk ramme for dagslys og utsyn

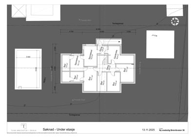
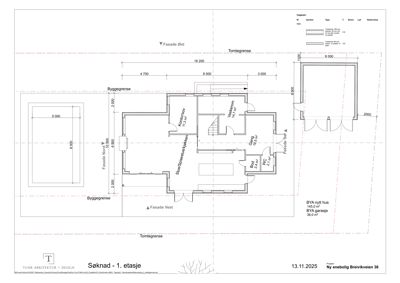
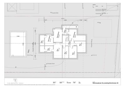
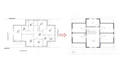
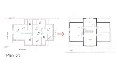
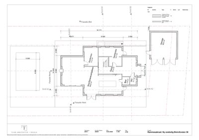
Plantegning

Enebolig 377.7 m²

Etasje 1 145.0 m²

Rom Areal Vinduer Dører
Stue/Spisestue/kjøkken 101 35.0 m² 2 2
Kontor/sov 102 11.3 m² 1 1
Vaskerom 103 14.7 m² 1 1
Gang 104 19.5 m² 0 3
Bod 105 2.4 m² 0 1
WC 106 2.1 m² 0 1
Gard 107 13.3 m² 0 1
Sov 108 12.4 m² 1 1
Bad 109 9.8 m² 0 1
Bad 110 6.6 m² 0 1
Bad 111 9.5 m² 0 1
Bad 112 5.3 m² 0 1

Etasje 2 117.5 m²

Rom Areal Vinduer Dører
Sov 201 17.2 m² 1 1
Gard 202 4.8 m² 0 1
Bad 203 12.1 m² 0 1
Sov 204 11.3 m² 1 1
Gang 205 15.4 m² 0 4
Sov 206 13.1 m² 1 1
Gard 207 16.6 m² 1 1
Sov 208 9.0 m² 1 1
Bad 209 8.0 m² 0 1
Bad 210 4.5 m² 0 1

Etasje 0 115.2 m²

Rom Areal Vinduer Dører
Bad 001 5.3 m² 0 1
Bad 002 9.5 m² 0 1
Sporstsbod 003 10.1 m² 0 1
Sporstsbod 004 12.5 m² 0 1
Bod 005 15.1 m² 0 1
Bod 006 8.6 m² 0 1
Bod 007 10.8 m² 0 1
Bod 008 12.1 m² 0 1
Gang 009 6.0 m² 0 4
Gang 010 3.8 m² 0 2
Garderobe 011 16.0 m² 0 1
Stue K01 0.0 m² 0 0
Kjøkken K02 0.0 m² 0 0
Bad K03 0.0 m² 0 0
Gang K04 0.0 m² 0 0
Vaskerom K05 0.0 m² 0 0
Soverom K06 0.0 m² 0 0
Soverom K07 0.0 m² 0 0

Fasader

Enebolig

Nord
Materiale
Tre
Taktype
Saltak
Takmat.
Tegl
Høyde
6.4 m
Mønehøyde
13.5 m
Vinduer
9
Dører
2
Synlige etasjer
2
Sør
Materiale
Tre
Taktype
Saltak
Takmat.
Tegl
Høyde
6.4 m
Mønehøyde
13.5 m
Vinduer
6
Dører
1
Synlige etasjer
2
Øst
Materiale
Tre
Taktype
Saltak
Høyde
5.0 m
Mønehøyde
7.0 m
Vinduer
5
Dører
2
Balkonger
1
Synlige etasjer
2
Vest
Materiale
Tre
Taktype
Saltak
Høyde
5.0 m
Mønehøyde
7.0 m
Vinduer
5
Dører
1
Synlige etasjer
2
Ukjent
Materiale
Pusset
Taktype
Saltak
Høyde
4.0 m
Mønehøyde
7.0 m
Vinduer
5
Dører
3
Synlige etasjer
2

Hendelser

08.04.2026 39/841 Breivikveien 36 - Klage på avslag på søknad om rammetillatelse og dispensasjon klage
18.03.2026 39/841 Breivikveien 36 - Avslag på søknad om rammetillatelse for oppføring av enebolig med garasje og basseng rammetillatelse
27.02.2026 39/841 Breivikveien 36 - Supplering av søknad søknad
05.02.2026 9/841 Breivikveien 36 - Mottatt oppdatering i sak
03.02.2026 39/841 Breivikveien 36 - Informasjon om videre planer
27.12.2025 39/841 Breivikveien 36 - Svar på henvendelse vedrørende videre prosess
19.12.2025 39/841 Breivikveien 36 - Ønsker tilbakemelding
12.12.2025 39/841 Breivikveien 36 - Ber om tilbakemelding for videre prosess
11.12.2025 39/841 Breivikveien 36 - Varsel om avslag til søknad om nybygg enebolig med garasje og basseng avslag
08.12.2025 39/841 Breivikveien 36 - Ønsker møte
17.11.2025 39/841 Breivikveien 36 - Søknad om rammetillatelse - Nybygg enebolig med garasje og basseng rammetillatelse