NewConstruction UnderBehandling Enebolig

Oppføring og endring av bygg i Johan P. Clausens gate 17F og Pilotveien 32, Kristiansund

📍 Pilotveien 21 , 6517 KRISTIANSUND N

Nøkkelinfo

Sakstype
Nybygg
Bygningstype
Enebolig
Bruksareal
588 m²
Boenheter
1
Kommune
Kristiansund
Fylke
Møre og Romsdal
Gnr / Bnr
32 / 259
Saksnummer
23/05966
Fase
Under behandling

Om byggesaken

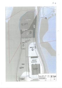
Prosjektet omfatter oppføring av et nytt bygg med tilhørende verksted, lager og dekkhotell på eiendommen Pilotveien 32/259, inkludert dispensasjon fra byggegrense langs vei og regulert offentlig kjørevei. I tillegg inngår tilbygg som verandaer, takopplett, takvinduer og utvidelse av brannceller på en eksisterende enebolig i Johan P. Clausens gate 17F. Bygget er i tre med saltak, og inneholder flere boder, vaskerom, stuer, soverom, bad, samt bilverksted og dekk-lager. Det er også søkt om bruksendring fra tilleggsdel til hoveddel i deler av bygget. Prosjektet inkluderer omfattende grunnarbeid, VA-anlegg, og tilknytning til offentlig vei og ledningsnett. Det er gjennomført nabovarsling og innhentet nødvendige uttalelser og dispensasjoner fra kommunalteknikk og andre myndigheter.

Produkter og materialer

Maling Utvendig og innvendig maling

Maling av treverk utvendig og innvendig

Maling

Grunnarbeid Overvannshåndtering

Fordrøyningsbasseng 48 m3, sandfangkummer, vannbrems

Overvannshåndtering med fordrøyningsbasseng og kummer

Ventilasjon Mekanisk ventilasjon

Ventilasjon i bolig og næringsbygg

Ventilasjonsanlegg

Trapper Innvendig trapp

🧱 Tre

Antall: 1

Innvendig trapp i enebolig

VVS Oljeutskiller

Antall: 1

Oljeutskiller for verksted

Oljeutskiller for spillvann fra verksted

Pipe Skorstein

🧱 Mur

Antall: 1

Pipe i enebolig

Skorstein for bolig

Elektro Elektrisk anlegg

Elektrisk installasjon i bolig og næringsbygg

Elektroinstallasjoner

Dører Ytterdør

🧱 Tre

Antall: 15

Ytterdører til enebolig og tilbygg

Garasjeport Garasjeport til bilverksted

Antall: 1

Garasjeport til bilverksted i enebolig

Vinduer Takvindu

🧱 Tre

Antall: 6

Takvinduer i tilbygg og påbygg

Takvinduer for loftsrom og takopplett

Annet Utebod

🧱 Tre

Antall: 1

Utebod for lagring av hageredskaper mv.

Utebod på egen tomt

Vinduer Fasadevindu

🧱 Tre

Antall: 34

Fasadevindu i tre til enebolig og tilbygg

VVS Sanitærinstallasjoner

Sanitærinstallasjoner i bolig og næringsbygg

VVS installasjoner for bad, vaskerom, kjøkken

Isolasjon Bygningsisolasjon

Isolasjon i vegger, tak og gulv

Isolasjon for nybygg og tilbygg

Betong Grunnmur

🧱 Betong

Grunnmur for enebolig og næringsbygg

Betong grunnmur

Fasade Tre kledning

🧱 Tre

Tre kledning på enebolig og tilbygg

Utvendig tre kledning

Grunnarbeid Avkjørsel

Antall: 1

Ny avkjørsel til eiendom

Avkjørsel og tilknytning til offentlig vei

Tak Saltak

🧱 Tre

Saltak på enebolig og tilbygg

Taktekking med saltak

Grunnarbeid Tomtearbeid

Sprengning og planering av tomt, grunnundersøkelser

Grunnarbeid for nybygg og tilbygg

Tømrer Tømrerarbeid

Tømrerarbeid for nybygg og tilbygg

Tømrerarbeid

VVS Brannkum/hydrant

Antall: 2

Brannkum innenfor 50 m fra hovedinngang

Brannkum/hydrant for slokkevann

Terrasse Veranda

🧱 Tre

Antall: 2

Veranda utvidelse på flere plan

Utvidelse av verandaer på bolig

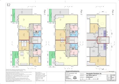
Plantegning

Enebolig 587.8 m²

Etasje 1 154.0 m²

Rom Areal Vinduer Dører
Bod 001 8.3 m² 0 1
Bod 002 5.1 m² 0 1
Felles bod 003 10.6 m² 0 1
Gang 004 3.3 m² 0 3
Vaskerom 005 13.7 m² 0 1
Rulle 006 11.8 m² 0 1
Trapperom 007 15.4 m² 0 2
Sport 008 8.6 m² 0 1
Sport 009 10.7 m² 0 1
Sport 010 8.3 m² 0 1
Felles vaskerom 011 3.2 m² 0 1
Kjellerrom felles 012 22.1 m² 0 1
Stue 101 35.2 m² 3 2
Soveværelse 102 12.5 m² 1 1
Bad 103 6.8 m² 0 1
Kjøkken 104 15.3 m² 1 1
Gang 105 8.5 m² 0 2
Bilverksted 106 0.0 m² 0 1
Smie 107 0.0 m² 0 1
Dekk-hotel 108 0.0 m² 0 1
Vare-mottak 109 0.0 m² 0 1
Dekk-lager 110 0.0 m² 0 1
Stor-biler 111 0.0 m² 0 1
Lastebil 112 0.0 m² 0 1
Dekk-hotel 113 0.0 m² 0 1
Bilverksted 114 0.0 m² 0 1

Etasje 2 144.6 m²

Rom Areal Vinduer Dører
Stue 201 31.0 m² 1 1
Soverom 1 202 12.5 m² 0 1
Soverom 2 203 12.2 m² 0 1
Kjøkken 204 7.4 m² 0 1
Bad 205 4.2 m² 0 1
Gang 206 5.9 m² 0 2
Veranda 207 4.6 m² 1 0
Øvre del dekk-lager 208 120.0 m² 0 0
Dekk-lager 209 120.0 m² 0 0
Sikkert lagerrom 210 25.0 m² 0 1

Etasje 3 144.6 m²

Rom Areal Vinduer Dører
Stue 301 31.0 m² 1 1
Soverom 1 302 12.5 m² 0 1
Soverom 2 303 12.2 m² 0 1
Kjøkken 304 7.4 m² 0 1
Bad 305 4.2 m² 0 1
Gang 306 5.9 m² 0 2
Veranda 307 4.6 m² 1 0

Etasje 4 144.6 m²

Rom Areal Vinduer Dører
Stue 401 14.2 m² 1 1
Soverom 1 402 6.5 m² 0 1
Soverom 2 403 11.7 m² 0 1
Bod 404 4.4 m² 0 1
Bod 405 4.4 m² 0 1
Bod 406 8.0 m² 0 1
Bod 407 18.9 m² 0 1
Trapperom 408 4.7 m² 0 1

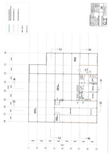
Plasthall 150.0 m²

Etasje 1 150.0 m²

Rom Areal Vinduer Dører
Hovedrom 101 150.0 m² 0 1
Hovedrom 150.0 m² 0 1

Fasader

Enebolig

Nord
Materiale
Tre
Taktype
Saltak
Vinduer
10
Dører
1
Balkonger
2
Synlige etasjer
3
Sør
Materiale
Tre
Taktype
Saltak
Vinduer
4
Dører
1
Balkonger
1
Synlige etasjer
3
Vest
Materiale
Tre
Taktype
Saltak
Vinduer
8
Dører
1
Synlige etasjer
3
Øst
Materiale
Tre
Taktype
Saltak
Vinduer
5
Dører
1
Balkonger
1
Synlige etasjer
3
Ukjent
Materiale
Tre
Taktype
Saltak
Vinduer
6
Dører
1
Balkonger
2
Synlige etasjer
2

Hendelser

13.04.2026 23/05966-16 Ivar Aasens gate 16 - Anmodning om uttalelse i forbindelse med søknad om dispensasjon – byggegrense mot vei
20.03.2026 23/05966-14 Gnr. 116 Bnr. 375 - Søknad om dispensasjon fra byggegrense
01.09.2025 23/05966-10 Hagbart Brinchmanns vei 1 C, Foreløpig tilbakemelding på søknad dispensasjon
01.09.2025 23/05966-11 Vedr. BYGG-25-00674-4 - Hagbart Brinchmanns vei 1 C, Tilbakemelding på søknad om endret/utvidet bruk av avkjørsel - Søknad om dispensasjon.
30.05.2025 23/05966-9 Vedr. BYGG-25/00017-7 - Vedtak om dispensasjon fra byggegrense langs vei i Tollinspektør Flors gate 18
27.11.2024 23/05966-8 Vedr. BYGG-24-00933-8 - Heyerdahlenga 2, Uttalelse fra Kommunalteknikk til søknad om dispensasjon fra byggegrense vei
27.02.2024 23/05966-6 Uttalelse i forbindelse med søknad om dispensasjon fra regulert offentlig kjørevei og byggegrense langs denne for oppføring av nytt bygg
02.02.2024 23/05966-5 Gnr. 32 bnr. 259, Anmodning om uttalelse i forbindelse med søknad om dispensasjon fra regulert offentlig kjørevei og byggegrense langs denne for oppføring av nytt bygg
23.01.2024 23/05966-4 Johan P. Clausens gate 17F - Uttalelse til søknad om dispensasjon fra byggegrense langs vei
04.01.2024 23/05966-3 Johan P. Clausens gate 17F - anmodning om uttalelse