NewConstruction UnderBehandling Enebolig

Ny enebolig med garasje og basseng i Preståsen 20, Blommenholm

📍 Preståsen 20 , 1365 BLOMMENHOLM

Nøkkelinfo

Sakstype
Nybygg
Bygningstype
Enebolig
Bruksareal
462 m²
Boenheter
1
Kommune
Bærum
Fylke
Akershus
Gnr / Bnr
9 / 170
Saksnummer
2025/31459
Fase
Under behandling

Om byggesaken

Ny frittliggende enebolig på totalt 462 m² BRA fordelt på underetasje, 1. og 2. etasje, med tradisjonell arkitektur inspirert av 1920-tallsklassisisme. Boligen har valmet tak, smårutete vinduer, og flere balkonger og altaner. Det etableres utendørs svømmebasseng og opparbeides støttemur for planert uteoppholdsareal mot sørvest. Eksisterende bolig rives, og eksisterende ulovlig garasje fjernes, med parkering løst på terreng. Bygget er tilpasset terreng og reguleringsplan, men det er søkt dispensasjon for takterrasse som senere er fjernet etter kommunens tilbakemelding. Uteoppholdsarealet er på ca. 549 m², og bebygd areal er ca. 176 m² for boligen, med parkering på terreng.

Produkter og materialer

Garasje Parkering på terreng

Antall: 2

Parkering erstatter tidligere ulovlig garasje, 2 plasser på terreng

Parkering på terreng etter fjerning av ulovlig garasje.

Elektro Utendørs belysning

Lysmaster plassert iht. normer, 1,75 m fra asfaltkant

Utendørs belysning og lysmaster i henhold til kommunale krav.

Bad Bad og dusjrom

Antall: 4

Flere bad og dusjrom i underetasje og 1. etasje med standard badinnredning.

Grunnarbeid Planering og terrengarbeid

Planert terreng med kotehøyder dokumentert, uteoppholdsareal ca. 549 m²

Planering av tomt og utearealer for funksjonelt uteoppholdsareal og adkomst.

Tak Valmet saltak

🧱 Takstein

Antall: 1

Mønehøyde ca. 8,8-9 m, gesimshøyde ca. 7 m

Valmet saltak med tradisjonell takstein, tilpasset arkitekturen.

Vinduer Smårutete vinduer

🧱 Tre

Antall: 39

Totalt 39 vinduer i ulike rom og fasader, hovedsakelig smårutete i tradisjonell stil.

VVS Svømmebasseng teknisk

Antall: 1

Basseng med pumpe og tilbakestrømningssikring iht. NS-EN 1717, avløp til privat spillvannsledning

Utendørs svømmebasseng med tekniske løsninger for vannfylling og tømming i henhold til regelverk.

VVS Overvannshåndtering

Fordrøyningsmagasin ca. 1600 liter, infiltrasjon, permeabel dekke på kjøreareal

Overvann håndteres lokalt med infiltrasjon, permeabel dekke og fordrøyningsmagasin.

Tømrer Innvendige og utvendige trearbeider

🧱 Tre

Trekledning, vinduer, dører, balkonger, verandaer i tre

Tømrerarbeider for boligens konstruksjoner, kledning og detaljer.

Fasade Trekledning

🧱 Tre

Antall: 1

Tradisjonell trekledning i stil med 1920-tallsklassisisme

Fasader med trekledning i tradisjonell stil, harmonisk tilpasset området.

Maling Utvendig maling

Overflater malt i tradisjonell fargepalett tilpasset området

Maling av fasader og utvendige treverk i tradisjonelle farger.

Dører Ytterdører og balkongdører

🧱 Tre

Antall: 20

Totalt 20 dører inkludert ytterdører og balkongdører i tre, tilpasset tradisjonell arkitektur.

Balkong Balkonger og altaner

🧱 Tre og stålrekkverk

Antall: 5

Balkonger med stålrekkverk, noen overbygde verandaer, takterrasse fjernet

Flere balkonger og altaner, inkludert overbygde verandaer, takterrasse fjernet etter kommunens tilbakemelding.

Mur Støttemur

🧱 Betong/mur

Antall: 1

Eksisterende støttemur mot Preståsen, ikke ny, stabilitet dokumentert

Eksisterende støttemur for uteoppholdsareal, ikke nytt tiltak, stabilitet vurdert.

Trapper Innvendig trapp

Antall: 1

Innvendig trapp mellom etasjer i eneboligen.

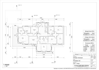
Plantegning

Enebolig 290.9 m²

Etasje 1 154.1 m²

Rom Areal Vinduer Dører
Salong 101 17.0 m² 1 1
Gang 102 9.3 m² 0 3
Gjesterom 103 7.3 m² 1 1
Kontor 104 4.5 m² 1 1
Garderobe 105 13.4 m² 0 1
Sov 1 106 16.9 m² 1 1
Bad 107 7.1 m² 0 1
Dusj 108 1.7 m² 0 0
Sov 2 109 10.7 m² 1 1
Sov 3 110 10.7 m² 1 1
Gang 111 4.0 m² 0 2
Bad 112 6.6 m² 0 1
Sov 4 113 10.1 m² 1 1
Hall 114 15.1 m² 0 1
WC 115 1.6 m² 0 1
Omkledning 116 8.0 m² 0 1
Terrasse 117 26.4 m² 0 1

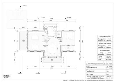
Etasje 2 136.8 m²

Rom Areal Vinduer Dører
Kontor 201 8.1 m² 1 1
Peis-/TV-Stue 202 24.7 m² 2 1
Vinskop 203 3.1 m² 0 1
Pantry 204 1.6 m² 0 1
WC 205 2.0 m² 0 1
Kjøkken/Stue/Spis 206 92.0 m² 4 2

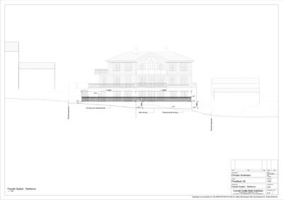
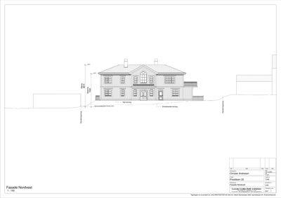
Fasader

Enebolig

Nordvest
Materiale
Tre
Taktype
Saltak
Høyde
7.0 m
Mønehøyde
8.9 m
Vinduer
10
Dører
2
Balkonger
2
Synlige etasjer
2
Sydøst
Materiale
Tre
Taktype
Saltak
Høyde
5.9 m
Mønehøyde
9.0 m
Vinduer
11
Dører
2
Balkonger
3
Synlige etasjer
2
Nord
Materiale
Tre
Taktype
Flatt tak
Høyde
4.0 m
Vinduer
6
Dører
1
Balkonger
1
Synlige etasjer
1
Sør
Materiale
Tre
Taktype
Flatt tak
Høyde
4.0 m
Vinduer
6
Dører
1
Balkonger
1
Synlige etasjer
1
Vest
Materiale
Tre
Taktype
Saltak
Høyde
4.0 m
Vinduer
0
Dører
0
Balkonger
1
Synlige etasjer
1
Sydvest
Materiale
Tre
Taktype
Saltak
Høyde
7.0 m
Mønehøyde
8.9 m
Vinduer
7
Dører
1
Balkonger
2
Synlige etasjer
2
Nordøst
Materiale
Tre
Taktype
Saltak
Høyde
7.0 m
Mønehøyde
8.9 m
Vinduer
4
Dører
1
Balkonger
2
Synlige etasjer
2

Hendelser

15.04.2026 Supplering av søknad - Preståsen 20 - enebolig - basseng - riving eksisterende bebyggelse
10.04.2026 Tilbakemelding om takterrasse og visuelle kvaliteter - Preståsen 20 - enebolig - basseng - riving eksisterende bebyggelse
09.04.2026 Supplering av søknad - Preståsen 20 - enebolig - basseng - riving eksisterende bebyggelse
07.04.2026 Nye nabomerknader - Preståsen 20 - enebolig - basseng - riving eksisterende bebyggelse
07.04.2026 Nabomerknad - Preståsen 20 - enebolig - basseng - riving eksisterende bebyggelse
31.03.2026 Supplering av søknad - Preståsen 20 - enebolig - basseng - støttemur - riving eksisterende bebyggelse
26.03.2026 Tilbakemelding nr 2 om behov for komplettering - Preståsen 20 - enebolig - basseng - støttemur - riving eksisterende bebyggelse
20.03.2026 Uttalelse Vann og avløp - Preståsen 20 - enebolig - basseng - støttemur - riving eksisterende bebyggelse
19.03.2026 Uttalelse fra Vei og trafikk - suppleringer - Preståsen 20 - enebolig - basseng - støttemur - riving eksisterende bebyggelse
19.03.2026 Intern oversendelse av suppleringer - Preståsen 20 - enebolig - basseng - støttemur - riving eksisterende bebyggelse
13.03.2026 Nabomerknad - Preståsen 20 - enebolig - garasje - basseng - støttemur - riving
13.03.2026 Nabomerknad - Preståsen 20 - enebolig - garasje - basseng - støttemur - riving
05.03.2026 Supplering av søknad - Preståsen 20 - enebolig - garasje - basseng - støttemur - riving
04.03.2026 Forespørsel om tilbakemelding - Preståsen 20 - enebolig - garasje - basseng - støttemur - riving
02.03.2026 Oversender søknad for uttalelse - Preståsen 20 - enebolig - garasje - basseng - støttemur - riving
27.02.2026 Svar på spørmål om endringer på garasje og dispensasjon byggegrense - Preståsen 20 - enebolig - garasje - basseng - støttemur - riving
26.02.2026 Svar på henvendelse om eksisterende garasje og støttemur - Preståsen 20 - enebolig - garasje - basseng - støttemur - riving
26.02.2026 Tilbakemelding - Preståsen 20 - enebolig - garasje - basseng - støttemur - riving
24.02.2026 Ber om avklaring - Preståsen 20 - enebolig - garasje - basseng - støttemur - riving
13.02.2026 Svar på mangelbrev - Preståsen 20 - enebolig - garasje - basseng - støttemur - riving
09.02.2026 Bekreftelse på mottatt søknad - behov for komplettering - Preståsen 20 - enebolig - garasje - basseng - riving
21.01.2026 Tillegg til nabomerknad - Preståsen 20 - enebolig - riving av eksisterende
20.01.2026 Nabomerknad - Preståsen 20 - enebolig - riving av eksisterende
19.01.2026 Supplering - Preståsen 20 - enebolig - riving av eksisterende
08.01.2026 Uttalelse Vann og avløp - Preståsen 20 - riving av eksisterende bolig - ny enebolig - ny dobbeltgarasje - utendørs svømmebasseng
07.01.2026 Uttalelse PLNK v/Kulturvern - Preståsen 20 - riving av eksisterende bolig - ny enebolig - ny dobbeltgarasje - utendørs svømmebasseng
24.12.2025 Intern oversendelse - Preståsen 20 - riving av eksisterende bolig - ny enebolig - ny dobbeltgarasje - utendørs svømmebasseng
24.12.2025 Uttalelse fra Vei og trafikk - Preståsen 20 - riving av eksisterende bolig - ny enebolig - ny dobbeltgarasje - utendørs svømmebasseng
17.12.2025 Rammesøknad - Preståsen 20 - riving av eksisterende bolig - ny enebolig - ny dobbeltgarasje - utendørs svømmebasseng
16.12.2025 Nabomerknad - Preståsen 20 - nytt hus - riving av eksisterende
16.12.2025 Innsigelser - Preståsen 20 - nytt hus - riving av eksisterende
16.12.2025 Innsigelser - Preståsen 20 - nytt hus - riving av eksisterende
08.12.2025 Nabomerknad - Preståsen 20 - nytt hus - riving av eksisterende