NewConstruction Ferdigattest Enebolig

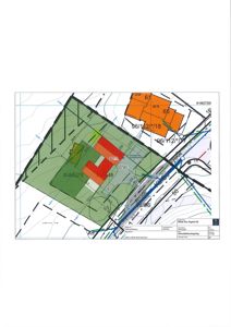
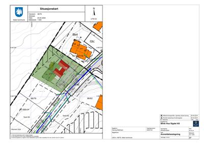
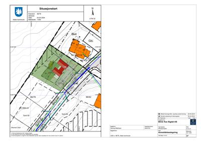
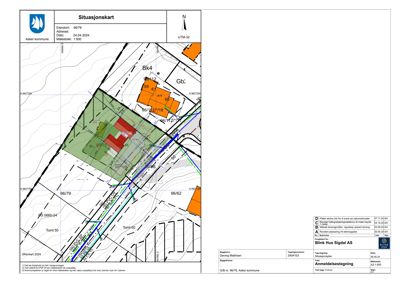
Ny enebolig med støttemur i Rødsåslia 67, Asker

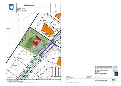
📍 Rødsåslia 67 , 1389 HEGGEDAL

Nøkkelinfo

Sakstype
Nybygg
Bygningstype
Enebolig
Bruksareal
243 m²
Boenheter
1
Kommune
Asker
Fylke
Akershus
Gnr / Bnr
96 / 78
Saksnummer
24/2366
Fase
Ferdigattest

Om byggesaken

Ny enebolig i to etasjer med totalt 242,9 m² BRA og 229 m² BYA på tomt på 1400,9 m² i Rødsåslia 67, Asker. Boligen har en underetasje og en 1. etasje med funksjoner som kjøkken/stue, flere soverom, bad, vaskerom, garderobe, gang og bodarealer. Bygget har saltak og flate tak, med fasader i tre og flere balkonger og terrasser. Det er etablert støttemur med maksimal høyde 1 meter, terrengtilpasning i henhold til kommuneplanens bestemmelser, og trinnfri adkomst. Det er planlagt frittstående eller integrert garasje/sportsbod på 50 m². Overvann håndteres lokalt med infiltrasjon og fordrøyningsbasseng. Bygget er prosjektert og utført med ansvarlige foretak innen arkitektur, grunnarbeid, tømrer, mur, VVS og elektro, og det foreligger ferdigattest.

Arbeidsomfang

- Oppføring av ny enebolig på tomtefeltet. - Terrengbearbeiding: Skjæring og fylling for å tilpasse kotehøyden (maksimal høydeforskjell under 1,5 meter). - Grunnarbeider og oppføring av grunnmur (eksisterende eldre grunnmur fra uthus fjernes). - Oppføring av hovedbygning med totalt BYA på 161 m². - Oppføring av garasje/sportsbod med to parkeringsplasser (50 m²). - Totalt areal for ny bebyggelse (BYA) blir 229 m² inkludert garasje og terrengparkering. - Utarbeidelse av uteoppholdsarealer etter fjerning av eksisterende grunnmur.

Produkter og materialer

Betong Plate på mark og støttemur

🧱 Betong

Støpt betongplate på mark, støttemur med maks 1 meter høyde

Betongarbeid for fundament og støttemur i tråd med reguleringsplan og kommuneplan

Ventilasjon Ventilasjonsanlegg for boenhet

Ventilasjonsanlegg inkl. kanalføringer for boenheten

Ventilasjon for inneklima i bolig

Trapper Innvendig trapp

🧱 Tre eller betong

Antall: 1

Innvendig trapp mellom underetasje og 1. etasje

Innvendig trapp i bolig for etasjeadkomst

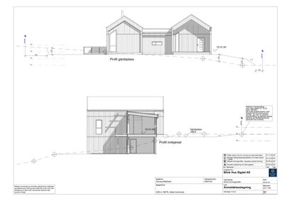
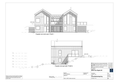
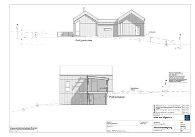
Tak Saltak og flate tak

🧱 Takstein eller metall

Saltak på hovedbygg og flate tak på enkelte fasader

Tak med saltak og flate tak, tradisjonelt og moderne uttrykk

VVS Vannbåren gulvvarme og ovn/kamin/peis

Varmefordeling med vannbåren gulvvarme og ovn/kamin/peis, energiforsyning elektrisitet

Varmeanlegg med vannbåren gulvvarme og peis/ovn for komfort og effektiv oppvarming

Grunnarbeid Grunnmur, fundamenter, drenering og overvannshåndtering

🧱 Betong, drensrør

Grunnmur og fundamenter i betong, drenering og overvann ført til infiltrasjonsmagasin

Grunnarbeid med fundamentering, drenering og overvannshåndtering i henhold til godkjente planer

Elektro Elektrisk anlegg

Elektrisk energiforsyning og installasjon

Elektroinstallasjoner for bolig med elektrisitet som energikilde

Terrasse Terrasser og balkonger

Terrasser og balkonger tilknyttet bolig

Uteplasser i form av terrasser og balkonger

Mur Flisarbeider og membran på våtrom

🧱 Fliser og membran

Membranarbeider og flislegging i våtrom

Våtromsarbeider med membran og fliser for fuktsikring og estetikk

Dører Ytterdører og balkongdører

🧱 Tre eller kompositt

Antall: 12

Ytterdører og balkongdører i fasader, inkludert trinnfri adkomstdør

Ytterdører og balkongdører med god isolasjon og sikkerhet

Vinduer Fasadevindu

🧱 Tre med 3-lags energiglass

Antall: 14

Vinduer i fasader, inkludert store vindusflater i stue/kjøkken

Fasadevinduer i tre med energiglass for god isolasjon og lysinnslipp

Annet Avfallshåndtering

Avfallsrapport med sorteringsgrad 94,83%

Avfallshåndtering og sortering i byggeperioden

Gulv Innvendige gulvflater

Gulv i bolig, ikke detaljert spesifisert

Innvendige gulvflater i bolig

Bad Bad og vaskerom

Bad og vaskerom med sanitærinstallasjoner

Sanitærinstallasjoner og overflater i bad og vaskerom

Garasjeport Garasjeport til planlagt garasje

Antall: 1

Garasjeport til garasje/sportsbod på 50 m²

Garasjeport for biloppstilling

Fasade Stående kledning i tre

🧱 Tre

Fasader med stående trepanel

Fasade med stående kledning i tre for et moderne og tidløst uttrykk

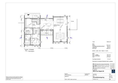
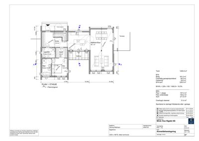
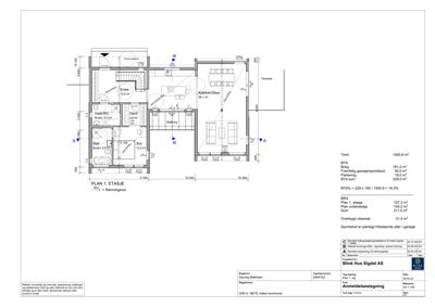
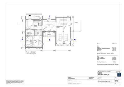
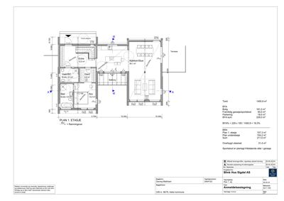
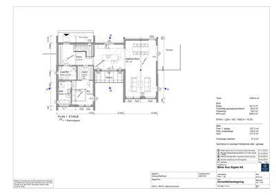
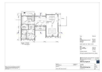
Plantegning

Enebolig 213.1 m²

Etasje 1 107.3 m²

Rom Areal Vinduer Dører
Kjøkken/Stue 101 58.1 m² 1 1
Sov 102 12.0 m² 1 1
Bad 103 6.9 m² 0 1
Vask/WC 104 5.7 m² 0 1
Gard. 105 4.8 m² 0 1
Entre 106 12.5 m² 0 2
Balkong 107 0.0 m² 0 0

Etasje 0 105.8 m²

Rom Areal Vinduer Dører
Bad 001 6.5 m² 0 1
Tekn. 002 3.7 m² 0 1
Gang 003 2.1 m² 0 2
Gang 004 9.6 m² 1 2
Sov 005 9.5 m² 1 2
Sov 006 9.5 m² 1 2
Stue 007 17.1 m² 1 2
Bod 008 5.5 m² 1 1
Bod 009 7.0 m² 1 1
Gang 010 6.9 m² 1 2
Sov 011 17.6 m² 1 2

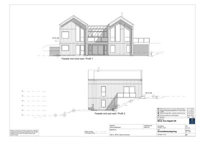
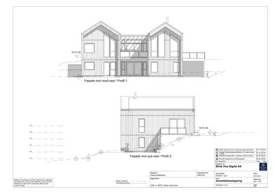
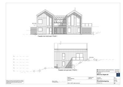
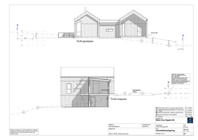
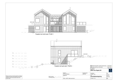
Fasader

Enebolig

Syd-øst
Materiale
Tre
Taktype
Saltak
Høyde
4.0 m
Mønehøyde
6.4 m
Vinduer
2
Dører
1
Balkonger
1
Synlige etasjer
2
Nord-øst
Materiale
Tre
Taktype
Flatt tak
Høyde
4.5 m
Mønehøyde
4.5 m
Vinduer
4
Dører
1
Synlige etasjer
2
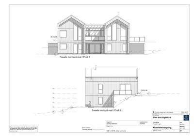
Nordvest
Materiale
Tre
Taktype
Saltak
Høyde
6.5 m
Mønehøyde
8.2 m
Vinduer
6
Dører
3
Balkonger
1
Synlige etasjer
2
Sydvest
Materiale
Tre
Taktype
Flatt tak
Høyde
6.5 m
Mønehøyde
8.8 m
Vinduer
3
Dører
1
Balkonger
1
Synlige etasjer
2
Nordøst
Materiale
Tre
Taktype
Saltak
Høyde
6.7 m
Mønehøyde
8.8 m
Vinduer
2
Dører
1
Synlige etasjer
2
Sydøst
Materiale
Tre
Taktype
Saltak
Høyde
6.7 m
Mønehøyde
8.8 m
Vinduer
2
Dører
1
Synlige etasjer
2
Ukjent
Materiale
Tre
Taktype
Saltak
Høyde
6.7 m
Mønehøyde
8.4 m
Vinduer
2
Dører
1
Synlige etasjer
2

Hendelser

07.04.2026 96/78 , Tomt 120, Rødsåsen- Oversendelse av klage til Statsforvalter klage
17.03.2026 96/78 Rødsåslia 67 - Tilbakemelding
06.03.2026 96/78, Tomt 120, Rødsåsen - Kvittering for mottatt klage klage
06.03.2026 96/78, Tomt 120, Rødsåsen - Anmodning om uttalelse til klage klage
18.07.2025 96/78 Rødsåslia 67 - Klage på vedtak om ferdigattest ferdigattest
11.07.2025 96/78 Rødsåslia 67 - Nybygg enebolig - Ferdigattest ferdigattest
06.06.2025 96/78 Rødsåsen 67 - Søknad om ferdigattest ferdigattest
23.05.2025 96/78 - Rødsåslia 67 - Mulig ulovlighet
13.05.2025 96/78 Rødsåslia 67 - Beliggenhetskontroll
27.11.2024 96/78 Rødsåslia - Nytt vedtak om tillatelse til tiltak i ett trinn - Nybygg enebolig byggetillatelse
27.11.2024 96/78 Rødsåslia - Spørsmål til BYA- og BRA-utregning - Nybygg enebolig
27.11.2024 96/78 Rødsåslia - Vedtak om omgjøring av gitt tillatelse til nybygg enebolig - Vedtak av 17.09.24 oppheves vedtak
26.11.2024 96/78 Rødsåslia - Utregning av BYA og BRA
22.11.2024 96/78 Rødsåslia - Tilsvar på klage på vedtak klage
19.11.2024 96/78 Rødsåslia - Ber om tilbakemelding
17.11.2024 96/78 Rødsåslia - Kommunen ser det ikke nødvendig med ny nabovarsling - Behov for tilsvar til klage - Nybygg nabovarsel
07.11.2024 96/78 Rødsåslia - Vedrørende klagesak klage
06.11.2024 96/78 Behov for nytt nabovarsel - Nybygg Rødsåslia nabovarsel
05.11.2024 96/78 Rødsåslia - Tilbakemelding på nabovarsel nabovarsel
24.10.2024 96/78 Rødsåslia - Kommunen vurderer omgjøring av tillatelse til tiltak i ett trinn for oppføring av nybygg enebolig byggetillatelse
24.10.2024 96/78 Rødsåslia - Supplering av søknad søknad
07.10.2024 96/78 Rødsåslia - Klage på vedtak klage
30.09.2024 96/78 Rødsåslia - Spørsmål til innsendt dokumentasjon - Boligspesifikasjon i matrikkelen
19.09.2024 96/78 Rødsåslia - Tillatelse til tiltak i ett trinn - Nybygg enebolig byggetillatelse
19.09.2024 96/78 Rødsåslia - Etterspurt dokumentasjon - Boligspesifikasjon i Matrikkelen
04.09.2024 96/78 Rødsåslia - Supplering av søknad søknad
30.08.2024 96/78 Rødsåslia - Ufullstendig søknad - Nybygg enebolig søknad
16.08.2024 96/78 Rødsåslia - Ber om status
20.06.2024 96/78 Tomt 120, Rødsåsen - Bekreftelse på at vi har mottatt din søknad søknad
20.06.2024 96/78 Rødsåslia - Søknad om nybygg enebolig søknad