NewConstruction Soeknad Enebolig

Ny enebolig med garasje i underetasje, Røykenveien 284

📍 Røykenveien 284A , 1389 HEGGEDAL

Nøkkelinfo

Sakstype
Nybygg
Bygningstype
Enebolig
Bruksareal
429 m²
Boenheter
1
Kommune
Asker
Fylke
Akershus
Gnr / Bnr
78 / 491
Saksnummer
26/1247
Fase
Søknad

Om byggesaken

Ny enebolig på totalt 428,6 m² fordelt på tre etasjer med garasje i underetasjen på 38,3 m². Bygget har betongfasader og flatt tak med gesimshøyde på 7,3 meter. Underetasjen inneholder garasje, bod, teknisk rom, vaskerom, sportsbod, entre, WC og sluse. Første etasje har kjøkken/stue, gang, omkledningsrom, tre soverom og to bad. Andre etasje inneholder terrasse på 71 m², mediarom og ekstra soverom/kontor. Bygget har en trapp og flere vinduer og dører fordelt på etasjene. Det er planlagt støyskjerming og dispensasjon for plassering nær nabogrense. Bygget er tilknyttet offentlig vann og avløp, og det er vurdert stabile grunnforhold.

Produkter og materialer

Tømrer Innvendige vegger og tak

🧱 Treverk

Innvendige vegger, tak og bjelkelag i treverk

Tømrerarbeid for innvendige konstruksjoner og overflater

Dører Ytterdører og innerdører

Antall: 16

Ytterdører og innerdører fordelt på garasje, bod, teknisk rom, entre, WC, sportsbod og boligrom

Ytterdører og innerdører tilpasset bolig og garasje, inkludert garasjeport

Rekkverk Terrasserekkverk

Rekkverk på terrasse på 71 m²

Sikring av terrasse med rekkverk iht. forskrifter

Betong Støttemur

🧱 Betong

Støttemur for terrengtilpasning og uteareal

Betongmur for terrengstøtte og uteplass

Elektro Elektrisk anlegg

Elektrisk anlegg for bolig og garasje iht. TEK

Installasjon av elektrisk anlegg med belysning og strømuttak

Vinduer Fasadevindu

🧱 3-lags glass

Antall: 14

Vinduer i betongfasade, fordelt på alle etasjer, totalt 14 stk

Fasadevindu i betongfasade med 3-lags energiglass for isolasjon og lysinnslipp

Annet Støyskjerming

Antall: 2

To støyskjermvegger knyttet til huset mot vei

Støyskjerming for uteareal mot trafikkert vei

Tak Flatt tak

Antall: 1

Flatt tak med gesimshøyde 7,3 m over terreng

Flatt takkonstruksjon med nødvendig isolasjon og membran

VVS Sanitær og varme

Vann, avløp, varme og ventilasjon tilknyttet offentlig nett

Installasjon av sanitærutstyr, varme- og ventilasjonsanlegg

Ventilasjon Mekanisk ventilasjon

Ventilasjonssystem for bolig iht. TEK

Mekanisk ventilasjon for inneklima og fuktstyring

Fasade Betongfasade

🧱 Betong

Betongfasader på alle sider med støyskjerming mot vei

Betongfasade med støyskjerm mot trafikkert vei for å redusere støybelastning

Garasjeport Port til garasje i underetasje

Antall: 1

Garasjeport i betongfasade nord med tilhørende mekanisme

Garasjeport for biladkomst til underetasje

Gulv Parkett og fliser

Gulv i oppholdsrom med parkett, fliser i våtrom

Innvendige gulvflater med parkett og fliser i bad og vaskerom

Terrasse Utendørs terrasse

Antall: 1

Terrasse på 71 m² mot syd-vest med støyskjerming

Utendørs terrasseareal med skjerming mot støy

Grunnarbeid Fundamentering og grunnmur

Fundamentering tilpasset stabile grunnforhold, vurdert i geoteknisk notat

Grunnarbeid med fundamentering og støttemur iht. geoteknisk vurdering

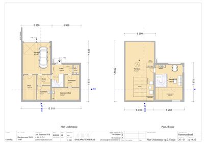
Plantegning

Enebolig 428.6 m²

Etasje 0 113.8 m²

Rom Areal Vinduer Dører
Garasje Garasje 38.3 m² 0 0
Bod BOD 13.9 m² 0 1
Teknisk TEKNISK 8.0 m² 0 1
Sluse Sluse 5.9 m² 0 2
Vaskerom/Bod Vaskerom/Bod 13.8 m² 0 1
Entre Entre 12.9 m² 0 1
WC WC 2.3 m² 0 1
Sportsbod Sportsbod 7.7 m² 0 1

Etasje 2 114.0 m²

Rom Areal Vinduer Dører
Terrasse Terrasse 71.0 m² 0 0
Tekjøkken Tekjøkken 0.0 m² 0 0
Mediarom Mediarom 34.0 m² 0 0
Ekstra sove/kontor EKSTRA SOV/KONTOR 0.0 m² 0 0

Etasje 1 200.8 m²

Rom Areal Vinduer Dører
Kjøkken/stue 101 39.3 m² 1 1
Gang 102 6.9 m² 0 3
Omkledn. 103 6.9 m² 0 2
Sov 104 8.1 m² 1 1
Gang 105 4.7 m² 0 2
Soverom 106 9.3 m² 1 1
Bad 107 3.6 m² 0 1
Bad 108 5.9 m² 0 1
Sov 109 15.4 m² 1 1

Fasader

Enebolig

Nord
Materiale
Betong
Høyde
7.3 m
Vinduer
3
Dører
1
Synlige etasjer
2
Øst
Materiale
Betong
Høyde
7.3 m
Vinduer
3
Dører
0
Synlige etasjer
2
Sør
Materiale
Betong
Taktype
Flatt tak
Høyde
7.3 m
Vinduer
3
Dører
0
Synlige etasjer
2
Vest
Materiale
Betong
Taktype
Flatt tak
Høyde
7.3 m
Vinduer
4
Dører
1
Synlige etasjer
2

Hendelser

21.04.2026 78/491 Røykenveien 284 - Søknad om rammetillatelse - Nybygg enebolig med garasje i u.etasje