NewConstruction Igangsettingstillatelse Enebolig

Ny enebolig med garasje i Samfunnsparken 25, Kapp

📍 Samfunnsparken 25 , 2849 KAPP

Nøkkelinfo

Sakstype
Nybygg
Bygningstype
Enebolig
Bruksareal
240 m²
Boenheter
1
Kommune
Østre Toten
Fylke
Innlandet
Gnr / Bnr
99 / 79
Saksnummer
2024/5580
Fase
Igangsettingstillatelse

Om byggesaken

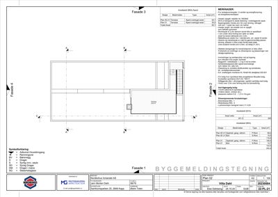
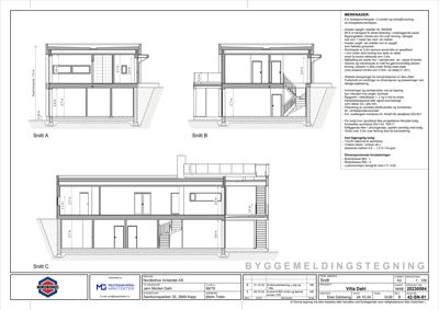
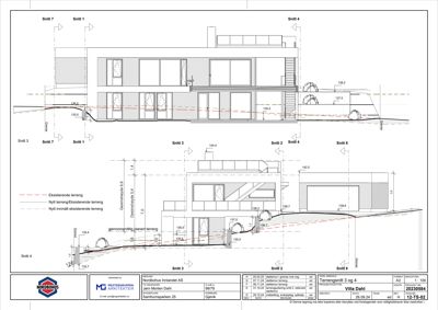
Ny enebolig på 240,4 m² BRA over to plan med tilhørende frittstående garasje på 42,3 m² oppføres på eiendommen Samfunnsparken 25, Kapp. Boligen har fasade med kombinasjon av trepanel og pusset kledning i lyse farger, tak med sort papptekking og inkluderer takterrasse med rekkverk i henhold til reguleringsplanens krav. Garasjen har saltak og flatt tak, med trepanel som fasademateriale. Tomten på 845 m² får opparbeidet uteoppholdsareal på 162 m², støttemurer inntil 1,5 meter, og overvann håndteres via regnbedd og infiltrasjon. Bygget er prosjektert med universell utforming, og har godkjente plasseringer og høyder innenfor reguleringsplanens rammer. Prosjektet har full ansvarsrett og obligatorisk kontroll, og midlertidig brukstillatelse er gitt for boligen.

Produkter og materialer

Grunnarbeid Veg- og grunnarbeider, landskapsutforming

Utført av Gjestvang Graveservice

Grunnarbeid og landskapsarbeid på tomt

Terrasse Overbygde terrasser

Terrasser på ca 90,7 m² totalt, fordelt på to plan

Uteplasser tilknyttet bolig

Rekkverk Rekkverk takterrasse

🧱 Glass/stål eller veggliv (parapet)

Rekkverk på takterrasse i henhold til reguleringsplanens krav

Sikkerhetsrekkverk på takterrasse

Tømrer Tømrerarbeider og montering av ventilasjonsanlegg

Utført av Nordbohus Innlandet AS

Tømrerarbeid i bolig

VVS Varme- og kuldeinstallasjoner

Varme- og kuldeinstallasjoner utført av Assemblin AS

Varme- og kuldeinstallasjoner i bolig

VVS Sanitæranlegg og innvendige bunnledninger

Sanitæranlegg og bunnledninger utført av Assemblin AS

VVS-installasjoner i bolig

Vinduer Fasadevindu med barnesikring

Vindu over 3,3 m over terreng skal ha barnesikring

Vinduer i bolig med barnesikring i henhold til TEK17

Fasade Trepanel og pusset kledning

🧱 Tre og pusset kledning

Fasade med trepanel i drivved farge 9041 og pusset kledning i farge 1453 Bomull

Fasadematerialer for bolig og garasje i lyse farger i henhold til reguleringsplan

Gulv Våtromsmembran og fliser

Våtromsmembran og fliser utført av Innlandet Flis og Mur AS

Membran og fliser i våtrom

Betong Plate på mark

🧱 Betong

Betongplate som grunnlag for bolig

Fundament og gulvplate

Grunnarbeid Grunnmur og radonduk

Grunnmur og radonduk utført av Dagfinn Olsen AS

Grunnarbeid og radonsikring

Grunnarbeid Utvendig VA og stikkledning

Utført av Assemblin AS og Gjestvang Graveservice

Vann- og avløpsledninger utvendig

Ventilasjon Ventilasjonsanlegg med kanalføringer

Ventilasjonsanlegg for boenheten utført av Flexit AS

Ventilasjon i bolig

Dører Ytterdører og garasjeporter

Ytterdører i bolig og garasje, garasjeport i tre

Dører til bolig og garasje

Tak Sort papptekking

🧱 Papptekking

Sort papptekking på bolig, saltak på garasje

Taktekking for bolig og garasje

Betong Støttemurer inntil 1,5 m høyde

🧱 Naturstein

Støttemurer i tomtegrense med nabosamtykke

Støttemurer for terrengtilpasning

Fasader

Garasje

Nord-vest
Materiale
Tre
Taktype
Flatt tak
Vinduer
0
Dører
1
Synlige etasjer
1
Sør-vest
Materiale
Tre
Taktype
Flatt tak
Vinduer
0
Dører
1
Synlige etasjer
1
Sør-øst
Materiale
Tre
Taktype
Flatt tak
Vinduer
0
Dører
0
Synlige etasjer
1
Nord-øst
Materiale
Tre
Taktype
Flatt tak
Vinduer
0
Dører
0
Synlige etasjer
1
3
Taktype
Saltak
Høyde
3.5 m
Mønehøyde
8.5 m
Vinduer
0
Dører
1
Synlige etasjer
1
4
Taktype
Saltak
Høyde
3.5 m
Mønehøyde
8.5 m
Vinduer
0
Dører
0
Synlige etasjer
1
2
Taktype
Saltak
Høyde
3.5 m
Mønehøyde
8.5 m
Vinduer
0
Dører
1
Synlige etasjer
1
1
Taktype
Saltak
Høyde
3.5 m
Mønehøyde
8.5 m
Vinduer
0
Dører
1
Synlige etasjer
1
Ukjent
Vinduer
0
Dører
0
Synlige etasjer
0

Hendelser

21.04.2026 Gbnr 99/79 - Samfunnsparken 25 - Enebolig - Midlertidig brukstillatelse
13.04.2026 Gbnr 99/79 - Samfunnsparken 25 - Supplering av søknad
30.03.2026 Gbnr 99/79 - Samfunnsparken 25 - Søknad om midlertidig brukstillatelse
04.02.2026 Gbnr 99/79 - Samfunnsparken 25 - Enebolig og garasje - Farge
28.01.2026 Gbnr 99/79 - Samfunnsparken 25 - Farge på hus - ref. reguleringsplan
16.04.2025 Gbnr 99/70 - Samfunnsparken 25 - Enebolig og garasje - Mottatte dokumenter
27.03.2025 Gbnr 99/79 - Samfunnsparken 25 - Endring av gitt tillatelse - Godkjenningsvedtak
27.03.2025 Gbnr 99/79 - Samfunnsparken 25 - Supplering av søknad
13.03.2025 Gbnr 99/79 - Samfunnsparken 25 - avklaring overvann
13.03.2025 Gbnr 99/79 - Samfunnsparken 25 - Søknad om endring av gitt tillatelse eller godkjenning
12.12.2024 Gbnr 99/79 - Samfunnsparken 25 - Enebolig og garasje - Godkjenningsvedtak
03.12.2024 Gbnr 99/79 - Samfunnsparken 25 - Ønsker revidert gjennomføringsplan
02.12.2024 Gbnr 99/79 - Samfunnsparken 25 - Supplering av søknad
28.11.2024 Gbnr 99/79 - Samfunnsparken 25 - Tilbakemelding
28.11.2024 Gbnr 99/79 - Samfunnsparken 25 - Svar på tilbakemelding
22.11.2024 Gbnr 99/79 - Samfunnsparken 25 - Søknad om tiltak