NewConstruction Soeknad Enebolig

Riving og ny enebolig med garasje i Sandmyrvegen 41

📍 Sandmyrvegen 41 , 4341 BRYNE

Nøkkelinfo

Sakstype
Nybygg
Bygningstype
Enebolig
Bruksareal
142 m²
Boenheter
1
Kommune
Klepp
Fylke
Rogaland
Gnr / Bnr
17 / 108
Saksnummer
26/00164
Fase
Søknad

Om byggesaken

Ny enebolig i to etasjer på 142,1 m² BRA med saltak og flatt tak på enkelte deler, oppføres i tre med murt overflate på gavlvegger. Boligen inneholder oppholdsrom, kjøkken, teknisk rom, bad, soverom, WC, matbod, bi-inngang, gang, dusj, og overdekt uteplass. Tilknyttet er en garasje på 34,8 m² med saltak og garasjeport, samt utebod og basseng med tilhørende bod og teknisk rom i hagen. Ny avkjørsel flyttes østover med bredde 4 meter. Terreng justeres med oppfylling og natursteinsmur. Fasader mot sør, nord og vest har flere vinduer og dører, og det er pipe på boligen. Prosjektet inkluderer riving av eksisterende bolig.

Produkter og materialer

Dører Ytterdører og terrassedører

Antall: 5

Totalt 5 dører på bolig fordelt på fasader, inkludert dør til garasje og utebod

Ytterdører til bolig, garasje og utebod

Terrasse Overdekt uteplass

Antall: 1

Overdekt uteplass tilknyttet bolig

Uteplass for opphold

Maling Utvendig og innvendig maling

Maling av trepanel og innvendige overflater

Overflatebehandling for bolig og garasje

VVS Bassengteknikk og sanitærinstallasjoner

Teknisk rom for basseng, sanitærinstallasjoner i bad, WC og dusj

VVS-installasjoner for bolig og basseng

Fasade Trepanel med murt overflate på gavlvegger

🧱 Tre og mur

Trepanel på fasader, murt overflate på gavlvegger på bolig, garasje og utebod

Fasadematerialer for bolig, garasje og utebod

Elektro Elektriske installasjoner

Elektriske installasjoner i bolig, garasje og utebod

Elektroarbeid for nybygg

Isolasjon Isolasjon i vegger, tak og gulv

Isolasjon iht. TEK for bolig og garasje

Isolasjon for energibesparende bygg

Vinduer Fasadevindu i tre etasjer

🧱 Tre

Antall: 20

Totalt 20 vinduer fordelt på fasader sør (10), nord (8), vest (2)

Vinduer til bolig i tre etasjer

Bad Bad og WC med dusj

Antall: 1

Bad 4,6 m², WC 2 m², dusjrom

Sanitærrom i bolig

Grunnarbeid Terrengjustering og oppfylling

Terreng skal fylles opp, natursteinsmur og skråning med beplantning etableres

Grunnarbeid for ny bolig og uteområder

Annet Natursteinsmur og beplantning

🧱 Naturstein

Natursteinsmur og skråning med beplantning ved ny avkjørsel

Landskapsarbeid og støttemur

Garasjeport Garasjeport til eneboliggarasje

Antall: 1

Garasjeport på garasje med saltak, 34,8 m²

Garasjeport for biloppstilling

Tømrer Bygging av bolig, garasje, utebod

🧱 Tre

Oppføring av bolig i tre, garasje og utebod

Tømrerarbeid for nybygg

Betong Fundament og grunnmur

Fundamentering og grunnmur for bolig og garasje

Betongarbeid for bygg

Tak Saltak og flatt tak

Saltak med 15 graders takvinkel på bolig og garasje, flatt tak på enkelte deler av bolig

Taktekking for bolig og garasje

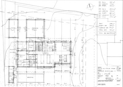
Plantegning

Enebolig 142.1 m²

Etasje 1 142.1 m²

Rom Areal Vinduer Dører
Oppholdsrom 101 17.4 m² 1 1
Kjøkken 102 35.1 m² 1 1
Teknisk rom 103 4.9 m² 0 1
Bad 104 4.6 m² 0 1
Bi-inngang 105 8.4 m² 0 1
Gang 106 9.3 m² 0 1
Soverom 107 8.4 m² 1 1
WC 108 2.0 m² 0 1
Matbod 109 2.7 m² 0 1
Utebod 110 17.1 m² 0 1
Garasje 111 34.8 m² 0 1
Bod 112 4.0 m² 0 1
Dusj 113 0.0 m² 0 1
Overdekt uteplass 114 0.0 m² 0 0
Basseng 115 0.0 m² 0 0

Fasader

Enebolig

Sør
Materiale
Tre
Taktype
Saltak
Vinduer
10
Dører
2
Synlige etasjer
2
Nord
Materiale
Tre
Taktype
Flatt tak
Vinduer
8
Dører
1
Synlige etasjer
2
Vest
Materiale
Tre
Taktype
Saltak
Høyde
6.0 m
Mønehøyde
8.7 m
Vinduer
2
Dører
1
Synlige etasjer
2

Garasje

Vest
Materiale
Tre
Taktype
Saltak
Høyde
3.8 m
Mønehøyde
4.8 m
Vinduer
0
Dører
0
Synlige etasjer
1

Hendelser

20.04.2026 26/00164-9 Tilleggsopplysning - rivning av eksisterende bolig og oppføring av ny bolig - gnr/bnr 17/108
09.04.2026 26/00164-8 Ber om uttale - Endring av eksisterende avkjørsel og plassering av garasje/bod - gnr/bnr 17/108
07.04.2026 26/00164-7 Kommentar til nabovarsling - Riving av eksisterende bolig, og oppføring av ny bolig - gnr/bnr 17/108 nabovarsel
07.04.2026 26/00164-6 Tilleggsopplysning - riving av eksisterende bolig, og oppføring av ny bolig - gnr/bnr 17/108
07.04.2026 26/00164-25 Videresender søknad om opplæring i norsk og samfunnskunnskap - Avskjermet søknad
07.04.2026 26/00164-24 Søknad om norskopplæring og introduksjonsprogram - Avskjermet søknad
07.04.2026 26/00164-23 Søknad om norskopplæring og introduksjonsprogram - Avskjermet søknad
23.03.2026 26/00164-5 Ber om tilleggsopplysninger - Riving av eksisterende bolig og oppføring av ny bolig - gnr/bnr 17/108
19.03.2026 26/00164-3 Svar på henvendelse - Søknad om riving og nybygg enebolig - gnr/bnr 17/108 søknad
16.03.2026 26/00164-22 Vedtak om rett til forberedende opplæring for voksne - Skoleåret 2025-2026 - Avskjermet vedtak
13.03.2026 26/00164-21 Oppfølging av søknad om norskopplæring søknad
05.03.2026 26/00164-20 Videresender søknad om opplæring i norsk og samfunnskunnskap søknad
04.03.2026 26/00164-19 Søknad om norskopplæring og introduksjonsprogram - Avskjermet søknad
26.02.2026 26/00164-18 Svar på søknad om norskopplæring - Avskjermet søknad
26.02.2026 26/00164-17 Svar på søknad om opplæring i norsk og samfunnskunnskap søknad
06.02.2026 26/00164-16 Vedtak om forberedende opplæring for voksne - Avskjermet vedtak
05.02.2026 26/00164-2 Henvendelse - Riving av eksisterende bolig, og oppføring av ny bolig - gnr/bnr 17/108
13.01.2026 26/00164-1 Rammesøknad - Riving av eksisterende bolig, og oppføring av ny bolig - gnr/bnr 17/108