NewConstruction Soeknad Enebolig

Ny enebolig med integrert garasje i Skeidsvegen 48

📍 Skeidsvegen 48

Nøkkelinfo

Sakstype
Nybygg
Bygningstype
Enebolig
Bruksareal
301 m²
Boenheter
1
Kommune
Vestnes
Fylke
Møre og Romsdal
Gnr / Bnr
6 / 245
Saksnummer
2026/1079
Fase
Søknad

Om byggesaken

Ny enebolig over to plan med totalt 300,9 m² BRA, inkludert integrert garasje på ca. 39 m², oppføres på tomt i Skeidsvegen 48. Boligen har saltak med gesimshøyde 6,5 m og mønehøyde 8,2 m, og er utført i trekledning med tegl takmateriale på deler av taket. Planløsningen omfatter blant annet TV-stue, fire soverom, tre bad, vaskerom, sportsbod, hagestue og takterrasse. Det etableres terrengmur i naturstein langs eiendomsgrense for å sikre tilstrekkelig avstand til teknisk infrastruktur i grunnen, med kulvert for kabel- og rørføringer. Bygget er tilpasset terrenget med ferdig innvendig gulv på kote 14,6–14,8, og det opparbeides uteoppholdsareal (MUA) på ca. 190 m². Det er planlagt minst to biloppstillingsplasser, hvorav minst én er overdekket i garasjen. Bygget er prosjektert med hensyn til energikrav, lufttetthet og fuktsikring, og det er etablert obligatorisk uavhengig kontroll for våtrom og lufttetthet.

Produkter og materialer

Bad Våtromsinnredning

Antall: 3

Tre bad inkludert badstu og dusj, med fuktsikring og lufttetthet kontrollert av ARTIKON AS

Bad og våtrom i bolig

Ventilasjon Ventilasjonsanlegg

Brannkonsept og ventilasjonsanlegg prosjektert og kontrollert

Ventilasjon for bolig

Tak Saltak med tegl og flatt tak over garasje

🧱 Tegl på saltak, flatt tak på garasje

Gesimshøyde 6,5 m, mønehøyde 8,2 m, takoverbygg på 2. etasje

Tak med saltak og tegl, flatt tak på garasje

Dører Ytterdører og skyvedører

🧱 Tre med frostet glass på inngangsdør, skyvedører til hagestue

Antall: 11

Inngangsdør med fri bredde 0,86 m, skyvedører til hagestue, dører til bad og andre rom

Ytterdører og innvendige dører i boligen

Rekkverk Glassrekkverk og tremmer

🧱 Glass og tre

Glassrekkverk H=1000 mm og tremmer på terrasse og trapper

Rekkverk på takterrasse og trapper

Fasade Trekledning

🧱 Tre

Trekledning på alle fasader

Fasade med trekledning

Grunnarbeid Terrengarbeid og fundamentering

Terrengarbeid med opparbeiding av uteoppholdsareal (MUA) på 190 m², fundamentering for bolig og terrengmur

Grunnarbeid for bolig, garasje og terrengmur

Vinduer Fasadevindu og takvindu

🧱 Tre med personsikkerhetsglass, gjennomgående sprosser

Antall: 17

Vinduer i fasader og takvindu med dagslyskrav LT 70%, personsikkerhetsglass (SG), frostet glass på enkelte dører

Vinduer i ulike rom, inkludert stue, soverom, hagestue og bad

Gulv Innvendige gulvflater

Isolerte gulvkonstruksjoner med krav til energiberegning

Gulv i bolig

Garasjeport Integrert garasjeport

Antall: 1

Garasjeport i fasade øst, integrert i bolig

Garasjeport til integrert garasje

Tømrer Byggkonstruksjon og bærende elementer

🧱 Tre, laminerte dragere, stålbjelker

Bærekonstruksjon i tre med skjulte laminerte dragere og innføyde ståldrager

Tømrerarbeid for bolig og garasje

Elektro Teknisk infrastruktur

Tekniske føringer i grunnen med kulvert for kabel- og rørføringer

Elektriske installasjoner og infrastruktur

VVS Sanitærinstallasjoner

Innvendig sanitæranlegg utført av Rørleggermester Are M. Fiskaa AS

VVS-installasjoner for bolig

Trapper Innvendig trapp

Antall: 1

Innvendig trapp i bolig, 18,3 m² gang/trapp område

Innvendig trapp mellom etasjer

Terrasse Takterrasse

Antall: 1

Takterrasse på 43,2 m² med rekkverk

Utendørs takterrasse

Mur Natursteinsmur terrengmur

🧱 Naturstein

Terrengmur i naturstein opp til 1,4 m høyde, plassert inntil eiendomsgrense med kulvert for tekniske føringer

Terrengmur for sikring og utearealutforming

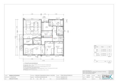
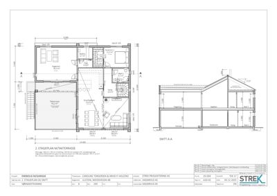
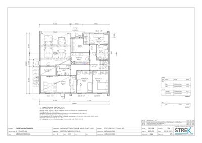
Plantegning

Enebolig 300.9 m²

Etasje 1 120.1 m²

Rom Areal Vinduer Dører
TV-stue 101 25.8 m² 1 1
Soverom 2 102 14.5 m² 1 1
Soverom 3 103 14.5 m² 1 1
Soverom 4 104 10.2 m² 1 1
Bad 1 105 6.7 m² 0 1
Vaskerom 106 8.9 m² 0 1
Bod/Fremt. bad 107 5.9 m² 0 1
Sportsbod 108 5.5 m² 0 1
Entre 109 9.0 m² 0 1
Gang/Trapp 110 18.3 m² 0 0

Etasje 2 180.8 m²

Rom Areal Vinduer Dører
Hagestue 201 30.3 m² 1 1
Takterrasse 202 43.2 m² 0 0
Stue/Kjøkken 203 52.0 m² 2 1
Gang 204 6.9 m² 0 2
Badstu 205 3.7 m² 0 1
Dusj 206 2.6 m² 0 0
Soverom 1 207 11.3 m² 1 1
Walk-in 208 4.4 m² 0 0
Bad 2 209 5.1 m² 0 1

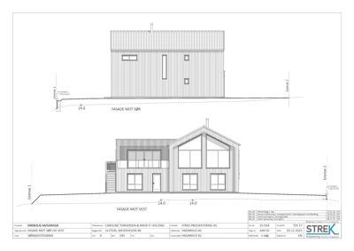
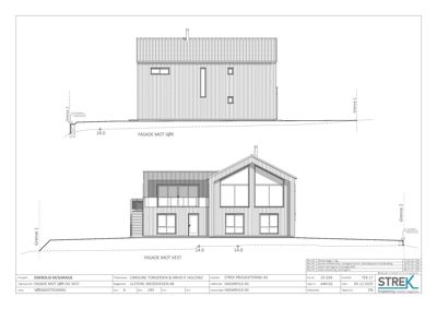
Fasader

Enebolig

Nord
Materiale
Tre
Taktype
Saltak
Høyde
6.5 m
Mønehøyde
8.2 m
Vinduer
3
Dører
1
Balkonger
1
Synlige etasjer
2
Øst
Materiale
Tre
Taktype
Saltak
Høyde
6.5 m
Mønehøyde
8.2 m
Vinduer
4
Dører
1
Synlige etasjer
2
Sør
Materiale
Tre
Taktype
Saltak
Takmat.
Tegl
Vinduer
4
Dører
0
Synlige etasjer
2
Vest
Materiale
Tre
Taktype
Saltak
Takmat.
Tegl
Vinduer
6
Dører
1
Balkonger
1
Synlige etasjer
2

Hendelser

21.04.2026 Mogleg løysning på Sak 26/1079 - dok. 26/4601
21.04.2026 Vurdering av terrengprofil og kotehøgd
08.04.2026 Tilbakemelding om manglar i søknad søknad
07.04.2026 Svar på mangelbrev
16.03.2026 Søknad om løyve i eit trinn søknad