NewConstruction UnderBehandling Enebolig

Ny enebolig med dispensasjoner i Skjåholmveien 117, Hammerfest

📍 Skjåholmveien 117 , 9620 KVALSUND

Nøkkelinfo

Sakstype
Nybygg
Bygningstype
Enebolig
Bruksareal
99 m²
Boenheter
1
Kommune
Hammerfest - Hámmerfeasta
Fylke
Finnmark - Finnmárku - Finmarkku
Gnr / Bnr
114 / 4
Saksnummer
2026/922
Fase
Under behandling

Om byggesaken

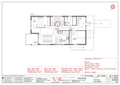
Ny frittliggende enebolig i to etasjer med et bebygd areal (BYA) på ca. 109 m² oppføres på eiendommen Skjåholmveien 117 i Hammerfest. Boligen erstatter tidligere bolig som ble totalskadet i brann og senere revet, og plasseres i hovedsak på samme sted som tidligere. Bygget har saltak med moderat takvinkel, hvitmalt liggende trekledning og mørk taktekking. Planløsningen omfatter stue, kjøkken/spisestue, gang, sov/gjesterom, bad og entré med totalt 99 m² BRA i første etasje. Fundamentering skjer direkte på banketter og punkfundamenter med plate på mark. Tomten er ryddet for tidligere konstruksjoner, og tiltaket er dokumentert å ha tilfredsstillende sikkerhet mot flom og skred i henhold til TEK17. Det er søkt dispensasjon fra kommuneplanens byggegrenser og avstandskrav, med godkjennelse fra relevante myndigheter. Parkering løses på egen tomt, og uteoppholdsareal er tilfredsstillende.

Produkter og materialer

Tak Saltak med taktekking

🧱 Mørk taktekking tilpasset klima og omgivelser

Antall: 1

Saltak med moderat takvinkel og mørk taktekking

Vinduer Fasadevindu

🧱 Moderne, nøktern utforming

Antall: 4

Vinduer i stue, kjøkken/spisestue, sov/gjesterom med tilfredsstillende dagslys og utsyn

Parkering Parkeringsplass på egen tomt

Antall: 2

Parkeringsareal for 2 biler på egen tomt, 36 m²

Parkering i tilknytning til bolig

Maling Utvendig og innvendig maling

Maling av yttervegger og innvendige flater

VVS Sanitærinstallasjoner

Sanitærinstallasjoner for bad og kjøkken

Trapper Innvendig trapp

Antall: 1

Innvendig trapp mellom etasjer

Elektro Elektriske installasjoner

Elektriske installasjoner for bolig

Grunnarbeid Rydding og grunnarbeid

Antall: 1

Tomten ryddet for tidligere konstruksjoner, fundamentering på banketter og punkfundamenter med plate på mark

Rydding av tomt og grunnarbeid for fundamentering

Terrasse Terrasse ved inngangsparti

Antall: 1

Terrasse på 6,4 m² ved inngangsparti

Uteoppholdsareal i tilknytning til bolig

Fasade Yttervegger

🧱 Hvitmalt liggende trekledning

Antall: 1

Yttervegger med hvitmalt liggende trepanel

Dører Ytterdører og innerdører

🧱 Moderne, nøktern utforming

Antall: 7

Ytterdør i entré og innerdører til rom i bolig

Betong Plate på mark

Antall: 1

Direktefundamentert på banketter og punkfundamenter

Betongplate på mark som fundament for bolig

Plantegning

Enebolig 99.0 m²

Etasje 1 99.0 m²

Rom Areal Vinduer Dører
Stue 101 18.5 m² 1 1
Kjøkken/spisestue 102 22.8 m² 1 1
Gang 103 15.3 m² 0 2
Sov/gjesterom 104 12.8 m² 1 1
Bad 105 6.0 m² 0 1
Entré 106 7.2 m² 0 1

Hendelser

22.04.2026 Svar på høring fra Statens vegvesen
22.04.2026 NVEs uttalelse om søknad om dispensasjon for oppføring av ny frittliggende enebolig
09.04.2026 Angående nytt bygg/boligformål - gbnr. 114/4 - Skjåholmveien 117 - Hámmerfeastta suohkan/Hammerfest kommune
08.04.2026 Innspill til søknad om dispensasjon for eiendom 114/4 - Skjåholmveien 117 - Hammerfest kommune
01.04.2026 Høring fra Næring og miljø om nytt bygg til boligformål
19.03.2026 Angående søknad om dispensasjon til behandling
18.03.2026 Høring om nytt bygg til boligformål
12.03.2026 Vi viser til deres brev datert 11.02.2026 - Oppføring av ny enebolig med dispensasjoner - komplettering rammesøknad
12.02.2026 Mangelbrev
28.01.2026 Skjåholmveien 117 Søknad om rammetillatelse 114/4