NewConstruction UnderBehandling Enebolig

Ny enebolig med carport i Skjellveien 7, Fredrikstad

📍 Skjellveien 7 , 1619 FREDRIKSTAD

Nøkkelinfo

Sakstype
Nybygg
Bygningstype
Enebolig
Bruksareal
223 m²
Boenheter
1
Kommune
Fredrikstad
Fylke
Østfold
Gnr / Bnr
203 / 579
Saksnummer
2026/3614
Fase
Under behandling

Om byggesaken

Ny enebolig på totalt 223,1 m² BRA fordelt på to etasjer med carport og bod. Første etasje på 133,1 m² inneholder kjøkken, stue, spisestue, hall, entré, WC, vaskerom, bad, to boder og ett soverom. Andre etasje på 90 m² har stue, fire soverom, bad og WC. Bygget er utført i trekonstruksjon med stående tradisjonell d-fals kledning av smale trebord, og har pipe. Fasader er i tre med flere vinduer og dører, gesimshøyde ca. 5,8-5,9 meter. Det er planlagt en balkong i andre etasje. Carporten er åpen med søyler og bod. Utomhusplan viser beplantning og terrengtilpasning. Overvann håndteres med fordrøyning og infiltrasjon på egen tomt. Bygget er tilpasset tomtegrenser, solforhold og omkringliggende bebyggelse med fokus på høy kvalitet og varige materialer.

Produkter og materialer

Ventilasjon Ventilasjonsanlegg

Ventilasjon planlegges iht boligstandard og TEK

Ventilasjonsanlegg for bolig

Grunnarbeid Grunnarbeider og fundamentering

Grunnarbeider utføres av Tomas Langvik AS og Grunnbygg AS

Grunnarbeid, fundamentering og mur- og betongarbeider

Elektro Elektriske installasjoner

Elektriske installasjoner planlegges iht gjeldende forskrifter

Elektroinstallasjoner for bolig

Fasade Yttervegg med stående d-fals kledning

🧱 Tre, smale trebord ca. 150 mm

Stående tradisjonell d-fals kledning, høy kvalitet og varige materialer

Kledning av yttervegger i tre med stående smale bord

Trapper Innvendig trapp

Antall: 1

Trapp med teknisk bod under, uten åpning mellom trinn

Innvendig trapp mellom etasjer med bod under

Maling Utvendig og innvendig maling

Overflater males iht arkitektens anvisninger

Maling av utvendige og innvendige flater

Tak Tak med pipe

Antall: 1

Pipe i bygget, takform og materialitet bekreftes av arkitekt og tiltakshaver

Tak med pipe, utførelse og materialvalg skal bekreftes

Gulv Innvendige gulvflater

Gulvflater i bolig, materialvalg ikke spesifisert

Innvendige gulvflater i bolig

Grunnarbeid Overvannshåndtering

Anlegg for fordrøyning og infiltrasjon av overvann på egen tomt

Overvannshåndtering med fordrøyning og infiltrasjon

Garasjeport Carport med åpen vegg og søyler

Antall: 1

Enkel carport med søyler og åpen vegg, evt spiler

Carport tilknyttet eneboligen for parkering

VVS Sanitærinstallasjoner og gass

Sanitærarbeider og gassinstallasjoner utføres av Fredrikstad Gass og VVS AS

VVS-installasjoner inkludert sanitær og gass

Bad Bad og våtrom

Antall: 2

Bad og WC i begge etasjer, våtrom prosjektert og utført av ansvarlig firma

Bad og WC med nødvendige installasjoner og overflater

Dører Ytterdører og balkongdører

🧱 Tre eller tilsvarende, høy kvalitet

Antall: 12

Dører i fasader og balkong iht tegninger

Ytterdører og balkongdører i tre eller tilsvarende materiale

Rekkverk Balkongrekkverk

🧱 Tre eller tilsvarende

Antall: 1

Rekkverk på balkong, tilpasset kledning og fasade

Rekkverk for balkong i andre etasje

Isolasjon Isolasjon i vegger og tak

Isolasjon iht TEK og prosjekteringskrav for energikrav

Isolasjon i klimaskall for energieffektiv bolig

Terrasse Balkong

🧱 Tre

Antall: 1

Balkong i andre etasje med rekkverk som flukter med kledning

Balkong tilknyttet eneboligen

Vinduer Fasadevindu i tre

🧱 Tre rammer, høy kvalitet

Antall: 11

Vinduer i fasader, antall og plassering iht tegninger

Vinduer i tre med høy kvalitet i fasader

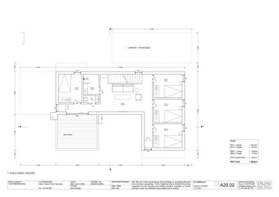
Plantegning

Enebolig 223.1 m²

Etasje 1 133.1 m²

Rom Areal Vinduer Dører
Kjøkken KJØKKEN 18.6 m² 0 1
Stue STUE 17.2 m² 1 1
Spisestue SPIS/STUE 17.3 m² 0 2
Hall HALL 7.7 m² 0 1
Entré ENTRE 7.5 m² 0 2
WC WC 1.8 m² 0 1
Bod BOD 1 6.4 m² 0 1
Vaskerom VASK 6.1 m² 0 2
Bad BAD 1 4.5 m² 0 2
Soverom SOV 1 17.0 m² 1 1
Bod BOD 2 7.8 m² 0 1

Etasje 2 90.0 m²

Rom Areal Vinduer Dører
Stue STUE 20.7 m² 2 1
Soverom 2 SOV 2 8.5 m² 2 1
Soverom 3 SOV 3 8.5 m² 2 1
Soverom 4 SOV 4 8.5 m² 2 1
Soverom 5 SOV 5 8.5 m² 1 1
Bad BAD 4 4.0 m² 0 1
WC WC 1.4 m² 0 1

Fasader

Enebolig

Nord-Øst
Materiale
Tre
Høyde
5.9 m
Vinduer
2
Dører
1
Synlige etasjer
2
Nord-Vest
Materiale
Tre
Høyde
5.9 m
Vinduer
2
Dører
1
Synlige etasjer
2
Syd-Vest
Materiale
Tre
Høyde
5.8 m
Vinduer
4
Dører
1
Synlige etasjer
2
Syd-Øst
Materiale
Tre
Høyde
5.8 m
Vinduer
3
Dører
1
Synlige etasjer
2

Hendelser

21.04.2026 Spørsmål om dokumentasjon er mottatt - Skjellveien 7 - Eiendom 203/579 - Nybygg - boligformål
13.04.2026 Skjellveien 7 - Vedrørende stikkledninger
09.04.2026 Stikkledning til eiendommen Skjellveien 7
25.02.2026 Skjellveien 7 - Eiendom 203/579 - Oppføring av enebolig - Uttalelse Teknisk forvaltning - Kommunalteknikk
11.02.2026 Mangelfull søknad - Oppføring av enebolig - Skjellveien 7 - Eiendom 203/579
06.02.2026 Anmodning om uttalelse - Oppføring av enebolig - Skjellveien 7
02.02.2026 Ett-trinns søknad - Skjellveien 7 - Eiendom 203/579 - Nybygg - boligformål
02.02.2026 Bekreftelse på mottatt søknad - Ett-trinns søknad - Nybygg - boligformål - Skjellveien 7 - Eiendom 203/579