NewConstruction Ferdigattest Enebolig

Ny enebolig med carport på Skreidsvikkroken 2, Geithus

📍 Skredsvikkroken 2 , 3360 GEITHUS

Nøkkelinfo

Sakstype
Nybygg
Bygningstype
Enebolig
Bruksareal
118 m²
Boenheter
1
Kommune
Modum
Fylke
Buskerud
Gnr / Bnr
43 / 388
Saksnummer
2025/3309
Fase
Ferdigattest

Om byggesaken

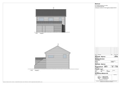
Ny enebolig på 118,5 m² BRA fordelt på to etasjer med saltak og takvinkel på 28°. Boligen har liggende trekledning, 3 soverom, bad, bod/vaskerom, sportsbod og carport på 22,5 m². Det er en trapp inne i boligen og en terrasse på 32,1 m². Vinduer i ulike størrelser og former, samt pipe og garasjeport inngår. Bygningen har god lufttetthet (0,5 luftvekslinger/time) og tilfredsstiller brannklasse 1 og risikoklasse 4. Det er installert elektriske varmekabler, ovn/peis og varmepumpe luft. Utvendig er det asfaltvei og tilknytning til offentlig vann og avløp. Sportsbod på 8,9 m² er tilgjengelig med trinnfri adkomst. Snøfangere monteres iht. Sintef byggforsk detaljblad.

Produkter og materialer

Trapper Innvendig trapp

🧱 Tre

Antall: 1

Trapp i hall/trapp-rom, 17 m² område

Innvendig trapp mellom etasjer

Tømrer Tømrerarbeider for konstruksjon og komplettering

🧱 Tre

Tømrerarbeider inkludert radonduk, våtrom, pipe og ventilasjon

Tømrerarbeid i bolig

Garasjeport Carport dør/port

🧱 Tre/Metall

Antall: 1

Carport på 22,5 m² med dør

Garasjeport/carport dør

Elektro Elektriske varmekabler og elektrisk anlegg

Elektriske varmekabler, elektrisk oppvarming, belysning og el-installasjoner

Elektrisk anlegg og varmekabler

Brannvern Brannslokkeutstyr

Håndslokkeapparat eller brannslange som rekker inn i alle rom

Brannvernutstyr i bolig

Dører Ytterdører og innerdører

🧱 Tre

Antall: 11

Ytterdør til bolig og carport, innerdører til rom

Dører til bolig og carport

Rekkverk Rekkverk på terrasse og trapp

🧱 Tre/Metall

Rekkverk iht. byggeforskrifter

Sikkerhetsrekkverk

Pipe Pipe for ovn/kamin

🧱 Mur/Metall

Antall: 1

Pipe for ovn/kamin i bolig

Pipe til ildsted

Fasade Liggende trekledning

🧱 Tre

Tradisjonell liggende kledning av trevirke

Fasade kledning

Betong Betongarbeider for fundament og konstruksjon

🧱 Betong

Betongarbeider fra konstruksjon til komplettering

Betongkonstruksjon og fundament

Varmepumpe Luft-til-luft varmepumpe

Antall: 1

Varmepumpe luft som energiforsyning

Varmepumpe for oppvarming

Gulv Gulv med elektriske varmekabler

Elektriske varmekabler i gulv

Oppvarming av gulv

Isolasjon Isolasjon i vegger og tak

🧱 Mineralull eller tilsvarende

Isolasjon iht. varmetapsberegninger

Isolasjon for varme og lyd

Tak Saltak med takvinkel 28°

🧱 Takstein eller lignende

Antall: 1

Snøfangere monteres iht. Sintef byggforsk detaljblad 525.931

Saltak med snøfangere

Terrasse Terrasse

🧱 Tre eller kompositt

Antall: 1

Terrasse på 32,1 m² i 2. etasje

Utendørs terrasse

Grunnarbeid Grunn- og terrengarbeider inkl. utvendig VA

Grunnarbeid, terrengjustering og tilknytning til offentlig vann og avløp

Grunnarbeid og VA-installasjon

Maling Utvendig og innvendig maling

🧱 Maling

Maling av trepanel og innvendige flater

Overflatebehandling

VVS Innvendig sanitæranlegg

Sanitærinstallasjoner i bad og vaskerom, vannmåler montert i bod/vaskerom

VVS-installasjoner for bolig

Vinduer Fasadevindu i ulike størrelser

🧱 Tre/Aluminium

Antall: 7

Åpningsbare vinduer for gjennomlufting, ulike former og størrelser

Vinduer i fasaden for lys og ventilasjon

Ventilasjon Ventilasjonsanlegg med avtrekks- og tilluftsventiler

Plassering av avtrekks- og tilluftsventiler, kombiboks, luftinntak og utforming for temperaturkontroll

Ventilasjonsanlegg for bolig

Plantegning

Enebolig 118.5 m²

Etasje 1 118.5 m²

Rom Areal Vinduer Dører
Vf 101 2.8 m² 0 1
Hall/Trapp 102 17.0 m² 0 2
Sov 103 9.2 m² 1 1
Sov 104 10.4 m² 1 1
Sov 105 10.6 m² 1 1
Bad 106 6.3 m² 0 1
Bod/Vask 107 8.1 m² 0 1
Sport 108 8.9 m² 1 1
Carport 109 22.5 m² 0 1

Fasader

Enebolig

Ukjent
Materiale
Tre
Taktype
Saltak
Vinduer
3
Dører
0
Balkonger
1
Synlige etasjer
2

Hendelser

16.04.2026 Søknad om ferdigattest - Gnr 43 bnr 388 - Skreidsvikkroken 2
30.07.2025 Tillatelse til oppføring av enebolig - Gnr 43 bnr 388 - Skredsvikkroken
14.07.2025 Søknad om ett-trinnsbehandling - Gnr 43 bnr 388 - Skreidsvikkroken