NewConstruction UnderBehandling Enebolig

Ny enebolig med sokkelleilighet og garasje i Skudebergvegen 26, Kvernaland

📍 Skudebergvegen 26 , 4355 KVERNALAND

Nøkkelinfo

Sakstype
Nybygg
Bygningstype
Enebolig
Bruksareal
299 m²
Boenheter
1
Kommune
Time
Fylke
Rogaland
Gnr / Bnr
28 / 995
Saksnummer
2025/2682
Fase
Under behandling

Om byggesaken

Ny enebolig på totalt 299 m² BRA fordelt over tre plan med saltak og sammenkoblet garasje på 18,8 m². Boligen inneholder flere soverom, bad, stue/kjøkken, hjemmekontor, vaskerom, bod, teknisk rom og sportsbod. Bygget er oppført i tre med saltak og har gesimshøyde rundt 6,6-6,9 meter og mønehøyde opp til 8,45 meter. Uteoppholdsarealet er funksjonelt fordelt på tre sider av huset med solrike områder og tilpasset terreng. Det er etablert rampe for trinnfri adkomst, sikring av uteområder, og avkjørsel med frisikt i henhold til kommunale krav. Bygget har fått dispensasjon for mindre avvik fra reguleringsplan og kommuneplan, og midlertidig brukstillatelse er gitt med gjenstående mindre arbeider.

Produkter og materialer

Terrasse Uteoppholdsareal

Uteoppholdsareal på over 130 m² fordelt på tre sider, med solrike områder og funksjonelle soner

Funksjonelt uteområde med plen, sittegrupper, lekeområder og matlaging

Grunnarbeid Veg- og grunnarbeider

Grunnarbeider for bygg og uteområder

Dører Ytterdør og innerdører

🧱 Tre

Antall: 26

Ytterdører og innerdører i tre, totalt 26 stk fordelt på bolig og garasje

Gulv Membran og gulvlegging

Gulvlegging og membranarbeid i våtrom

Maling Innvendig maling

Innvendig maling og overflatebehandling

Rekkverk Håndløpere og rekkverk

Håndløpere på begge sider i trapper, rekkverk på uteområder med nivåforskjell

Sikring med håndløpere og rekkverk iht. TEK17

Garasjeport Garasjeport

Antall: 1

Garasjeport til sammenkoblet garasje

Mur Støttemur og kulesteinsmur

🧱 Stein/mur

Ny mur og kulesteinsmur med høyde under 50 cm

Støttemur og kulesteinsmur i uteområder

Ventilasjon Ventilasjonsanlegg

Ventilasjonsanlegg installert og midlertidig satt ut av drift under arbeid

Solceller Solcelleanlegg

Ingen opplysninger om solcelleanlegg

Trapper Innvendig trapp

🧱 Tre

Antall: 1

Innvendig trapp mellom etasjer

Tak Saltak

🧱 Båndtekking

Antall: 1

Saltak med båndtekking som taktekking

Saltak med båndtekking som taktekking

VVS Varmeanlegg

Energifleksibelt system, varmepumpe ikke ferdig montert

Varmeanlegg med energifleksibelt system

Fasade Trepanel

🧱 Tre

Trepanel på fasader

Trepanel på alle fasader

Vinduer Fasadevindu

🧱 Tre

Antall: 21

Fasadevindu i tre fordelt på 21 stk i ulike rom og etasjer

Betong Plasstøpte konstruksjoner

Plasstøpte konstruksjoner for fundamenter og bærende elementer

VVS Innvendig og utvendig vann- og avløpsanlegg

Vann- og avløpsinstallasjoner innvendig og utvendig

Membran Membranarbeid for våtrom

Membranarbeid i våtrom utført av TVEITA GULV AS

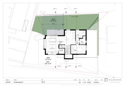
Plantegning

Enebolig 316.3 m²

Etasje 2 152.1 m²

Rom Areal Vinduer Dører
Stue/Kjøkken 201 50.8 m² 3 1
Sov 202 14.9 m² 1 1
Sov 203 7.7 m² 1 1
Bad 204 4.9 m² 0 1
Gang 205 2.5 m² 0 2
WC 206 1.9 m² 0 1
Spiskammer 207 3.4 m² 0 1

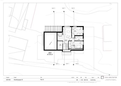
Etasje 1 97.2 m²

Rom Areal Vinduer Dører
Stue 101 16.0 m² 1 1
Entré 102 6.9 m² 0 1
Sov 103 7.9 m² 1 1
Bad 104 4.8 m² 0 1
Gang 105 12.7 m² 0 2
Hjemmekontor 106 7.6 m² 1 1
Vaskerom 107 14.0 m² 1 1
Bod 108 10.6 m² 1 1
Teknisk 109 7.3 m² 0 1
Sportsbod 110 8.0 m² 1 1
Garasje 111 18.8 m² 1 1

Etasje 0 67.1 m²

Rom Areal Vinduer Dører
Lofstue 001 22.9 m² 1 2
Sov 002 12.5 m² 1 1
Sov 003 11.0 m² 1 1
Bad 004 4.6 m² 0 1
Gang 005 1.6 m² 0 2
Bod 006 5.4 m² 1 1

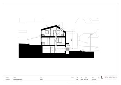
Fasader

Enebolig

Vest
Materiale
Tre
Taktype
Saltak
Høyde
6.9 m
Mønehøyde
8.4 m
Vinduer
4
Dører
2
Synlige etasjer
2
Nord
Materiale
Tre
Taktype
Saltak
Høyde
6.6 m
Mønehøyde
8.2 m
Vinduer
4
Dører
1
Balkonger
1
Synlige etasjer
2
Øst
Materiale
Tre
Taktype
Flatt tak
Høyde
6.6 m
Vinduer
4
Dører
1
Synlige etasjer
2
Sør
Materiale
Tre
Taktype
Saltak
Høyde
6.9 m
Vinduer
5
Dører
1
Synlige etasjer
2

Hendelser

20.04.2026 Midlertidig bruksløyve for einebustad og garasje. Gnr. 28 bnr. 995, Skudebergvegen 26
20.04.2026 Tilbakemelding om mangler til søknad om midlertidig brukstillatelse
20.04.2026 Supplering av søknad
17.04.2026 Skudebergvegen 26 Supplering av søknad 28/995
17.04.2026 Tilbakemelding om mangler til søknad om midlertidig brukstillatelse
16.04.2026 Varsel om tilsyn ved søknad om midlertidig bruksløyve
16.04.2026 Tilsynsrapport ved søknad om midlertidig bruksløyve. Gnr. 28 bnr. 995, Skudebergvegen 26
15.04.2026 Søknad om midlertidig brukstillatelse
03.02.2026 Skudebergvegen 26 Supplering av søknad 28/995
03.02.2026 Skudebergvegen 26 Supplering av søknad 28/995
01.09.2025 Løyve og dispensasjon til oppføring av einebustad med sokkelleiligheit og garasje. Gnr. 28 bnr. 995, Skudebergvegen 26
19.08.2025 Supplering av søknad
11.08.2025 Sol- og skuggediagram og illustrasjonsteikning
11.08.2025 Tilbakemelding på spørsmål knytt til mangelbrev. Gnr. 28 bnr. 995, Skudebergvegen 26
07.08.2025 Utgreiing i forbindelse med mangelbrev
31.07.2025 Tilbakemelding om manglar ved søknad om oppføring av bustadhus og garasje. Gnr. 28 bnr. 995, Skudebergvegen 26
29.07.2025 Informasjon om at det ikkje er mottatt merknadar til søknaden
16.07.2025 Søknad om oppføring av ny enebolig med sammenkoblet garasje over 3 plan med saltak, samt grensejusterin