NewConstruction Rammetillatelse Enebolig

Ny enebolig med garasje og bod på Skulevegen 36B

📍 Skulevegen 36B , 6887 LÆRDAL

Nøkkelinfo

Sakstype
Nybygg
Bygningstype
Enebolig
Bruksareal
198 m²
Boenheter
1
Kommune
Lærdal
Fylke
Vestland
Gnr / Bnr
31 / 757
Saksnummer
2026/264
Fase
Rammetillatelse

Om byggesaken

Ny enebolig på 198 m² BRA i to etasjer med et bebygd areal på 130 m² oppføres på Skulevegen 36B. I tillegg bygges en frittstående garasje på 35 m² med saltak og trepanel, samt en frittstående sportsbod på 8 m². Garasjen har to vinduer og en garasjeport, mens boden har en dør. Bygget er plassert med tilpasninger til kommunal hovedvannledning og ligger i et regulert boligområde med dispensasjon for mønehøyde. Grunnarbeid og fundamentering er tilpasset flomsonekrav, med ferdig gulv på kote 6.65. Bygget skal tilknyttes offentlig vann og avløp, og oppfyller krav til visuelle kvaliteter og tekniske forskrifter.

Produkter og materialer

Tømrer Bygging av bolig, garasje og bod

Oppføring av enebolig på 198 m² BRA, garasje på 35 m² og bod på 8 m²

Tømrerarbeid for bolig, garasje og sportsbod

Grunnarbeid Fundamentering og drenering

Fundamentering tilpasset flomsone med ferdig gulv på kote 6.65, drenering iht. TEK17

Grunnarbeid og fundamentering for bolig, garasje og bod

Dører Ytterdør

Antall: 3

1 dør på garasje, 1 dør på bod, ytterdører i bolig antatt

Ytterdører til garasje, bod og bolig

Fasade Trepanel

🧱 Tre

Trepanel på garasje og sportsbod

Utvendig kledning i tre på garasje og sportsbod

Vinduer Fasadevindu

Antall: 5

2 vinduer på garasje, 0 på bod, totalt 5 vinduer i prosjektet (inkl. bolig antatt)

Fasadevindu i garasje og bolig

Elektro Elektriske installasjoner

Elektriske installasjoner i bolig, garasje og bod iht. TEK17

El-installasjoner for bolig og tilhørende bygg

Maling Utvendig og innvendig maling

Maling av trepanel utvendig og innvendige overflater

Maling og overflatebehandling for bolig og tilbygg

VVS Offentlig vann og avløp tilkobling

Tilknytning til offentlig vann og avløp, omlegging av hovedvannledning på tomt

Vann- og avløpsinstallasjoner for bolig og tilhørende bygg

Garasjeport Port til garasje

Antall: 1

Garasjeport på garasje med saltak og trepanel

Garasjeport for biladkomst

Isolasjon Isolasjon i vegger og tak

Isolasjon iht. TEK17 krav for bolig og tilbygg

Isolasjon for bolig, garasje og bod

Tak Saltak

Antall: 2

Saltak på både garasje og sportsbod

Saltak på garasje og sportsbod

Plantegning

Garasje 40.0 m²

Etasje 1 40.0 m²

Rom Areal Vinduer Dører
Garasjerom BYA 35.2 m² 2 1
Bod V-1 garasje 7.6 m² 0 1

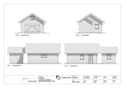
Fasader

Garasje

Vest
Materiale
Tre
Taktype
Saltak
Vinduer
1
Dører
0
Synlige etasjer
1
Øst
Materiale
Tre
Taktype
Saltak
Vinduer
1
Dører
0
Synlige etasjer
1
Nord
Materiale
Tre
Taktype
Saltak
Vinduer
1
Dører
0
Synlige etasjer
1
Sør
Materiale
Tre
Taktype
Saltak
Vinduer
2
Dører
1
Synlige etasjer
1

Hendelser

13.04.2026 Rammeløyve - Einebustad på gbnr. 31/757 - Skulevegen 36 B
31.03.2026 Revidert situasjonsplan Skulevegen 36B
24.03.2026 Svar Skulevegen 36B
18.03.2026 Svar på nabomerkander for oppføring av bustadhus - Skulevegen 36A
12.03.2026 Skulevegen 36A Søknad om rammetillatelse 31/757